Lanna Rice Research Center, Chiang Mai University
Hanabitate Architects
Chiang Mai, Thailand
- Year
- 2022
- Category
- Built > Sustainable Institutional Building
- Type
- Educational
- Firm
- Hanabitate Architects
- Location
- Chiang Mai, Thailand
- Award
- A+ 2025 · Finalist

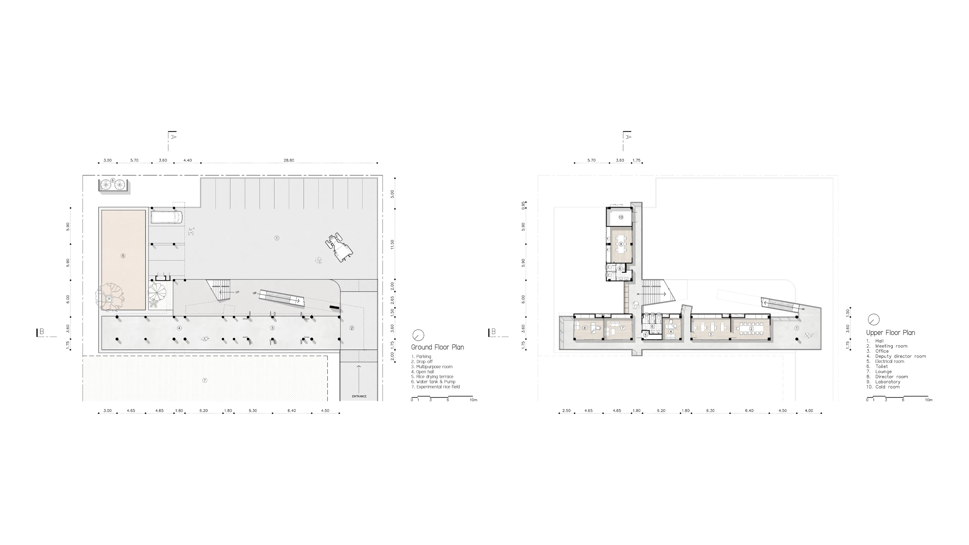
The high concern of Chiang Mai University to improve local rice varieties and develop by-products from rice farming in upcycling process to reduce waste and make value added brought about the establishment of the center as a research hub for all who related in rice production chain, from local farmers to international rice scholars. The building thus was designed by open plan and barrier-free concept with house-like form inspired by vernacular rice barn to invite all to come to use freely by its beautiful setting. With its raised floor, the open ground of the building can connect the interiors of the center to outdoor rice fields and faraway mountains. The building was placed along the front road facing to the beautiful experimental rice fields and mountains on the northwest. Functional rooms, as positive spaces, were arranged in a row and connected by the open corridor, as negative spaces. Their positive and negative volumes can be identified by the roof shapes. The negatives reveal into simple slabs, while the positives disclose into gables inspired by the local rice barn on stilts providing the ground for multipurpose use and connecting rice fields to the ground floor of the building. The ground floor was designed as an open hall connecting rice fields and a backyard of the building together. Rooms on the upper floor were arranged in a row. Each room thus gets ample natural light, and ventilation, while bamboo blinds help to filter the heat. The long office building at the front also provides sunshade over an open backyard in the afternoon making it pleasant for real use. The center is located in the open field and therefore the design used durable materials that need low maintenance such as concrete block walls, concrete polishing floors, concrete roof tiles and washed gravel terraces. With its inviting form and open plan, the center became a hub for researchers, organic agriculturist, ethnic farmers, to school pupils, to exchange and experience about rice varieties, farming and upcycling. They could effortlessly use not only the building spaces but also the adjacent experimental rice fields. The center also serves as learning space of Thai rice farming culture for new generations. The design used experimental materials of “Rice Blocks”, upcycled products from expired rice seeds, to apply for building materials and to display rice varieties developed from the local rice seeds in Northern Thai region by the research center. The building was also designed to support extension following new spaces needed by experiments of rice research in the future, which can apply the same construction technic by using the lightweight “Rice Straw Block” as wall materials which is now under the experiment by the center. The center thus plays a vital role as a physio-spatial model in BCG (Bio Circular Green Economy) Strategy of Chiang Mai University for sustainable development of northern Thai society. The building itself is the model of sustainable architecture by its passive design and planning to reduce consumption of energy.
Collaborators
1






































