← ProjectsA+ 2025 · Popular Choice
Lifted Lid
Model Practice
New York, United States
- Year
- 2024
- Category
- Hospitality > Restaurants (S <1000 sq ft)
- Type
- Commercial
- Firm
- Model Practice
- Location
- New York, United States
- Award
- A+ 2025 · Popular Choice

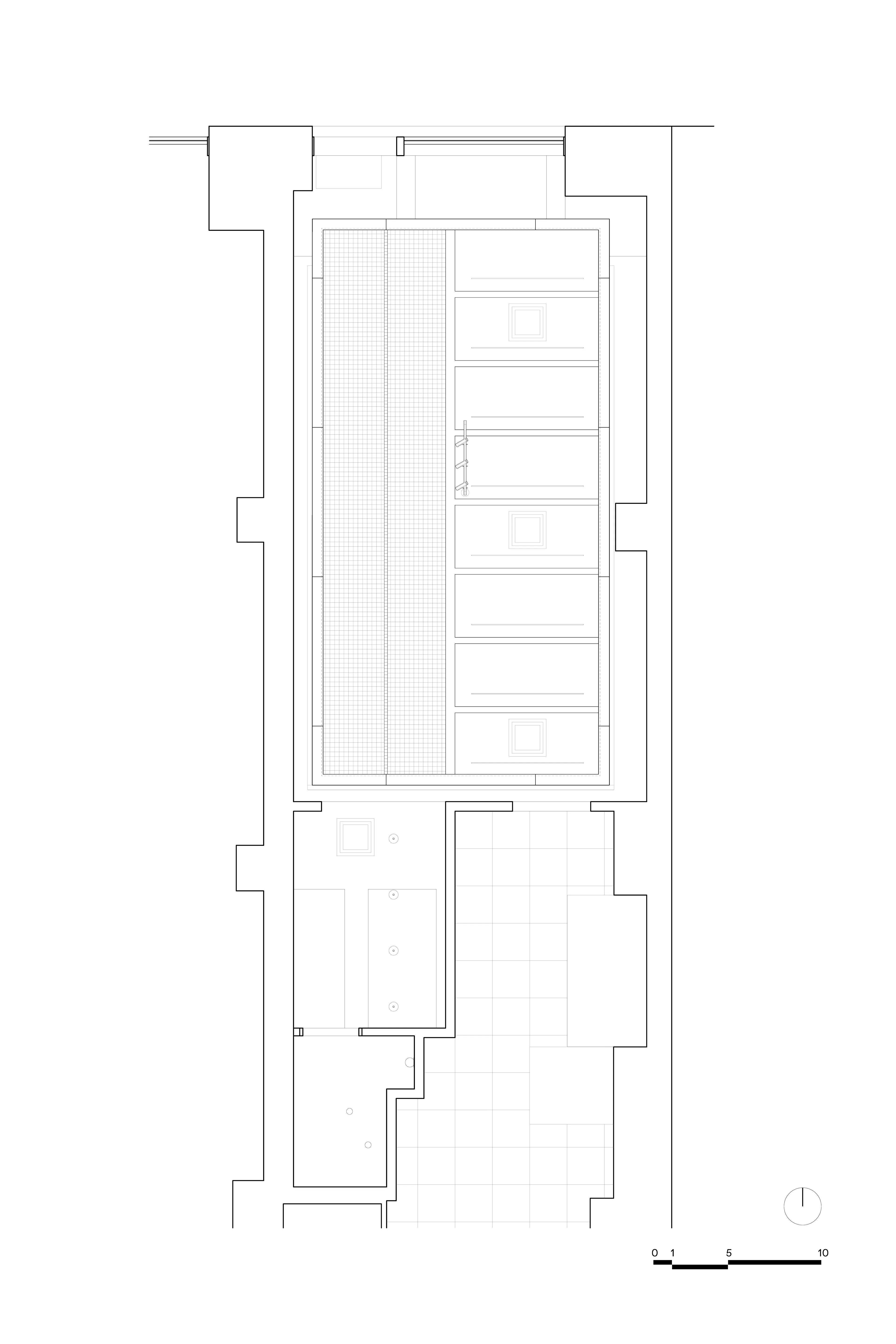
Located in the Garment District of New York City, Sopo is the first location for a new Korean fast casual restaurant. Occupying 900 square feet on the ground floor of The Arsenal Building—completed in 1924 and designed by architect Ely Jacques Kahn—the space draws inspiration from Dosirak, a traditional Korean compartmentalized platter. A suspended box, featuring separate compartments, mirrors the layout of the space below, with each section serving a unique function. The box’s outer shell is designed to reflect the surrounding urban environment, while its interior is lined with acoustic plaster, softening the texture and reducing the noise from the bustling 7th Avenue beyond.
Collaborators
1lead


















