Maison Accuracy
Atelier L'Abri
Montreal, Canada
- Year
- 2022
- Category
- Concepts > Architecture +Workspace
- Type
- Commercial
- Firm
- Atelier L'Abri
- Location
- Montreal, Canada
- Award
- A+ 2023 · Finalist

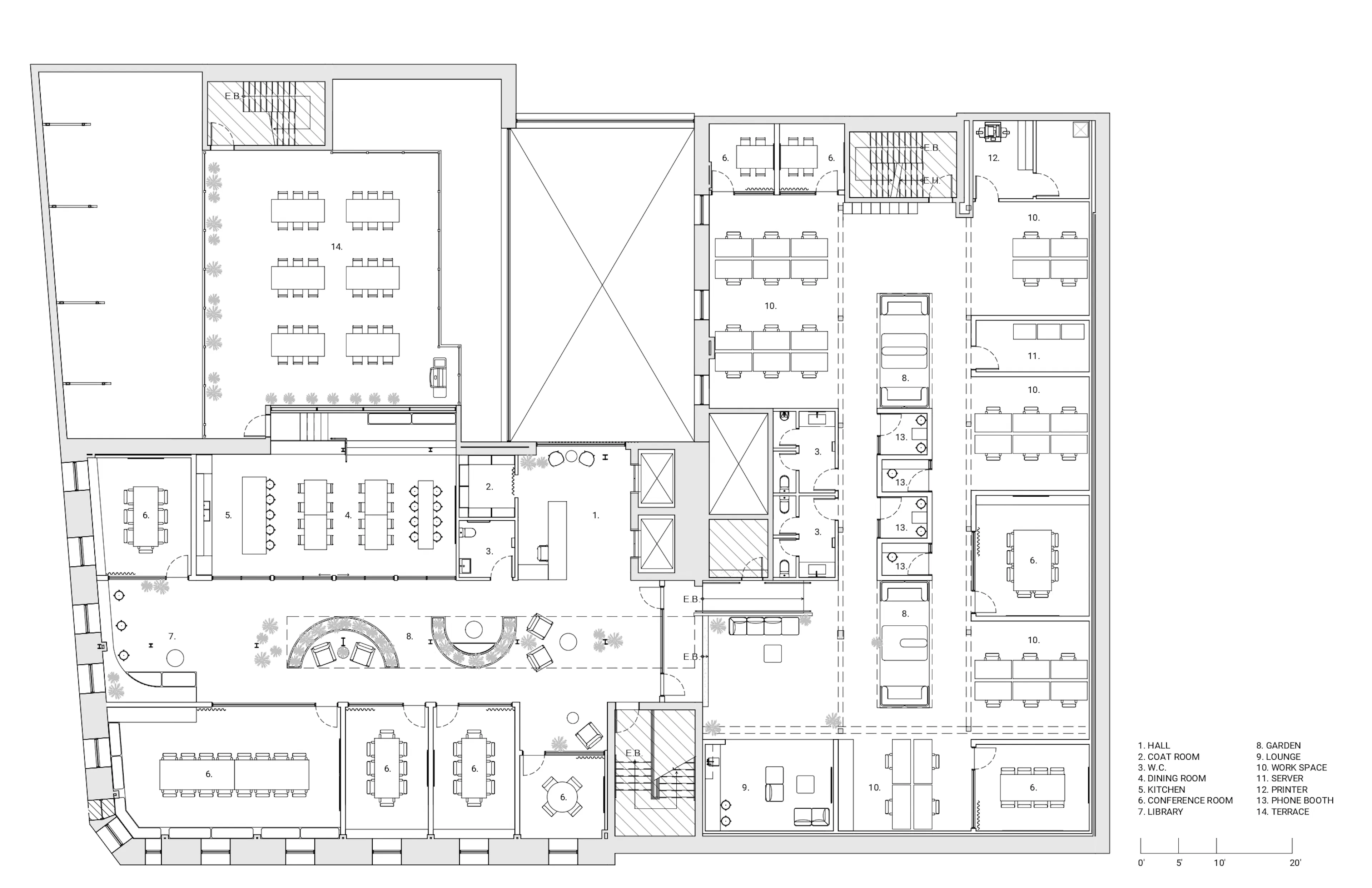
Feeling at home, while embodying the unique corporate identity of international consulting firm, Accuracy: this is the challenge that L'Abri took up by designing refined workspaces that rhyme with conviviality. Building on the codes of residential projects within Maison Accuracy, the architects offer warm and generous offices for employees and visitors alike. Following its design-build approach, the team of L'Abri and Construction Modulor got involved from the earliest stage of the project by participating in the search for the ideal location for the European consulting firm's new Montreal offices. Accuracy made the bold choice to move into a larger space at a time when the craze for teleworking has prompted many companies to reduce their work areas. Applying an analytical approach based on the company’s operations, the architects proposed a new layout model based on flexibility, comfort, and the creation of common spaces. Leaving a downtown tower to settle in Old Montreal, Accuracy chose a place full of character and history that strongly inspired the architects. Whether with the careful separation of the new volumes from the original mill floor ceilings, or the natural materials, such as walnut and lime plaster, the design highlights the architectural heritage of this former warehouse, built in 1868, with its solid masonry walls and its wood and steel structure. Covered by two monumental skylights that create inner courtyards, the generously planted space bathes in natural light, injecting a unique character and an exceptional spatial quality into it, which is magnified by the interior architecture. The program unfolds through two wings hosting a public client area, and a more private section for employees. This distribution allows the team to have greater intimacy and freedom to encourage feelings of relaxation and belonging. The choice of lighter tones, sober finishes, and lounge furniture accentuates the relaxed atmosphere. Developing a hybrid concept between open-plan offices and the traditional model of closed conference rooms, L'Abri designs flexible layouts that optimize square footage, while promoting teamwork and productivity. In the client wing, walnut warmly dresses the various conference rooms and common areas, bringing character and elegance without falling into ostentation. The curves of the central, bespoke furniture contrast with the surrounding orthogonal shapes, giving a unique balance and signature to the project. Integrating new organizational and operating principles for the company, Maison Accuracy offers bright, soothing, and comfortable office spaces, where beauty inspires and encourages a return to work in person for more human and collaborative relationships.
Collaborators
1lead






























