Marlboro Music Reich Hall
HGA
Marlboro, United States
- Year
- 2021
- Category
- Institutional > Higher Education and Research Facilities
- Type
- Educational
- Firm
- HGA
- Location
- Marlboro, United States
- Award
- A+ 2023 · Jury Winner

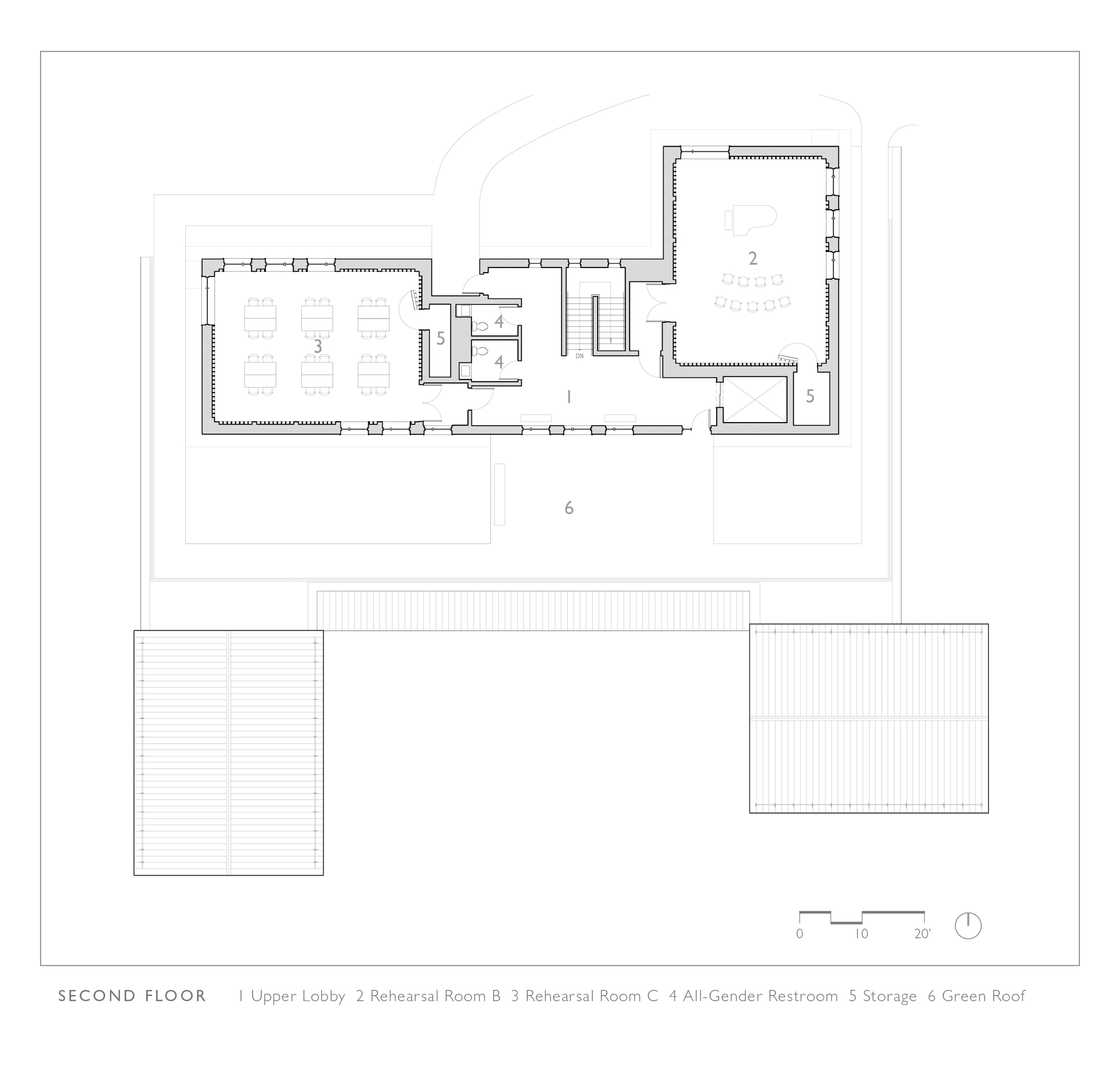
Since 1951, generations of the world’s most talented classical musicians have come together to participate in Marlboro Music, a non-profit, seven-week summer festival where young musicians collaborate alongside renowned artists in an environment removed from the pressures of performance. Each season, the music festival takes over the tiny campus of Marlboro College in the foothills of Vermont’s Green Mountains. Marlboro Music encompasses not only music, but a communal way of life where musicians, staff, spouses, and children share meals, chores, and social events. Participants have included such celebrated musicians as Yo-Yo Ma, Pablo Casals, pianist Mitsuko Uchida, and violinist Joshua Bell. Over the course of seven decades, the campus’ aging farm buildings became less-than-ideal environments for music rehearsal and housing Marlboro’s world-renowned chamber music archive. Driven by a desire to best serve the needs of 21st-century musicians and the music itself, the design of the new Reich Rehearsal Building & Music Library (Reich Hall) stays true to the spirit of Marlboro and the simple, country ethos of Southern Vermont, while providing much-needed modern rehearsal spaces, a music library, staff offices, and common areas. During the academic year, the rehearsal spaces are converted into classroom spaces; the staff offices are used by Marlboro Music’s faculty. The design for Reich Hall was inspired by a Cape Cod cottage—a 400-year-old typology derived from 17th-century English settler’s dwellings in New England and the primary inspiration for Marlboro College’s centuries-old buildings. The four pitched-roof forms step down with the natural slope of the landscape, with the upper and lower levels organized around south-facing outdoor “rooms” that provide space for community gathering. Acoustically, within rehearsal rooms, a pattern of reflective and absorptive elements – wood panels and glass – maintain a sense of simplicity while optimizing mountain views and allowing natural light to fill the space.
Collaborators
1lead





























