House 023 — Connect 12 Menlo Park
Connect Homes
Menlo Park, United States
- Year
- 2019
- Category
- Concepts > Architecture +Prefab and Modular
- Type
- Residential
- Firm
- Connect Homes
- Location
- Menlo Park, United States
- Award
- A+ 2023 · Finalist

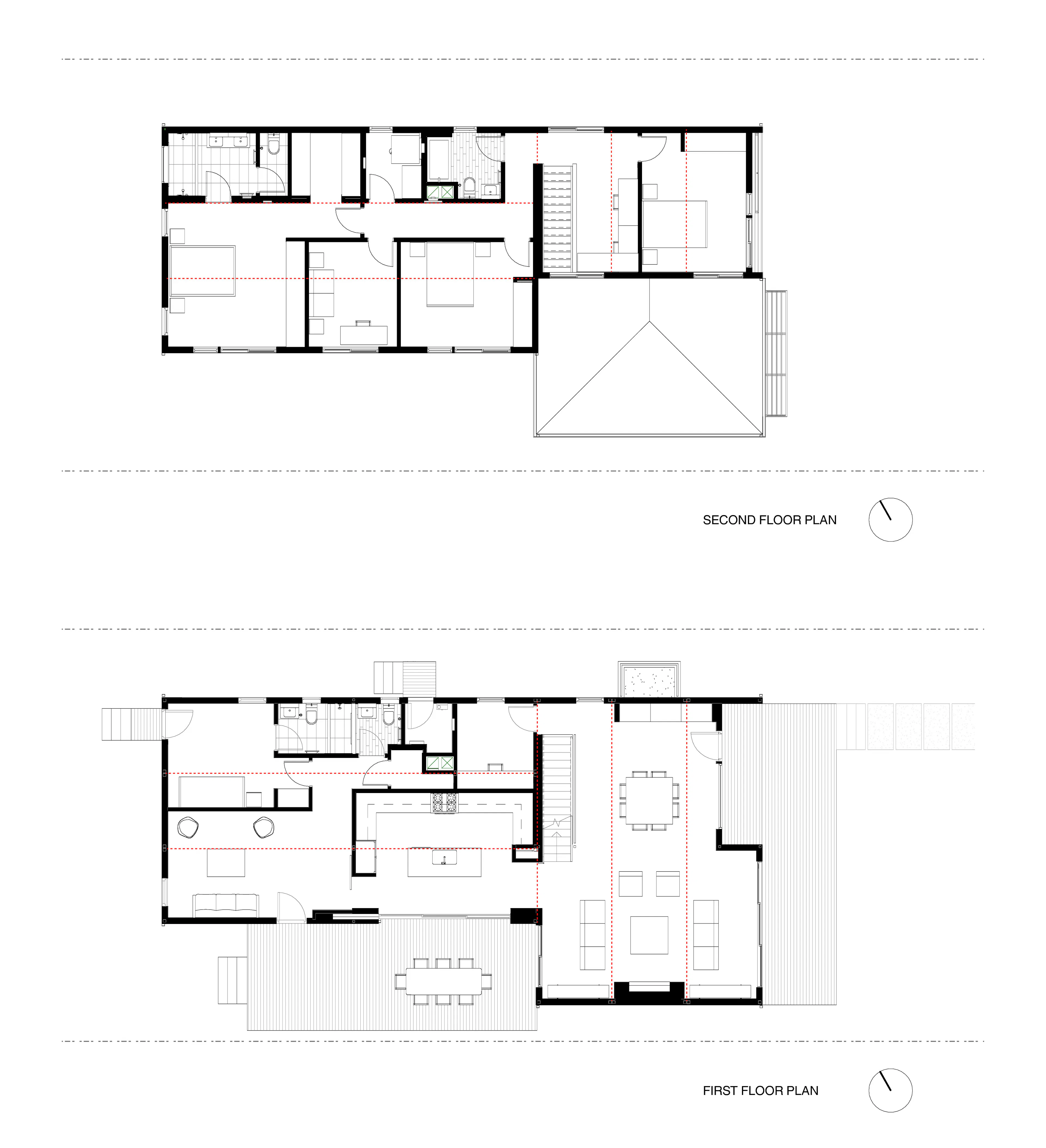
The Menlo Park Connect 12 was Connect Homes' 23rd house. To accommodate a narrow, non-conforming lot with the size home the client required, Connect created a custom solution. The long, thin bar of the house turns 90 degrees to engage with the front yard and display a clear cedar wood interior. A steel-stringer stair leads to the second floor. Elsewhere, the house is primarily about side yard engagement, most apparent in a South-facing pocket dining deck. An entire wall of glass retracts in-wall, connecting the entire extents of the kitchen to an outdoor eating area. In front, a prefab steel-frame Connect Carport is located under a massive heritage oak. This part of Menlo Park is known for it's heritage oak trees. Photos are included of delivery day, showing how the house was 90% completed in the factory. Negotiating the oak tree with large modules required the use of exotic methods.
Collaborators
1lead





































