Mill Hide
Poulson Architecture
Melbourn, United Kingdom
- Year
- 2023
- Category
- Residential > Private House (L 4000 - 6000 sq ft)
- Type
- Residential
- Firm
- Poulson Architecture
- Location
- Melbourn, United Kingdom
- Award
- A+ 2025 · Popular Choice

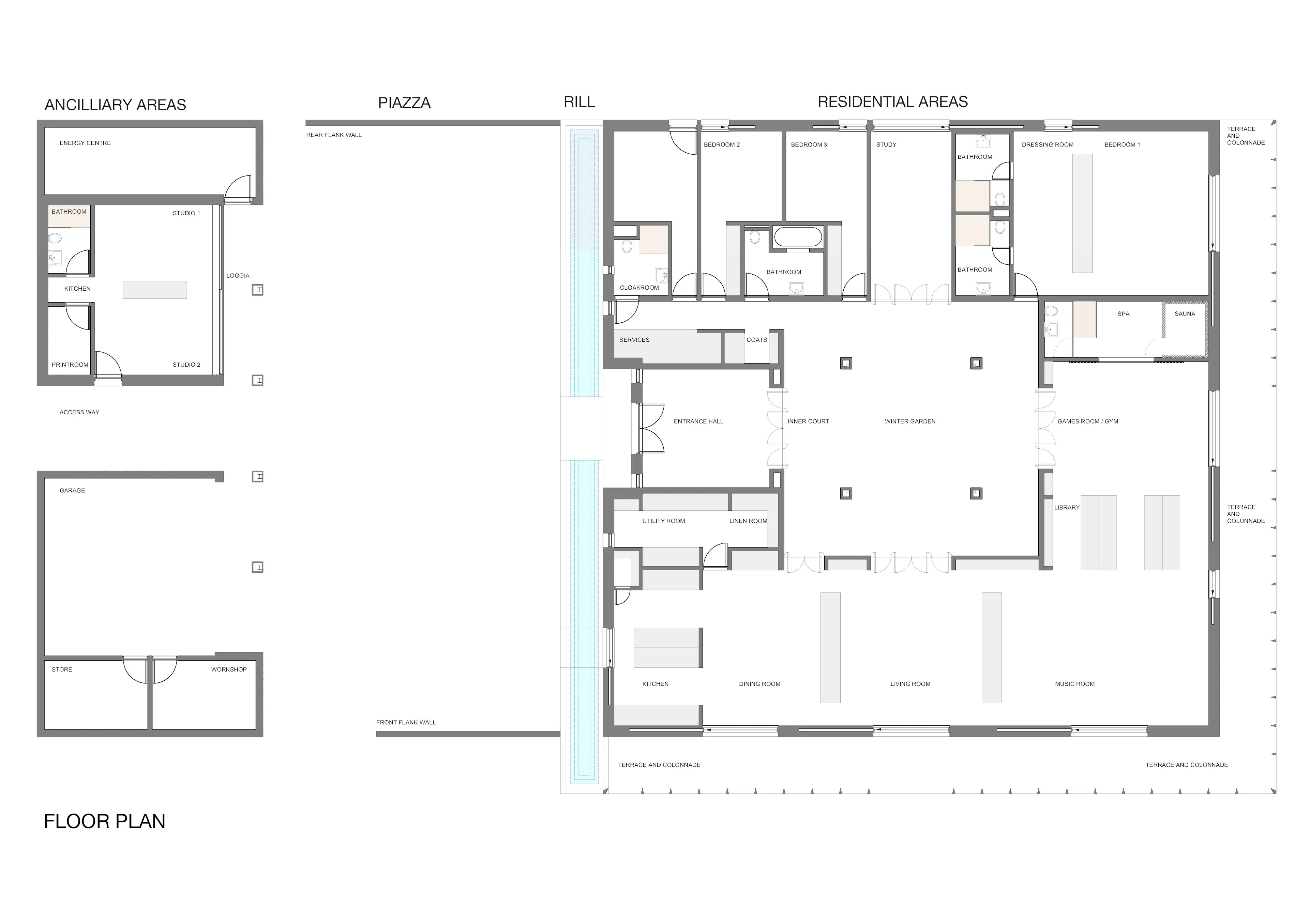
Mill Hide is an ‘exceptional house in the countryside’ which was granted planning consent under NPPF 2019, paragraph 79, in May 2021. The project was constructed in the period May 2022 to August 2023. The house was designed and constructed by the architect for occupation by him and his family At the centre of the proposal for a new dwelling in the countryside is the opportunity to create an elegant modern house set within a natural and largely undisturbed landscape, where the quality and excitement of carefully considered minimalism is paramount over the search for complexity. The concept is essentially for a single sculptural form incorporating all the amenities for a country dwelling rather than the more common style expressed in a range of separated building forms. The landscape character and the diverse ecology of the selected site provided an opportunity for the design of a new house, at one with the natural surroundings, which extends and amplifies the habitat for the adjoining Nature Reserve. The building design is informed by reference to a range of houses and structures in the countryside, which represent outstanding exemplars around the world and over time, with particular homage to the Villa Rotunda by Andrea Palladio and the large landscape sculptures by Richard Serra. The orientation of the building enclosure achieves an optimum layout with the diagonals of the plan aligned with the cardinal points of the compass, allowing sunlight to fall on all four elevations through the diurnal rhythm. A colonnade along the south east and south west elevations provides essential solar shading as well as amenity. The floor plan and the arrangement of the internal spaces have been developed in order to maximise the opportunity for lifetime homes and long-term flexibility for successive generations with limited internal structures and fixed elements. The sculptural form is expressed externally through the design of the Corten steel rainscreen cladding, where the steel is folded around corners and openings with concealed support systems and minimal joints between the 340 panels, where the panels will fuse together through the oxidation process. The dwelling has been designed with a sharp focus on energy conservation, long life, sustainability and end-of-life recycling.
Collaborators
2collaborator
























