Mississippi Workshop
Waechter Architecture
Portland, United States
- Year
- 2022
- Category
- Commercial > Mixed Use (S <25,000 sq ft.)
- Type
- Residential
- Firm
- Waechter Architecture
- Location
- Portland, United States
- Award
- A+ 2024 · Finalist

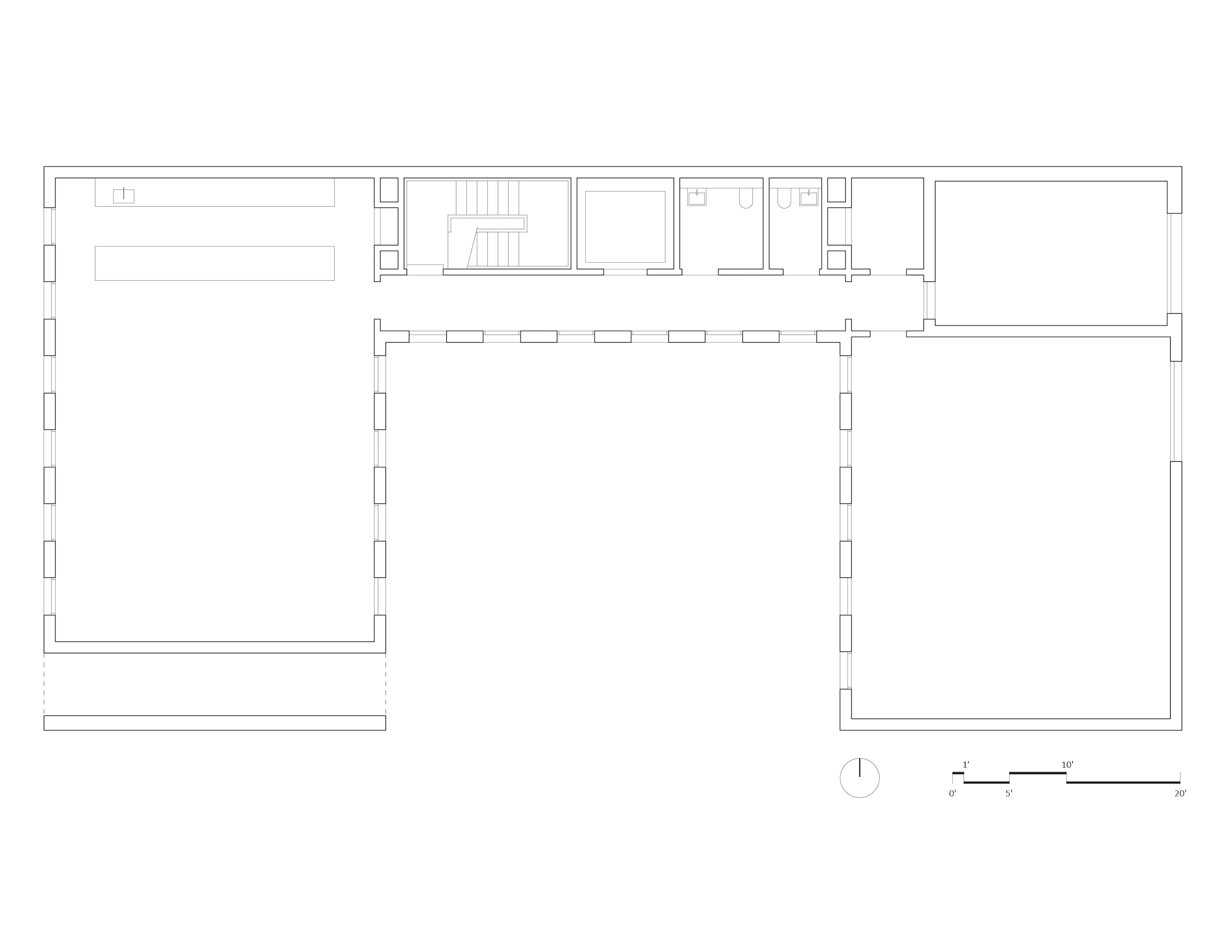
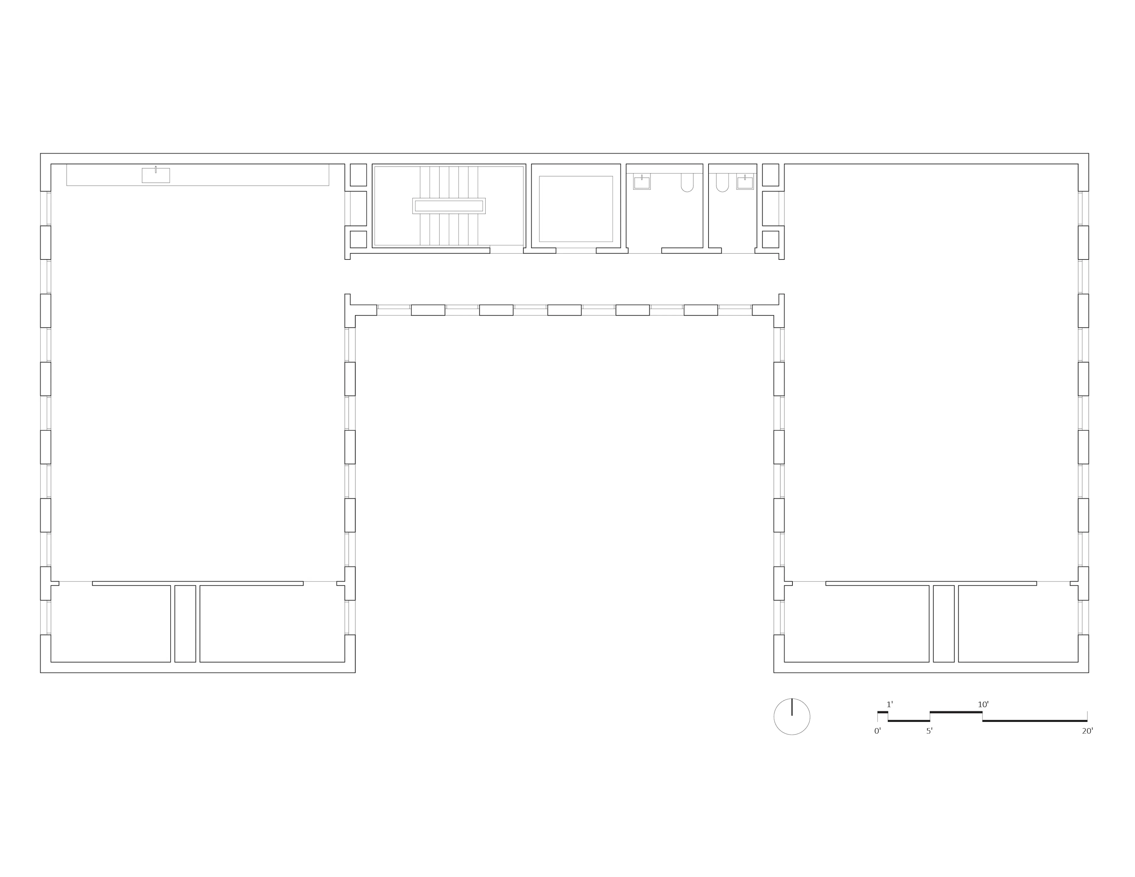
Sited on a prominent commercial street, Mississippi Workshop is a carbon-sequestering, 21st-century interpretation of the classic industrial loft that offers a balance of beauty, presence, durability, and flexibility. It’s also the first mixed-use project on the West Coast to use all-wood / cross-laminated timber construction for its entire structure and spatial definition. A “rain jacket” of weathering steel protects the wood and adds to the building’s durability and design expression. Waechter Architecture designed and developed the building as a prototype and adaptive platform for an ever-changing set of functions, including retail, residential, creative workspace, and educational programs. Overall, the building is organized as six clear-span spaces united around an open-air courtyard, which serves as a shared resource for the building’s occupants and a venue for informal gatherings and special events. In its form, organization, material, and systems integration, Mississippi’s flexible layout and its ecological construction embody the principles of enduring design. The goal was to create a future-proof building with a strong sense of identity and permanence.
Collaborators
1




















