Monow House
Archismith Co., Ltd.
Bangkok, Thailand
- Year
- 2022
- Category
- Details > Architecture +New Materials
- Type
- Residential
- Firm
- Archismith Co., Ltd.
- Location
- Bangkok, Thailand
- Award
- A+ 2024 · Popular Choice

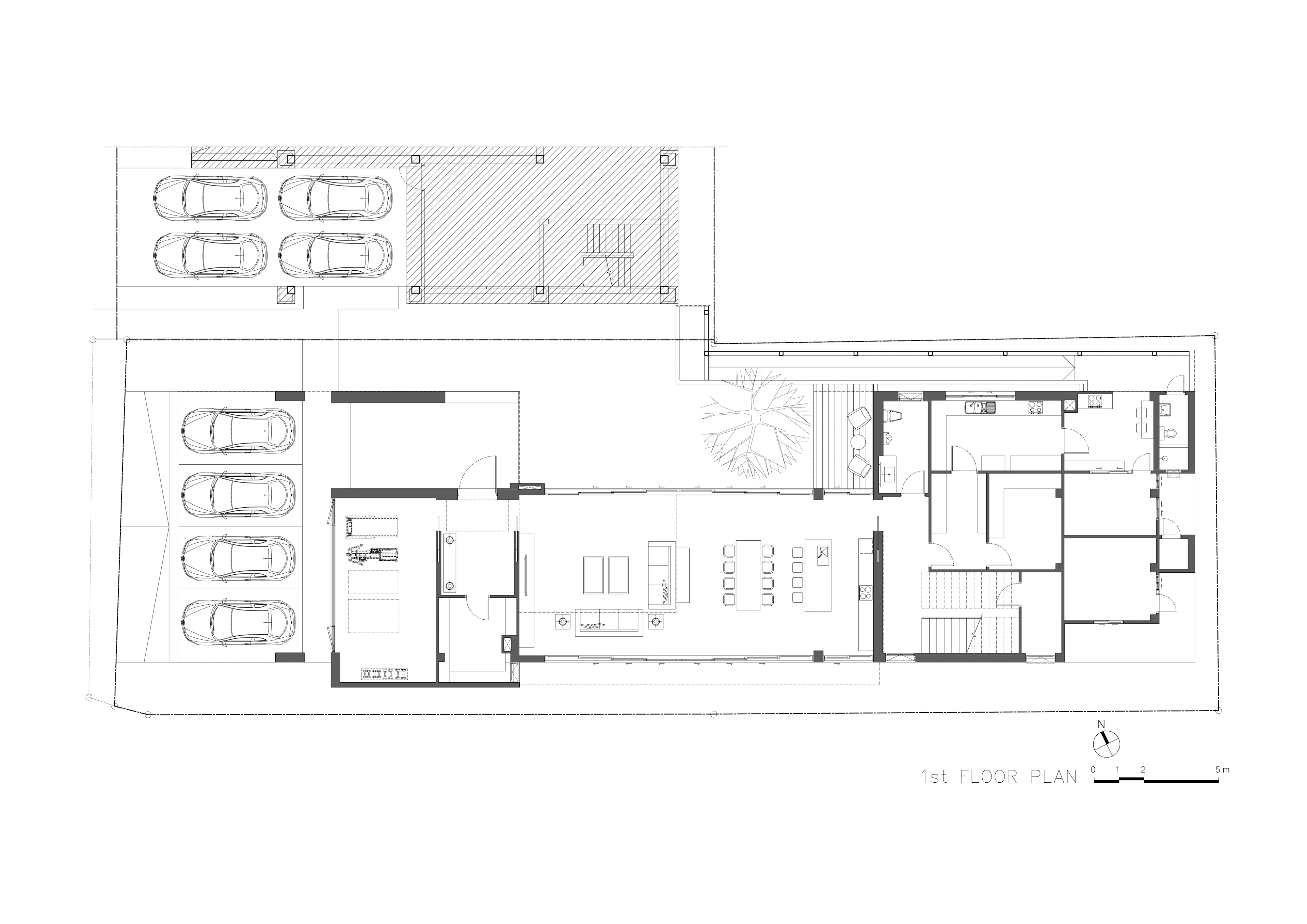
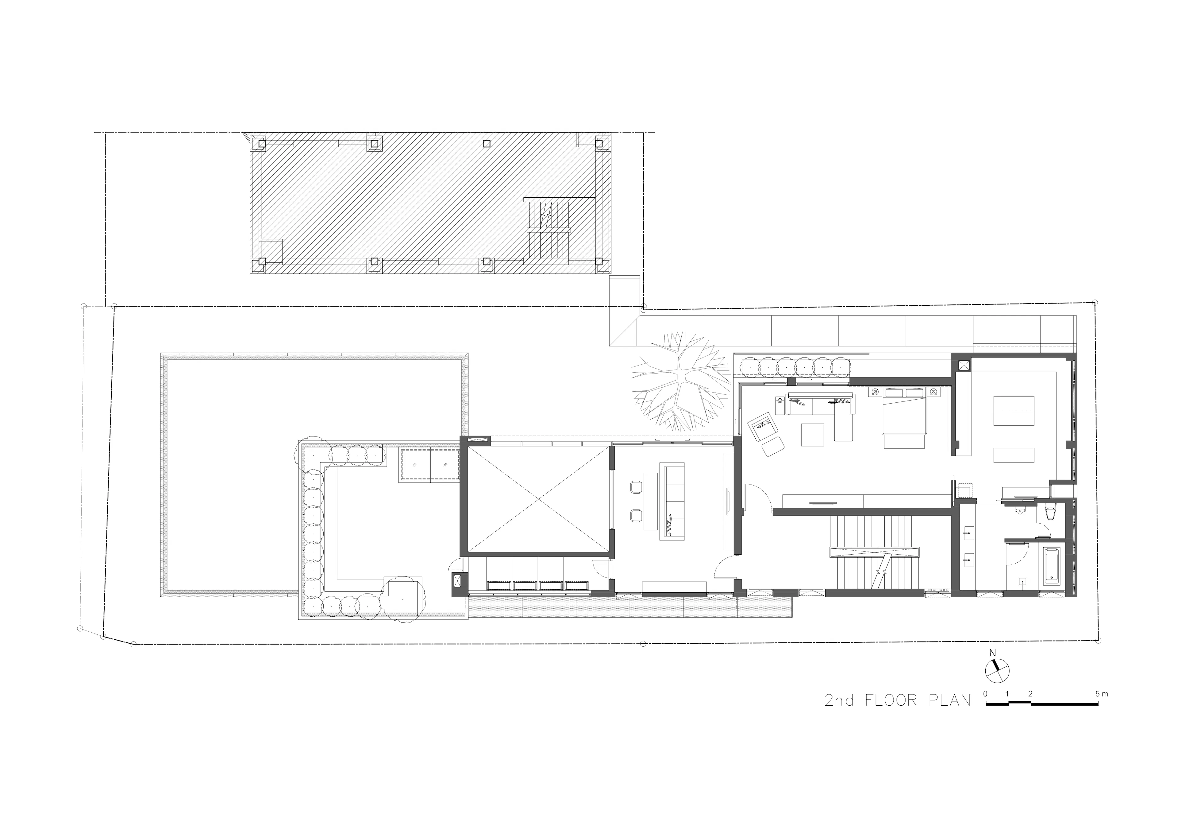
The owner bought a piece of land next to his parents’ house to start his own family. Once completed, with the existing boundary wall between the two properties removed, the new house will be related to the parents’ house on various aspects such as the visual linkage between dad’s TV Room and son’s Living Room through the communal landscaped courtyard, Fitness Room that mom will come over to use on a daily basis, provision of extra parking lots for both houses and the covered walkway connecting the kitchens of both houses together for service sharing. Contextually, the plot is long and narrow surrounded by neighbors with close proximity, so the planning of massing and openings is very crucial to ensure sufficient privacy. The design team conducted a thorough review of the location and distance of the neighbors’ windows to avoid direct confrontation. With the site constraint in term of its width, the design solution is to go up to 3 stories to achieve a decent amount of natural light and ventilation to all rooms. The massing is descending towards the front so as not to block the natural light and ventilation to the parents’ house. One of the requirements from the owner was that the appearance of both houses must be related. To avoid having to do similar massing or design language, the design team proposed to link them by the use of materials instead. The external cladding on the 3rd floor is from the same manufacturer as the one used on exterior wall of the parents’ house but of a newer, more modern version. The exterior walls of the 3rd floor, being most exposed to the elements, are cladded with hollow-core triangular shaped ceramic tiles which act as a thermal barrier. The heat gain is reduced thermodynamically by natural breeze flowing through the void of each tile. The folding texture of the cladding also helps to reduce direct hit of sunlight as 50% of the surface will be in shade most of the time. The cladding on the 2nd floor, though not from the same supplier, is in a similar color tone as the parents’ house for consistency. On the street level, the scale of the house appears to be similar to those rowhouses on the opposite side. The color scheme at the entrance is intentionally kept dark to accentuate the greenery of the courtyard at the end of the arrival tunnel. Internally, the Living Room’s double-height glazed façade facing north provides optimal exposure to the courtyard view and daylight with minimum heat gain. The Working Room on the 2nd floor is structurally hung from above to avoid having columns blocking the garden view on the 1st floor.
People
1Collaborators
1
























































