Multnomah County Library Operations Center Renovation & Expansion
Hennebery Eddy Architects
Portland, United States
- Year
- 2024
- Category
- Institutional > Libraries
- Type
- Educational
- Firm
- Hennebery Eddy Architects
- Location
- Portland, United States
- Award
- A+ 2025 · Special Mention

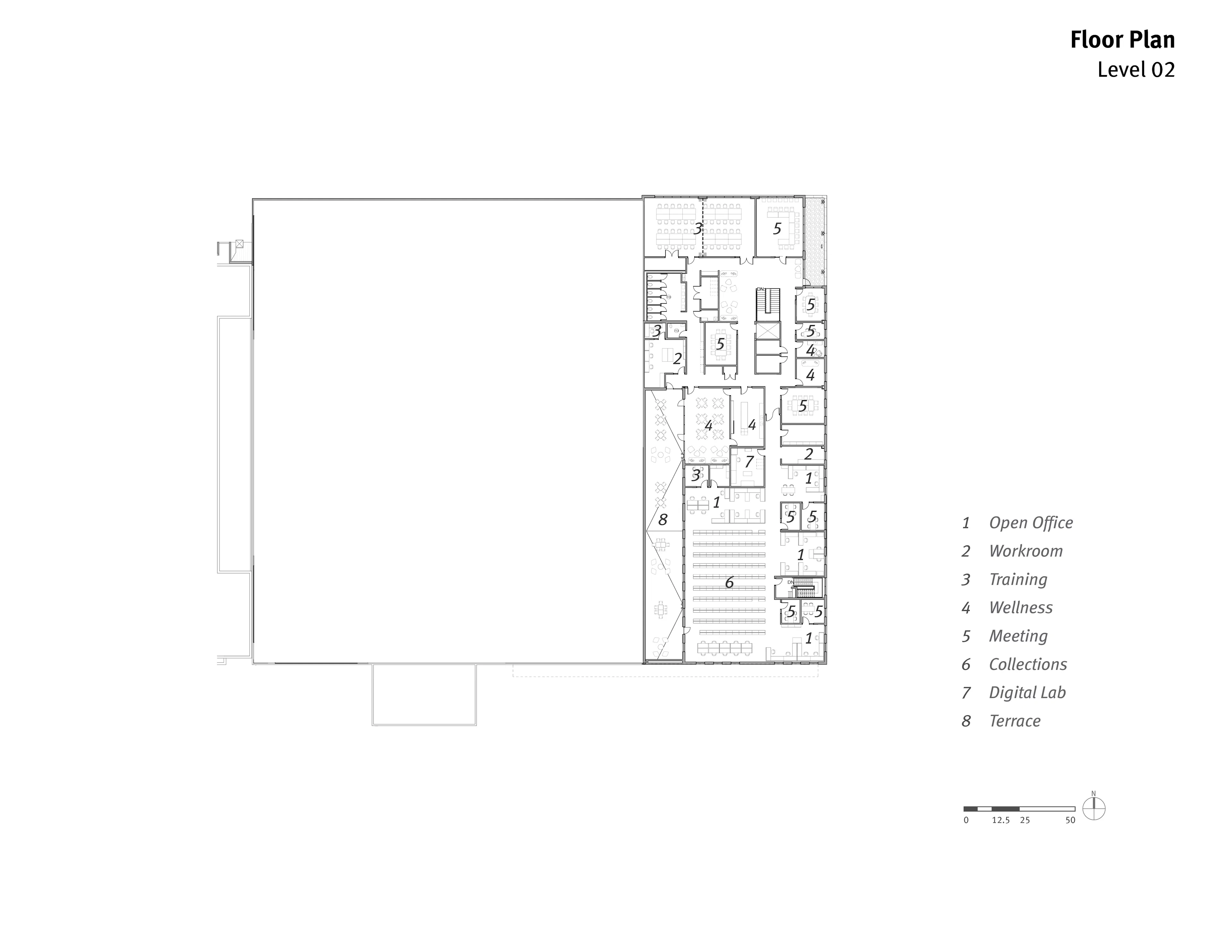
The “beating heart” of the Multnomah County Library system – because it keeps the entire system running – the new Operations Center is essential for effectively managing more than 500,000 catalogue materials and outreach services. This adaptive reuse project transformed a vacant 1995 grocery store into a bustling 73,000-square-foot workplace in vehicle-dominated east Portland. The Operations Center is the first project to meet Multnomah County’s ambitious fossil fuel-free buildings resolution and anticipates LEED Gold certification as well as Living Future Net-Zero Energy certification. The design prominently features more than 600 solar panels that will fully offset the building’s energy use. Interior spaces prioritize the well-being, health, and safety of the 130 employees who keep the library system running: daylighting and natural materials abound, a second-floor terrace provides staff access to nature, fresh air, and daylight while common spaces are energized by large-scale biophilic murals conceived by community artists with the Portland Street Art Alliance – to enliven the office and materials storage space. Finish materials feature wood wall panels and screens that provide warmth and texture. Enhanced air filtration mitigates pollutants and seasonal wildfire smoke, and structural systems are designed for increased seismic resilience. Offices, workstations, and meeting rooms are placed at the building perimeter for maximum daylight and views. Skylights provide daylight to the central collections area. Several private wellness rooms offer lactation support and privacy for personal use. The facility supports Multnomah County Library’s goal to provide more equitable library services by incorporating automated materials handling technology, which efficiently distributes library items across the county while freeing up time for staff to focus on patron services. Also on site is Rose City Reads, a public storefront operated by the Friends of Multnomah County Library that sells used and donated books. Sustainable Design: This project consolidated collections from multiple locations to a centralized space, maximizing efficiency and minimizing the need for expanding additional library buildings throughout the system. Adaptive reuse of the 52,000 square-foot grocery store reduced calculated embodied carbon by 66% compared to baseline/new construction. Consistent with inherently sustainable adaptive reuse, new materials are durable, and low maintenance; exterior metal panels that clad the entire building were produced within 145 miles of the site and contain up to 80% recycled content. During demolition and construction, 90% of materials were diverted to seven material-specific waste streams in accordance with the project’s Waste Management & Disposal Plan. Lobby stair and benches are made from salvaged glulam beams. Specific passive solar design strategies include PV panels as shading devices for exterior facades and the second-floor terrace and deep-set windows with ceramic frit glazing that provide ample daylighting while mitigating heat gain. The visible wall-mounted and rooftop PV arrays are estimated to produce 353,000 kWh/year. A high-performance building envelope and high efficiency MEP systems with Heat Recovery Ventilator units further reduce energy consumption. Total emitted carbon reduction from embodied and operational reduction strategies is 75% over a 30-year reference study period. Hennebery Eddy design team David Wark – Principal-in-Charge Meg Matsushima – Project Manager Tereza Wiest – Project Architect Alexis Wilson – Interior Designer Alexander Lungershausen – Specification Writer Haley Teske – Staff Designer Bianca Baccarini – Staff Team Dan Petrescu – Staff Team Patrick Turina – Staff Team Project Team Design Architect & Architect of Record: Hennebery Eddy Architects Contractor: Fortis Construction, Inc. Civil Engineer: KPFF Consulting Engineers, Inc Structural Engineer: James G. Pierson, Inc. Mechanical Engineer: Arris Consulting Electrical Engineer: Interface Engineering, Inc. Landscape: Place Studio LLC Lighting: Biella Lighting Design Acoustical Engineer: The Greenbusch Group, Inc. Sustainability Consultant: Project Pivot Theatrical/AV: The Greenbusch Group, Inc. Photography Kevin Scott
Collaborators
1




























