MUSEUM HEIDI HORTEN COLLECTION
the next ENTERprise Architects
Vienna, Austria
- Year
- 2022
- Category
- Concepts > Architecture +Renewal
- Type
- Cultural
- Firm
- the next ENTERprise Architects
- Location
- Vienna, Austria
- Award
- A+ 2025 · Finalist

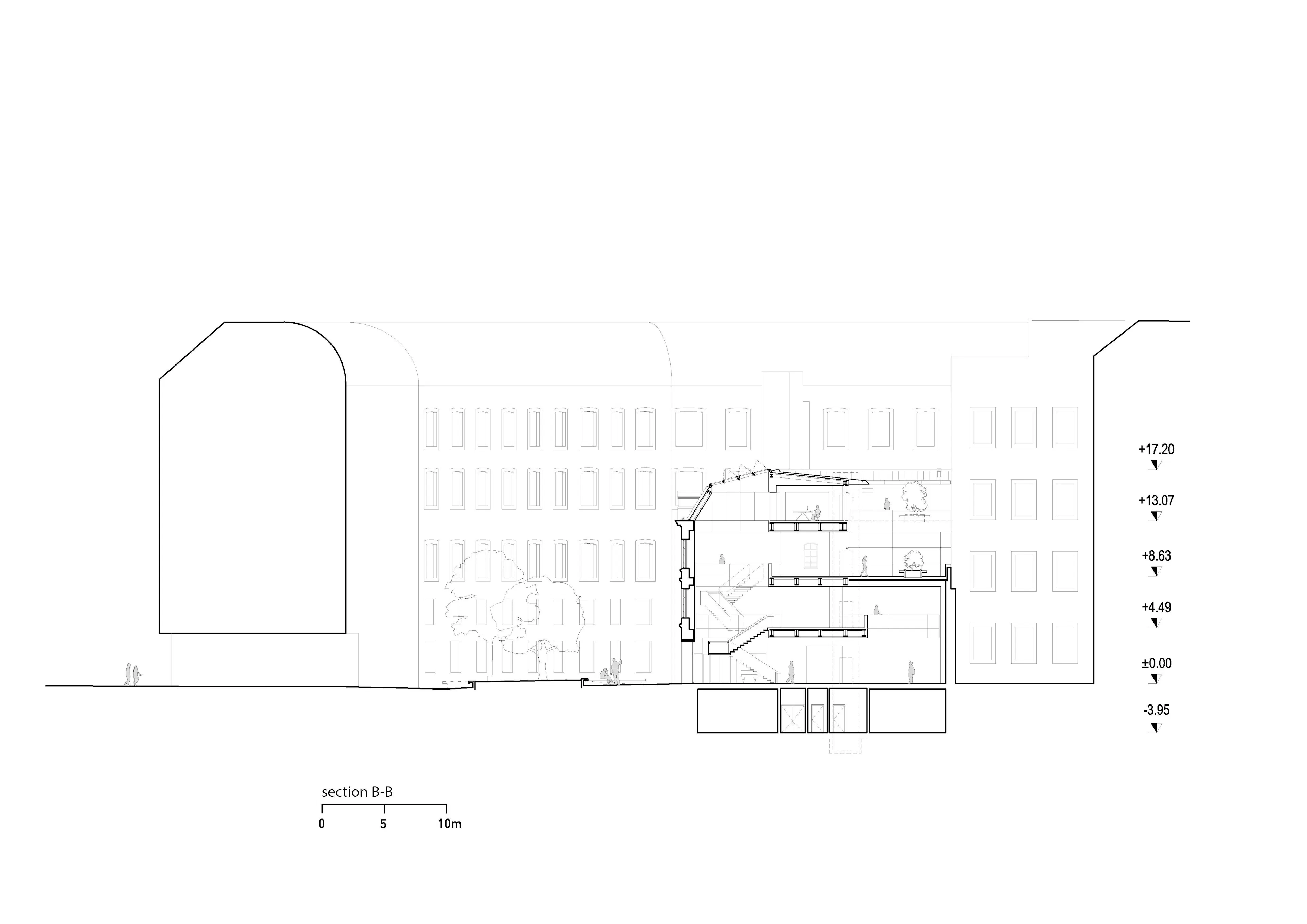
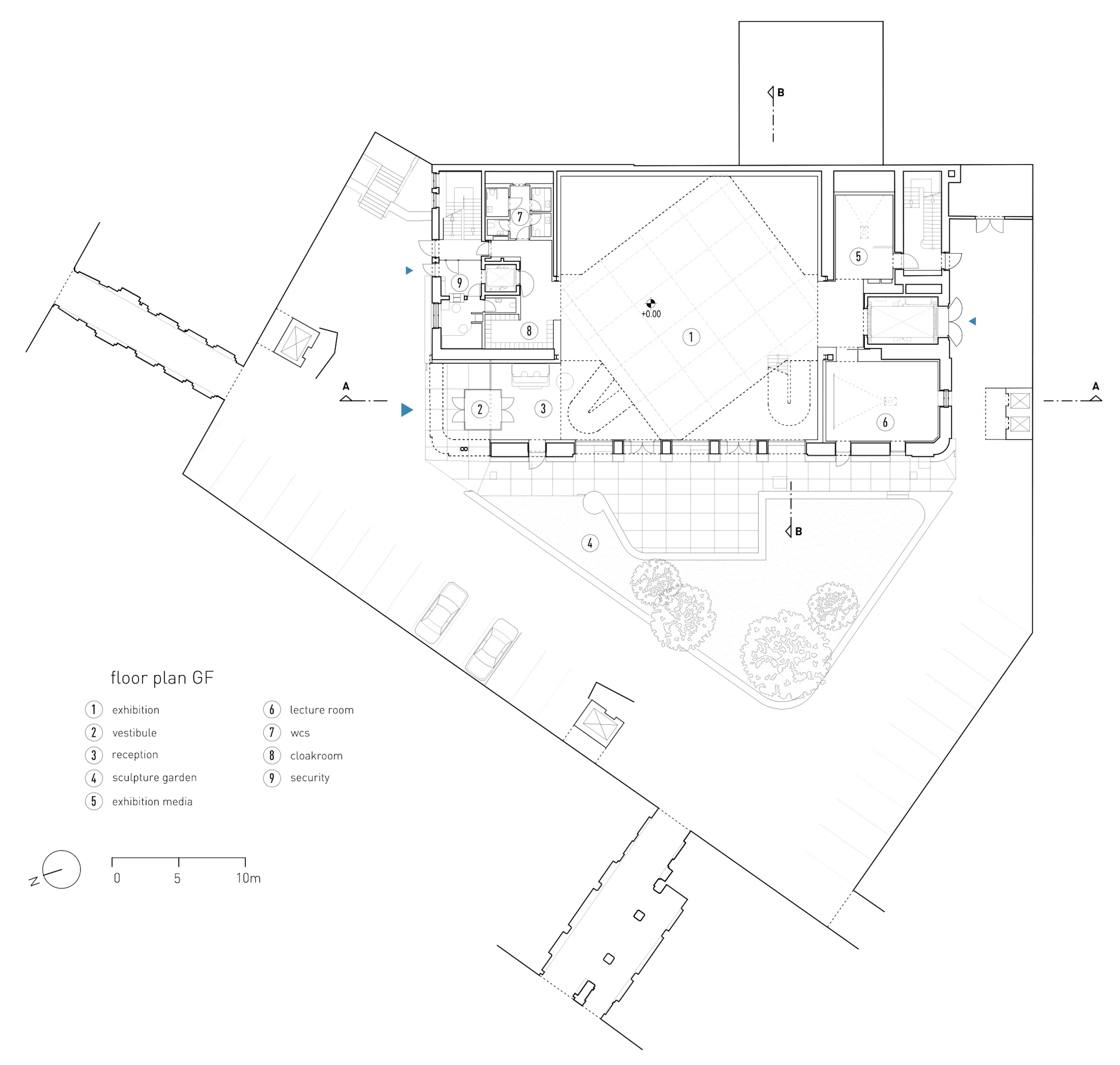
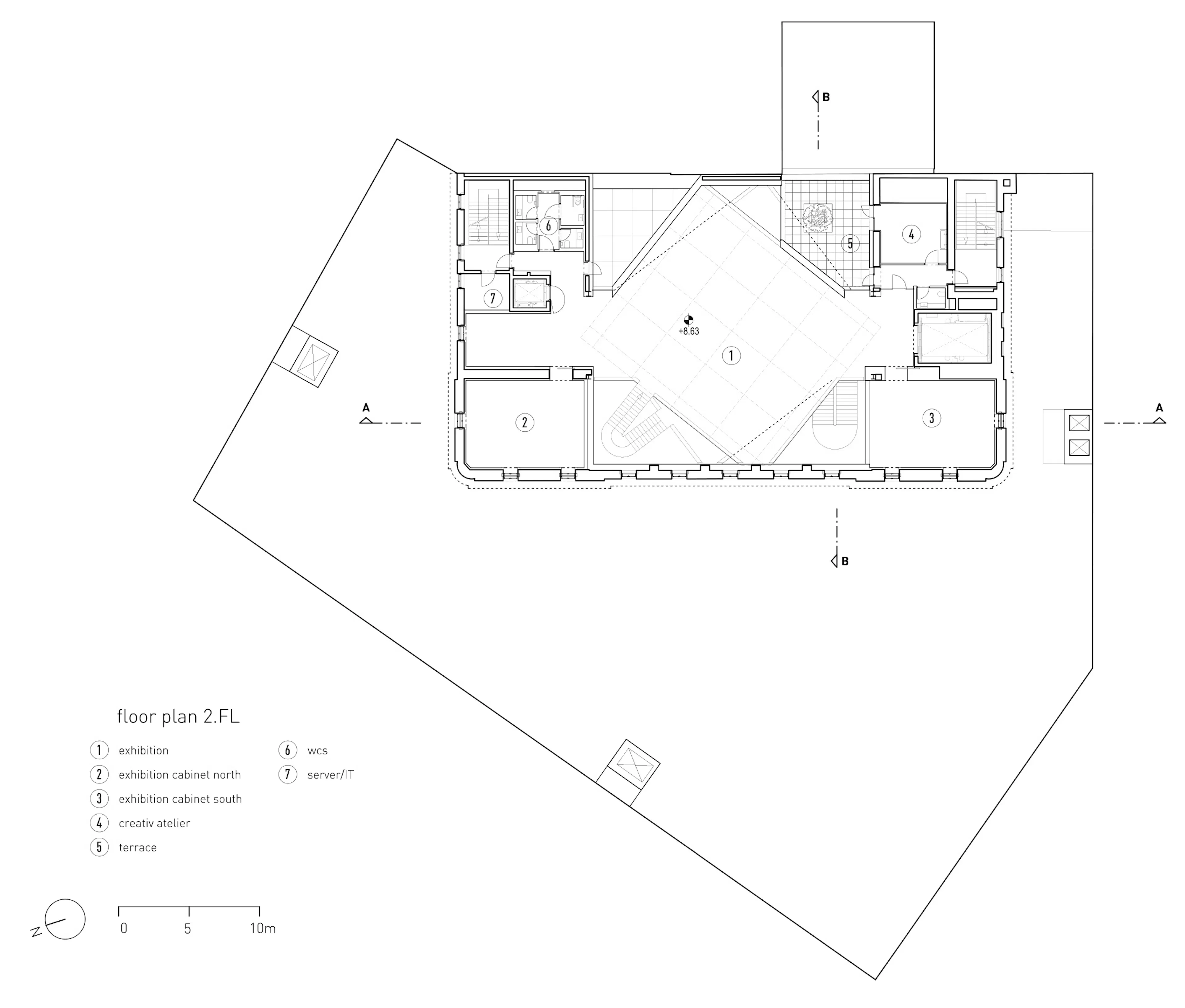
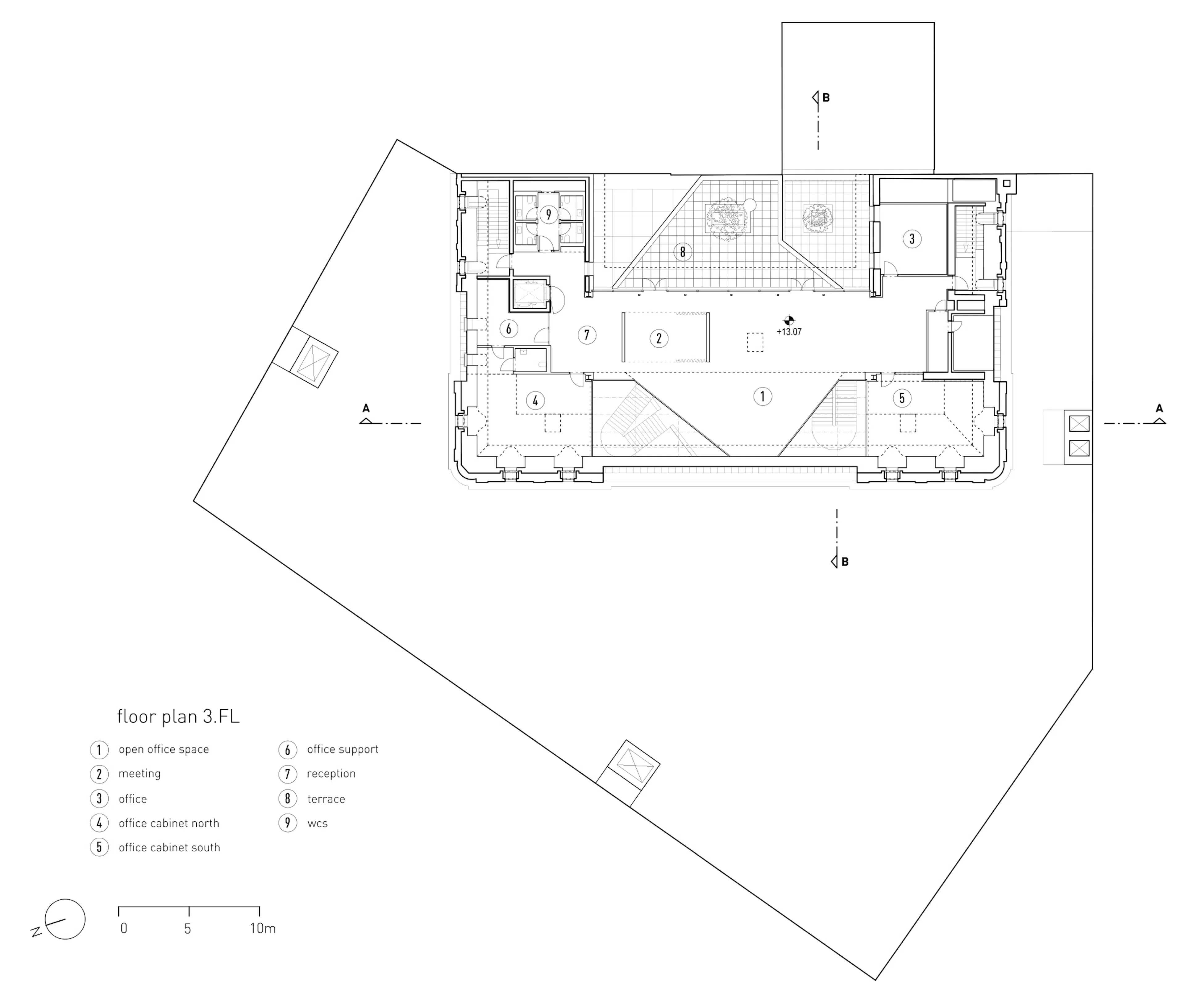
The former chancellery building in the Hanuschhof, prominently situated between the State Opera and the Albertina, has been converted into a private museum, although the term “museum” fails to do the concept justice: The small palace has been upgraded into a bespoke, flexibly organizable space for Heidi Goëss-Horten’s outstanding internationally respected art collection. The historic façade has been retained and covered with wild vines and wisteria, which combine with the outdoor sculptures to enhance the atmosphere of the courtyard for visitors and locals alike. In order to create a refined and covered entrance area, a corner has been cut out of the existing building. Here, a golden-yellow wall attracts attention, awakens curiosity and draws visitors into a storey-high foyer. Behind this, a surprisingly generous spatial volume appears. The entire central wing of the building has been opened up to create a three-storey-high space, within which two suspended, column-free and apparently floating exhibition plateaus are connected by creatively shaped stairs to form a large-scale sculpture. The space remains tangible, opening up in the form of voids of up to nine metres in height. The façade is also part of this atmospheric staging: Subdued daylight filters through fabric stretched across the window openings into the body of the museum, enhancing the atmosphere created by the lighting ceilings that are integrated into the plateaus. Mobile walls enable the balustrades to be raised and reinterpreted at will, ensuring the flexibility of the range of spaces. This diversity is complemented by cabinets in the side wings, which also serve as small exhibition spaces. One of these is atmospherically devoted to the collector herself, illustrating her passion and wide range of interests with the help of personal objects and items of furniture. Photos © Lukas Schaller Credits for images 3, 5, 6, 7,10, 1: © Photo Lukas Schaller_exhibition view OPEN, 2022, Heidi Horten Collection
Collaborators
1























