NASA Aerospace Communications Facility
Ross Barney Architects
OH, United States
- Year
- 2023
- Category
- Institutional > Government and Civic Buildings
- Type
- Industrial
- Firm
- Ross Barney Architects
- Location
- OH, United States
- Award
- A+ 2025 · Finalist

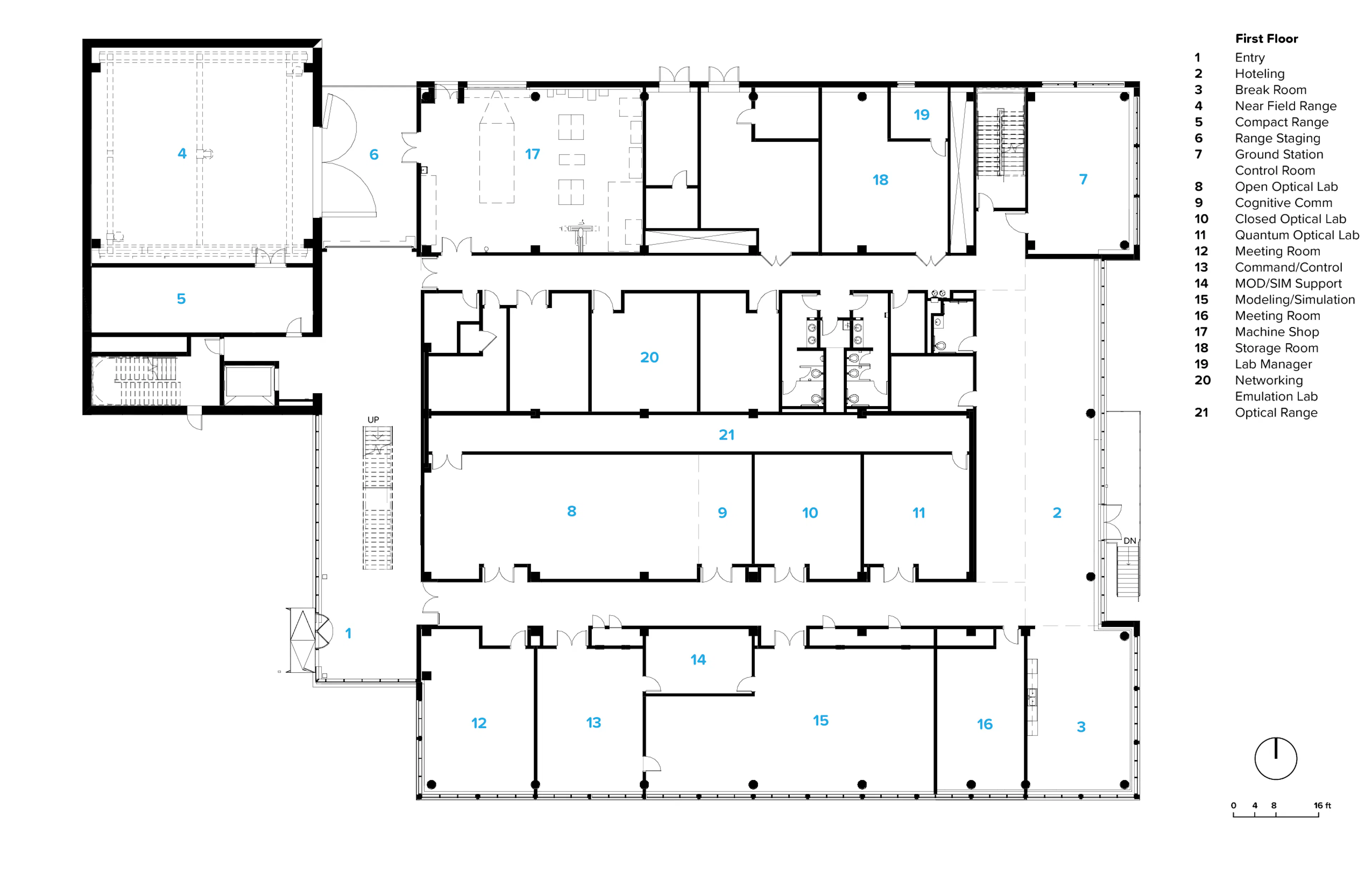
The NASA Glenn Research Center, Aerospace Communications Facility (ACF) consolidates research laboratories that were located in seven different buildings on Lewis Field into a single, state of the art research facility. Consisting of efficient, flexible laboratories, anechoic test chambers, RF-shielded laboratories, collaboration spaces, information technology support areas, and a dedicated rooftop platform for communications antennas the new facility is a hub for the important research supporting deep space communications technology. The building program prioritized shared research space and opted to pilot a hoteling work concept over private offices. The resulting lounge and conference spaces sit adjacent to the ravine, providing a dynamic backdrop year-round. The Near Field Range, an anechoic laboratory for testing antennas and antenna systems, is clad in a custom designed etched concrete full of scientific equations. The faded graphic breaks down the scale of the 60 foot laboratory, creating a backdrop for the adjacent outdoor amenity space/ plaza. A prominent feature of the facade is an articulated skin that reflects the pragmatism of the campus. Etched concrete, glass, corrugated metal, and an undulating sunscreen work to broadcast research and create interior environments that foster innovation, manipulate light, and reflect the research within. The building achieved a LEED Gold rating and is designed to be Net Zero Energy Ready (NZER), incorporating energy features identified in the Net Zero Energy Buildings Roadmap prepared by the National Renewable Energy Laboratory. The design team investigated energy use drivers (including a current plug load survey), established an EUI target, analyzed the building design and systems, performed an energy cost summary, calculated anticipated CO2 emissions, cataloged life cycle costs, identified return on investments for optimized building systems, and identified the site’s potential for renewable energy production. The design for a photovoltaic array adjacent to the building is at-the-ready for when funding becomes available.
Collaborators
1






















