Nef Gölköy
EAA – Emre Arolat Architecture
Bodrum, Türkiye
- Year
- 2024
- Category
- Residential > Multi Unit Housing - Low Rise (1 - 4 Floors)
- Type
- Residential
- Firm
- EAA – Emre Arolat Architecture
- Location
- Bodrum, Türkiye
- Award
- A+ 2025 · Finalist

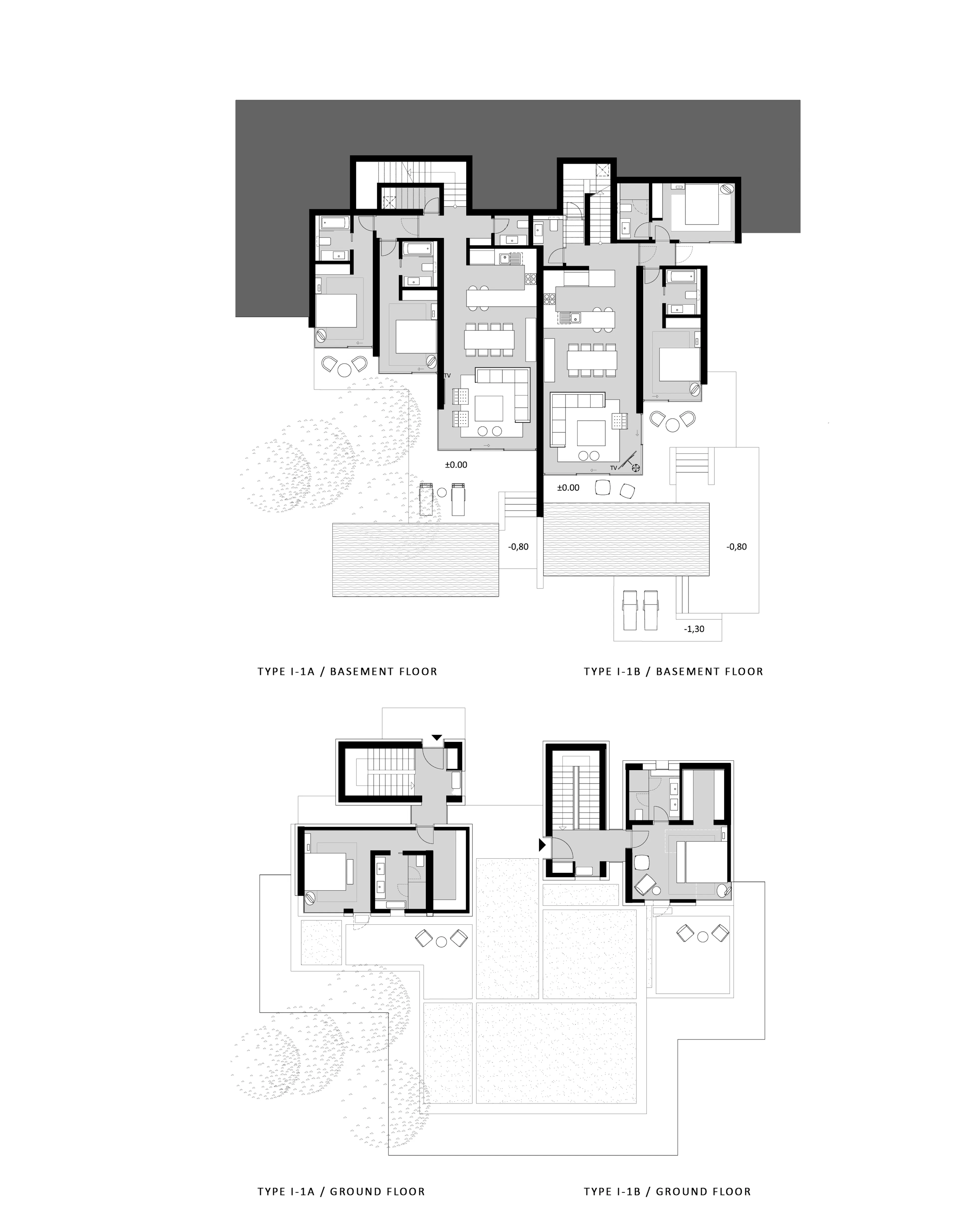
The design process of the Gölköy Houses was shaped by the defining characteristics of the context and the relationship with the land. The settlement strategy prioritized preserving mature trees, rich rock formations, and topographic features, avoiding large-scale interventions. All structures were designed to blend into the natural texture rather than stand out when viewed from the sea. The lower levels were conceived as platforms gently placed within the voids of the terrain, conforming to its form. These levels, often housing living areas, were intended to integrate seamlessly with the surrounding natural texture over time. In contrast, the upper levels featured prismatic masses inspired by Mediterranean vernacular architecture, designed with a fragmented language. This approach created open and semi-open spaces in various directions and at different levels, providing flexible use throughout the day. Each unit was carefully positioned to ensure uninterrupted sea views, while the fragmented design language was enriched by a natural, textured material palette, including stone, wood, and exposed concrete. The sea-facing facades of the living areas were designed to seamlessly connect with the view, fostering a strong visual dialogue. The placement of the units was meticulously studied to maintain the topography and ensure smooth integration with the natural surroundings. This strategy allowed the structures to blend into the existing landscape, becoming nearly invisible when viewed from the sea.
Collaborators
1









