NMMI Cahoon Armory Renovation
NPSR Architects
Roswell, United States
- Year
- 2022
- Category
- Built > Sustainable Sports and Recreation Building
- Type
- Hospitality + Sport
- Firm
- NPSR Architects
- Location
- Roswell, United States
- Award
- A+ 2023 · Finalist

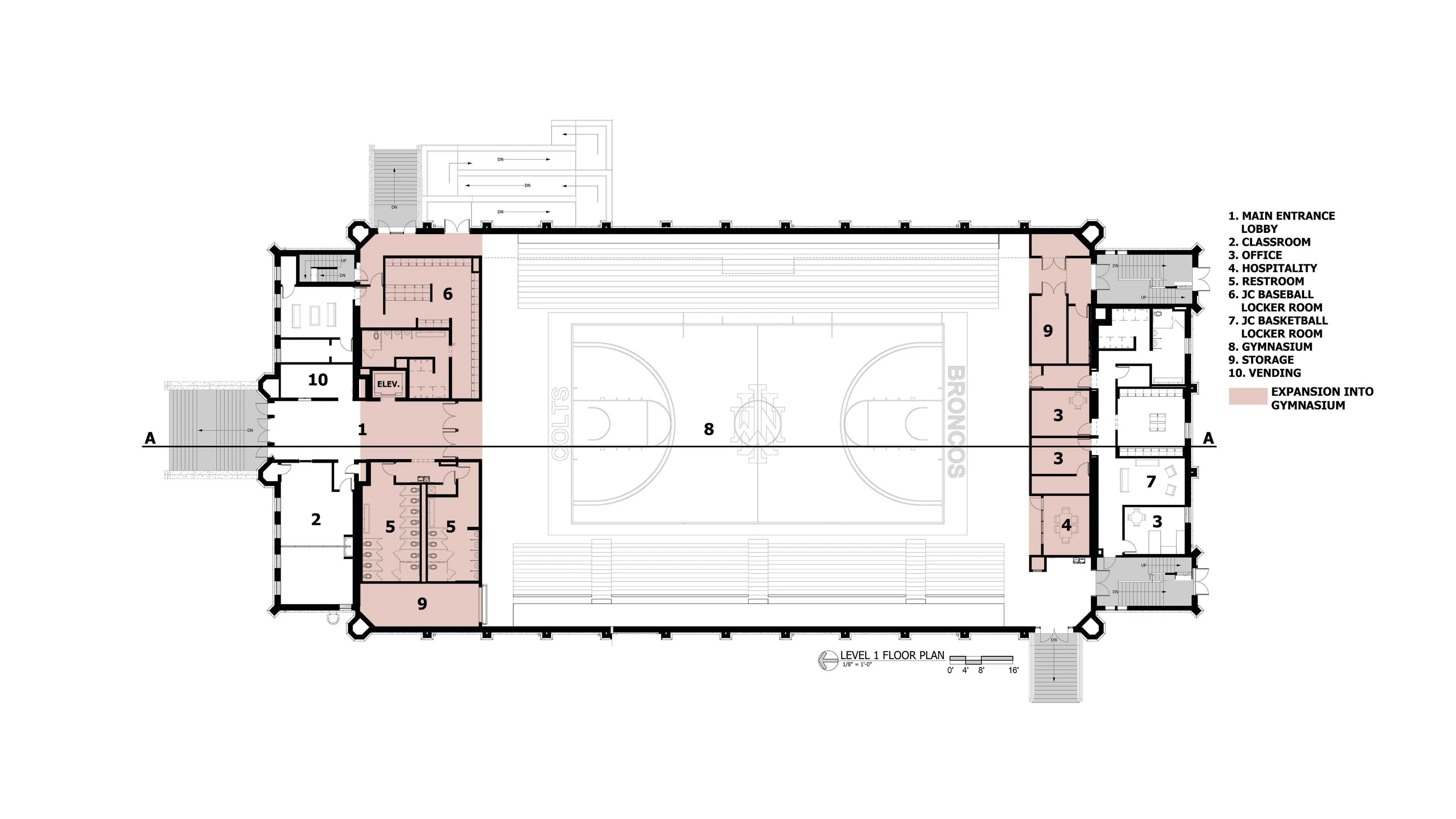
Originally constructed in 1927, this 55,000 square foot, 5-story structure exemplifies New Mexico Military Institute’s (NMMI) iconic gothic revival architectural style. Cahoon Armory is listed on the National Register of Historic Places as a contributing building to the Institute’s Historic District; making it critical for the design to respect the building’s aesthetics. The program for this project called for a total building renovation including new spaces for the Athletic Department administration, refurbished gymnasium, public restrooms, weight training room, training staff offices, equipment storage, and coaches’ offices. The program required areas for new locker rooms for the Junior College Volleyball, Football, Basketball, and Baseball teams. New team and locker rooms for High School athletes were also expected. To increase functional space without adding a major addition to the building, the main entry lobby, along with office and locker room areas, were expanded into the existing gym space. One of the challenges of this project was working with extremely low structural members and ceiling heights. Where possible, ceiling spaces were opened to expose the building’s historic structure highlighting the 95-year-old steel trusses, wood joists, and brick structure. Historical elements such as the main entrance’s exterior wall sconces were restored and re-wired. The west basement addition is now home to two salvaged 1920’s era gothic style chandeliers. New public spaces such as the restrooms, VIP Lounge, NMMI Athletics Honor Room, and conference rooms were given a historical feel using warmer finishes. Athlete areas are layered with vibrant red LED cove lighting, hexagon pendants, bright recessed linear lighting, and subtle locker lighting. Modern finishes in these spaces make the athlete’s second home on campus sleek and modern facilitating NMMI’s retention and recruiting efforts. The project’s design fuses the building’s historical aesthetics with a modern, comfortable, functional, and sustainable facility for NMMI staff and athletes. The Cahoon Armory renovation was designed around the LEED V4 system. Water reduction has been achieved via the use of low flow faucets, water closets, and waterless urinals. Insulation was added to the existing brick exterior walls via a 4-inch-thick wall fur outs filled with closed cell spray foam insulation. Open cell spray foam insulation was provided within the floor cavities of each floor to provide additional insulation and sound protection. The new white TPO roof has as SRI of 99 reducing heat island effects. Fresh air, VFD fan coil units, and exhaust systems were completely redone allowing for improved air circulation. Construction waste was sorted on site and recycled. Historic light fixtures and an original interior window was salvaged, restored, and reinstalled. All materials utilized were vetted by LEED APs for no/low VOCs and recyclability. Team and office areas were designed to provide equitable facilities for all students and staff. The general contractor and many of his subcontractors and craftsmen are local to the Roswell area. The project was challenged by low ceilings throughout, the boundaries of the existing structure, the conflicts between new structure interweaving with HVAC systems, the availability of materials and labor, and the program requirements.
Collaborators
1lead














