Noah's Ark Nursery School
C+S ARCHITECTS
Alzano Lombardo, Italy
- Year
- 2025
- Category
- Institutional > Kindergartens
- Type
- Educational
- Firm
- C+S ARCHITECTS
- Location
- Alzano Lombardo, Italy
- Award
- A+ 2025 · Special Mention

C+S
Architects Completes
THE "NOAH’S ARK", A
Precious and Transparent Nursery School in in the Park of Villa Paglia in Alzano Lombardo
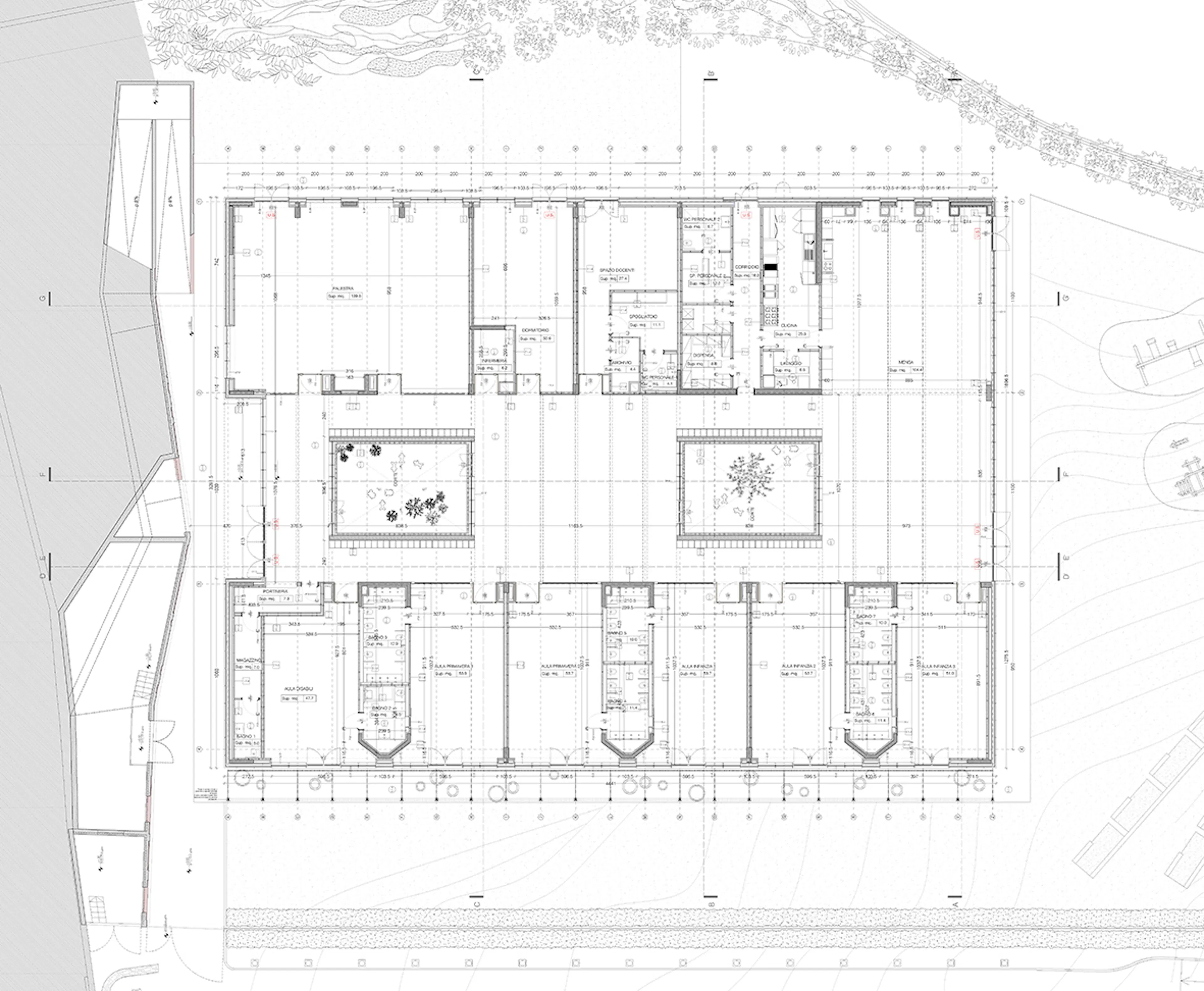
Completed after five years and nestled in the historic park of Villa Paglia, the new Noah's Ark nursery school in Alzano Lombardo stands at the forefront of spatial innovation and energy sustainability. Designed by C+S Architects, the project is deeply rooted in the territory and the rich tradition of Italian design. Maria Alessandra Segantini remarked: “This school represents an innovative approach to designing educational spaces—an act of breaking down barriers that, through transparency and intervisibility, fosters socialization and creativity among children, their teachers, families, and the entire surrounding community.” On 7th January 2025, 125 children from Alzano Lombardo, near Bergamo, entered the new 'Noah's Ark' nursery school for the first time. This remarkable pavilion is clad in white glass mosaic with bronze-framed windows, highlighted by a series of roof sheds and nestled within the historic park of Villa Paglia. The intervention, with a budget of €5.5 million, was financed by the Lombardy Region, GSE, the Cariplo Foundation, and the Municipality of Alzano Lombardo. The nursery school occupies 3,380 m² within the Villa Paglia complex and its park, both protected by the Heritage Department, covering a total area of 15,865 m². The project was designed by Carlo Cappai and Maria Alessandra Segantini of C+S ARCHITECTS, with offices in Treviso and London, in collaboration with Studio Capitanio, based in Bergamo (responsible for site supervision, local coordination, health and safety, and QS), and with structural consultancy from Myallonier Ingegneria srl. MEP engineering was provided by the MCZ studio, acoustics by Andrea Breviario, and geological consultancy by Castalia. Cappai and Segantini have been working on school buildings for more than thirty years. Their schools are internationally recognized, have been valued as best practices in the development of the new Italian Ministry’s guidelines on school building design, and were exhibited at the 15th Venice Architecture Biennale with the installation EDUcare in 2016. Carlo Cappai and Maria Alessandra Segantini write: "As architects and researchers, we recognize that schools play an important political role—derived from the Greek polis, meaning community. Schools are community buildings that build communities. We like to think of our schools as the town squares of small towns and villages. The Alzano Lombardo Childhood Center is an opportunity for us to translate part of the territory’s heritage and transform it into a resource for the community. The transformation of Villa Paglia Park is one such legacy, which is being reimagined as a resource with potential at the urban, architectural, and experiential scale for the citizens. We conceived this school building with the idea of creating a space that could be used by the entire community at various times. It is a space that can be experienced by students, teachers, and children as a large, transparent, and open cultural hub that stimulates curiosity and the exchange of experiences and knowledge among people, reconnecting them with nature and all its inhabitants." The site where the new school is located covers an area of 3,380 m². It was once the "vegetable garden" of Villa Paglia, located to the north of the ornamental garden, which is separated from it to the west by a pergola consisting of a double row of concrete grit columns. To the north and east, the site is bordered by high walls, partly made of stone and partly of concrete, which separates it from Via Montelungo and private property, respectively. Altimetrically, the site is divided into several levels, with an average height difference of approximately 3.50 m, separated by a retaining wall made of river pebbles. In keeping with the stone retaining walls that create continuity between the different levels of the Val Seriana landscape, the project adopts the topographic principle of retaining wall construction — the DNA of the place. It integrates a new reinforced concrete wall, pigmented red and deactivated with exposed aggregates, at the entrance from Via Montelungo to establish continuity and harmony with the surrounding landscape. At the entrance, the wall also functions as a space to house utility meters, while its texture, combined with the metal fence following the curves of the road and the red gate featuring the logo of the new school, enhances its visual appeal. Upon arrival from Via Montelungo, only the roof sheds are visible — a tribute to Alzano's illustrious industrial past, symbolizing the metaphor of the school as a 'factory of knowledge.' This industrial heritage, which made Alzano Lombardo famous for its white concrete (still known today as 'Alzano White'), inspired the architects to use this color to define the identity of the new school, which is clad in white glass mosaic tiles. This detail also honors the post-war Italian design masters. The deactivated red concrete wall impacts the landscape, transforming it into a play ramp that children will recognize as part of their school’s identity. It serves as a ramp that doubles as a bench or houses the heating pumps. It is also a ramp where the animal figures from the famous puzzle Enzo Mari designed for Danese in 1957 are engraved. “On Sundays, on a table in front of the fireplace, my mom and grandmother would scatter Enzo Mari's animal puzzle pieces, and my sister and I would play at reconstructing it. I loved that game; I loved touching the wood, and seeing how all the pieces came together to form a whole where the figures embraced each other. The warmth of that moment stayed with me, tucked away in my memory, to resurface when I began thinking about the Alzano school. I wanted every child to feel that warmth in my school—that sense of being together, that joy of playing while learning. For this reason, I proposed to the team that we engrave those animals along the path leading to the school, as though the school was a contemporary Noah's Ark, saving the world... a place where everyone—animals, children, plants—embraces each other,” explains Maria Alessandra Segantini, speaking about the design concept. During the journey along the ramp, the school begins to emerge through its faults. At the level of the school entrance, the wall transforms into a space: the hippopotamus houses the stroller and tricycle storage, while the pig and the bull serve as the ventilation for the heating plant. The design concept lies at the intersection of architecture and landscape, developed through the relationship and tension between the rough red wall, engraved with the animal ramp, and the delicate transparent volume of the school, clad in white glass mosaic tiles and large windows framed by a thin bronze structure. This structure reflects the vibrant life of the children playing, as well as the landscape and the changing seasons of the centuries-old garden. Here, the white glass mosaic facades provide a striking contrast to the colorful landscape of the wall: the two materials meet on the ground in a precise line. On one side, there is the raw red concrete laid at the foot of the wall, which changes color and becomes fine-grained white Levocel at the base of the white mosaic facade. The latter, built with 14 mm tiles of variable section, lights up with ever-changing shades throughout the day and evening, playing with shadows and reflections of light and the surrounding landscape. Despite being developed on a single level, the school explodes in height inside, thanks to a complex section that captures light not only from the large windows of the façade but also from the shed roof—a reminder of the industrial heritage of the Bergamo area. This connection to the land is reinforced through the project, creating a lasting experience for the children and transforming it into a future legacy. The layout of the school is tripartite, with flexibility being the key element. While each room is named, the central hall and its connection to the lateral wings enable the spaces to be used in multiple ways, fostering innovative teaching methods. This encourages teachers to express their creativity for the benefit of education. All spaces can easily be transformed into art laboratories, areas for digital and theatrical activities, gyms, or theatre spaces. The same flexibility also allows the community to use the school beyond regular hours, thanks to the large central hall. This space, with its expansive windows, invites the surrounding park's greenery to flow inward from all directions. The hall is a central distribution space, but also a multifunctional area, a space of potential for the creation of special events. Two internal courtyards carve out the building as "special open-air rooms," allowing even the little ones to stay outdoors as much as possible without danger. These courtyards are floored with a soft anti-shock carpet and populated by the same colorful animals designed by Enzo Mari. The central space soars in height, punctuated by a series of shed skylights set at 240 cm, which bring light into the innermost areas of the school: an indirect, diffused light that counterbalances the brightness of the windows and courtyards. From the entrance, the transparency of the courtyards offers a continuous view of the garden on the opposite side. The choice of materials is carefully considered: it assigns the points of contact between the children and the space to wood and promotes intervisibility among all areas. Great attention was given to material selection to ensure excellent acoustics in every space. We have designed a ‘space of potential,’ where every area can be transformed by the creativity of the teachers or the community that surrounds it. All common spaces are generous and can be adapted into ‘spaces for special activities,’ even during after-school hours. In this way, the school becomes an epicenter for the community and strengthens its identity,” writes Carlo Cappai. On the west side, the six sections of the school overlook the park of Villa Paglia, with its centuries-old trees and historic pergola. Meanwhile, towards the hall, a glass door and a large window reveal the flow of life in each section. The white linoleum floor, which covers the entire surface of the school (including the toilets), is marked in each classroom by an animal in a different color—the same color used for the shiny ceramic tiles in the corresponding bathroom of each section. Each classroom is equipped with a fixed wardrobe that extends along the entire length of the section. On the opposite side, Mari's animal figures, this time made from plywood, serve as both teaching tools and large-scale games, specifically designed by C+S Architects. Each classroom has a direct exit leading to the external portico, which is a tribute to Terragni's design for the Sant'Elia Nursery School in Como. This portico features a series of metal pillars supporting external curtains that approach the facade without touching it. The external lighting of the school is also integrated into the system of detached pillars. On the side opposite the classrooms are the gym, the infirmary, the teachers' rooms, and the kitchen, which has a separate entrance. Opposite the entrance is a spacious canteen that opens onto the garden and play areas. Two large circles of colored anti-shock carpet are laid on the ground, with the silhouettes of the animals engraved once again. The canteen space is also defined by a sequence of sheds with warm, diffused light that contrasts with the sunlight that enters through the large windows overlooking the garden at sunset. Thanks to the use of alternative energy sources, the building achieves the highest levels of energy efficiency, making it the first public building classified as an NZEB (Nearly Zero Energy Building) for the community of Alzano Lombardo. Mayor Bertocchi states: "The project was born from the awareness that the old school of Busa, built in the 1950s, could not be upgraded and made earthquake-resistant with satisfactory results. Therefore, the decision was made to demolish and rebuild the school in a different location, with better solar and climatic exposure and a more central urban position, to facilitate accessibility and proximity to public services, thus promoting teaching. It is a building designed to be safe, functional, and highly efficient, incorporating all the latest technologies. It is a school thought and designed to support new learning models, providing them with a welcoming and flexible space." Carlo Cappai and Maria Alessandra Segantini conclude: “The experience of this project has allowed us to explore an area rich in ancient and recent history. Thanks to our collaboration with Studio Capitanio and the contractor Perico, who generously helped us translate the needs of the community and the essence of the place, and with whom we worked in great harmony, we feel we have planted another seed to nurture a strong community through the design of a school building. In doing so, we have given the citizens of Alzano a part of the landscape that was previously closed off. We are honored to have worked with the Alzano community, carefully preserving its precious historical, artistic, and landscape resources and returning them to the citizens through the design of a school." CREDITS Client: Municipality of Alzano Lombardo Head Designers and Design Guardianship: Carlo Cappai e Maria Alessandra Segantini, C+S ARCHITECTS, PM: Maria Alessandra Segantini with Tommaso Iaiza, Stefano Di Daniel, C+S ARCHITECTS Site Supervision, Health and Safety, QS and local coordination: Remo Capitanio, with Alberto Valtulini and Marina Brambati,
Studio Capitanio Architetti
Structures: Sergio Myallonier, Myallonier Ingegneria srl MEP: Enrico Zambonelli, Loris Doneda, MCZ Ingegneria srl Acoustics: Andrea Breviario Geology, geotechnical consultancy: Giulio Mazzoleni, CASTALDIA Photos: Alessandra Bello, Maria Alessandra Segantini Contractor: Impresa Perico, Giacomo Algisi, Enrico Signorelli, Andrea Persico Subcontractors Windows: Kreal, Lecco Glass mosaic: Mosaico+ Fixed furniture and wall games: Falegnameria Fadel, Treviso Floors: Vaneton srl, Modena Lighting: Glip srl, Treviso
Collaborators
1lead



















































