Nothing Design Co. Headquarters
Range Design & Architecture
Chicago, United States
- Year
- 2024
- Category
- Commercial > Commercial Renovations and Additions
- Type
- Commercial
- Firm
- Range Design & Architecture
- Location
- Chicago, United States
- Award
- A+ 2025 · Finalist

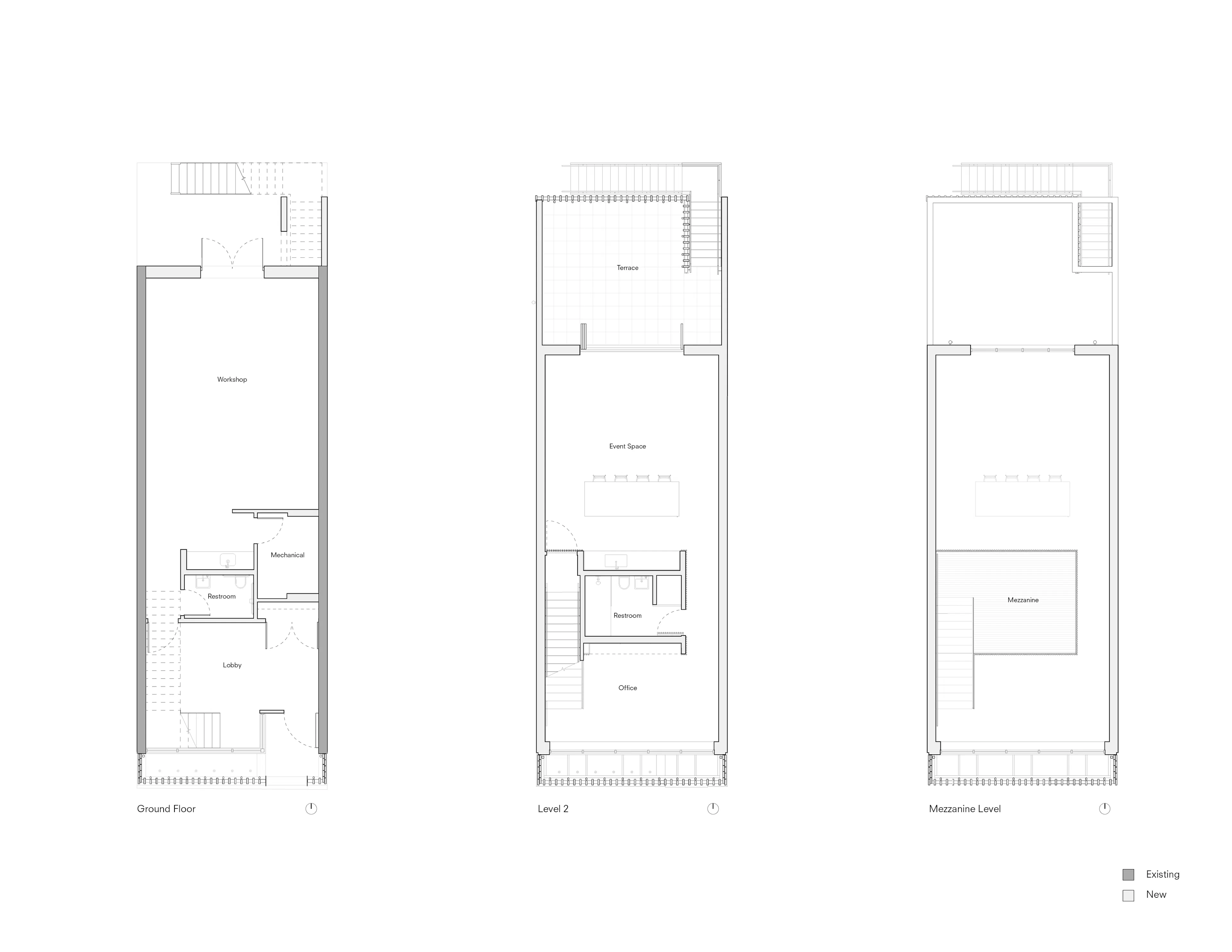
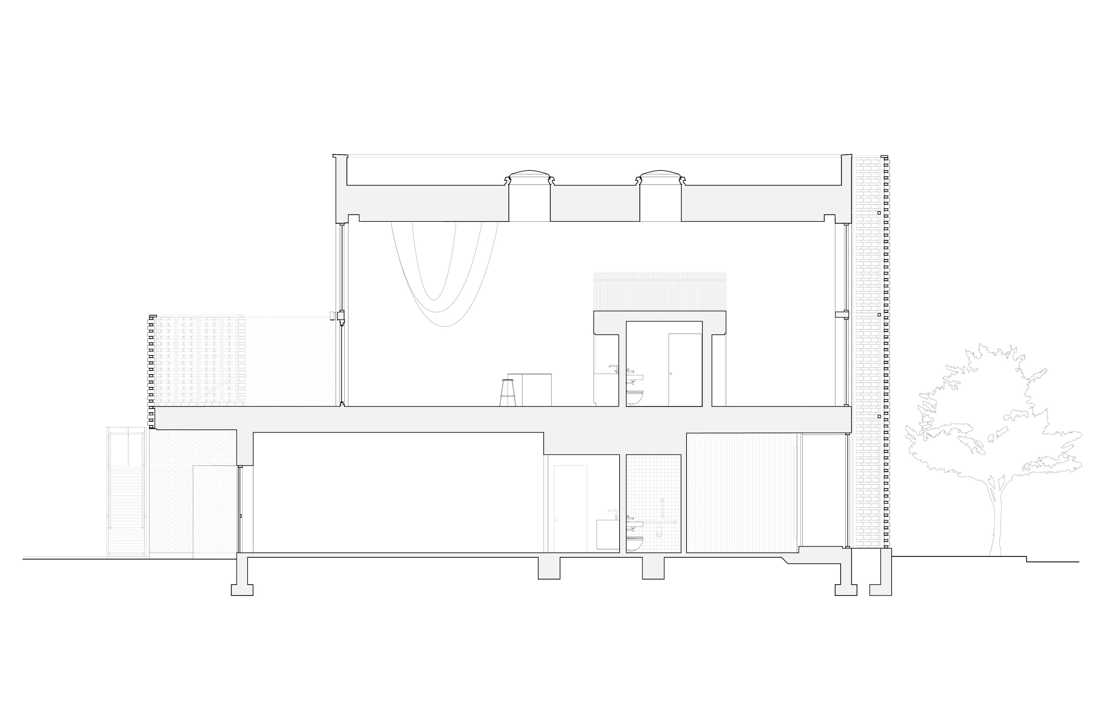
This expansion of an existing structure into a furniture design studio and showroom aims to unify and express a variety of spatial qualities, to make and house furniture, address daylighting and energy performance considerations for a south-facing facade, and build upon Chicago's historical pattern of common brick structures with face-brick fronts. To expand the volume, common brick-bearing walls were extended vertically, and due to the proximity of the property line no openings were allowed in these walls. As a result, access to light was limited to the street and yard facing edges of the building. Taking cues from Chicago's historical pattern of face-brick fronts and common brick sides, terra-cotta colored paver bricks were employed as a brick screen on the street. This creates a distinct and contextual facade that filters natural light thereby reducing the cooling load from the direct southern exposure. At the yard-facing side of the building the brick screen, executed in common brick, transforms a second-floor patio extending the perceived edge of the space. A bi-folding, glazed door folds away to extend the usable area into the patio. Brick, both reclaimed and new, was critical to aesthetic considerations. Chicago is a city of brick, tapestried by the infinite variability of the material's module and mass. The structure is ultimately anchored within this context—the material is used to provide structure, respond to the context, filter light, and create a distinct identity for the project.
Collaborators
1
















