One Za'abeel
NIKKEN SEKKEI LTD
Dubai, United Arab Emirates
- Year
- 2024
- Category
- Commercial > Mixed Use (L >25,000 sq ft.)
- Type
- Residential
- Firm
- NIKKEN SEKKEI LTD
- Location
- Dubai, United Arab Emirates
- Award
- A+ 2025 · Finalist

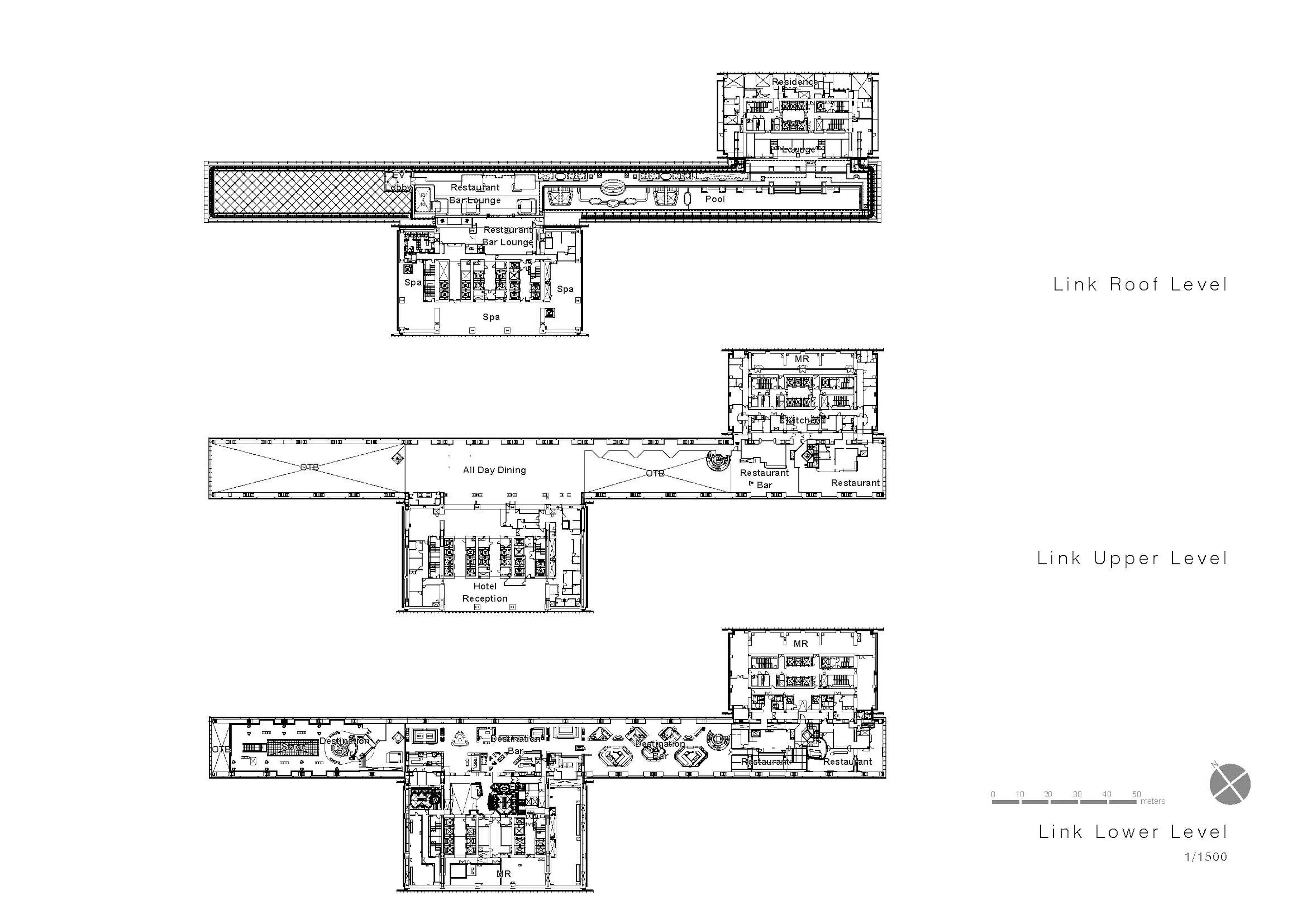
One Za’abeel Elegant towers set to become a new symbol of Dubai One Za’abeel is a large-scale mixed-use development standing at the entrance to central Dubai, the world’s leading financial hub. Offices, hotels, residences, and commercial spaces are seamlessly integrated, promising the people of Dubai a compelling and elevated lifestyle experience. Nikken Sekkei was chosen to bring this project to life in 2014, following an international competition. Its two towers each stand on plots separated by a highway, connected 100 meters above ground by THE LINK. The linear and asymmetrical silhouette embodies timeless elegance, and their shining glass exteriors are carefully selected to help manage the indoor environment. The development houses ultra-luxury hotel brand One&Only’s first vertical resort experience One&Only One Za’abeel, alongside 94 One&Only Private Homes, a fitness & recovery-themed lifestyle hotel SIRO, as well as 8 Michelin-starred restaurants and a rooftop infinity pool atop THE LINK. A Fresh Dubai Skyline One Za’abeel stands at the gateway from the Dubai International Airport to the city center, the entrance to the arterial Sheikh Zayed Road. Along this street, the Burj Khalifa, the Emirates Towers, and other iconic works of architecture have already marked their prominence. Amid these buildings, One Za’abeel, with its simple Japanese design, projects a bold, yet graceful silhouette, distinguishing itself as a novel symbol that shapes Dubai’s skyline. Bridging the Divide: Two Plots Bisected by a Highway The development area is bifurcated by a highway. The podium, which accommodates commercial outlets and hotel meeting spaces and ballrooms, envelops both plots with its curvilinear design. In addition, the space below the elevated highway is transformed into a plaza, making the entire development feel interconnected. The two towers, One Za’abeel Tower and One Za’abeel The Residences, stand on their respective plots, and THE LINK facilitates their functional integration. The cantilevered building and its rooftop not only offer panoramic views, but also amplify the iconic stature of the project’s design. A Facade Design with Depth The tower’s exterior offers diverse expressions depending on the viewing angle due to the glass fins positioned outside the glass curtain wall. White dots on the glass fins both enhance solar shading and temper the reflective quality, adding depth. The facade also employs highly transparent low-e glass with superior solar shading capabilities. THE LINK’s truss structure, combined with its six-sided glass curtain wall, enhances its “floating” appearance. Encircled by roads, the podium has a rhythmic design with its balconies and bay windows. Multi-colored aluminum louvers were also draped, behind which ventilation equipment and other functional elements are hidden, combining functionality and design. Structural Plan of the Two Towers and
The Link
In the tower section, a steel-and-concrete composite structure minimizes column dimensions and optimizes floor space. To support THE LINK, high-strength steel diagonals are integrated within the tower’s connecting concrete walls, bolstering their strength. THE LINK adopts a robust outer tubular structure; major steel components are organized in a diagrid pattern across four faces, curbing torsion and deformation, and enabling a vast, column-free interior. THE LINK also augments structural safety through its connecting function with the two towers on either side. It plays a pivotal role in counteracting the challenges of wind-induced sway in tall buildings. Assembly and Hoisting of THE LINK: The Incremental Launching Method Spanning the highway below, THE LINK was assembled using the Incremental Launching Method, in which blocks of preassembled material were slid into place and connected in sequence in order to minimize high-altitude work processes. The trek across the 40m-wide highway was accomplished in seven sliding steps. At a length of 230 meters and a weight of approximately 9,580 tons, THE LINK was elevated to a height of nearly 100 meters in two stages. The first section, weighing around 8,500 tons, was lifted into place between the two towers over 12 days. The remaining cantilever tip, weighing nearly 900 tons, was hoisted up and attached during a second, four-day procedure. Lead Consultant and Leadership Nikken Sekkei undertook the role of Lead Consultant for this venture. In the site supervision phase, the company guided the intricate design and construction processes, liaising with a vast network of over 60 companies from nearly 20 countries. This involved over 1,000 construction-related personnel. Project Details Project Name: One Za’abeel Type: Office, commercial, hotel, residential, banquet hall Location (prefecture, city): Dubai, United Arab Emirates Site area (m2): 31,100 Total floor area (m2): 530,700 Floors: One Za’abeel Tower= 67 above-ground floors One Za’abeel The Residences= 58 above-ground floors THE LINK= Three floors Podium= Four above-ground floors, seven basement levels Height (m): One Za’abeel Tower= 305 One Za’abeel The Residences= 235 Podium= 20 Main structure: Reinforced concrete, steel frame construction Start of construction work: 2015 (preparation work) / 2017 (main work start) Date of completion: 2024 Credits Client: Investment Corporation of Dubai (ICD) Lead Consultant:
Nikken Sekkei Ltd
Main work scope(s):Lead Consultant (architectural design, structural design, MEP design, landscape design, signage design, site supervision, project management, etc.) Contractor:
Alec Engineering and Contracting
Other design partners(Irregular order):
Wsp Middle
EAST (Resident Engineer, AoR, MEP, structure, specialties) INHABIT (façade) LIMAH (signage) MCTS (kitchen services) CRACKNELL (landscape) BARR + WRAY (pool equipment) RWDI (wind engineering) LPA (façade, interior lighting) ESD (signage) NORTECH (aeronautical survey) LW
Design Group
Square M Design
Denniston Rockwell Group Dwp Hba Social
STUFISH and associated sub-consultants
Dpa Wellness Brimaxx Farmboy Capsule Arts Crowd Dynamics Brash
Photographer 1 © Koji Horiuchi Photographer 2 © Courtesy of One Za’abeel Photographer 3 Nikken Sekkei Ltd
Collaborators
1











































