Øvre Forsland og Bjørnstokk Hydraulic Power Stations
Stein Hamre Arkitektkontor
- Year
- 2015
- Category
- Concepts > Architecture +Sustainability
- Type
- Industrial
- Firm
- Stein Hamre Arkitektkontor
- Award
- A+ 2016 · Popular Choice

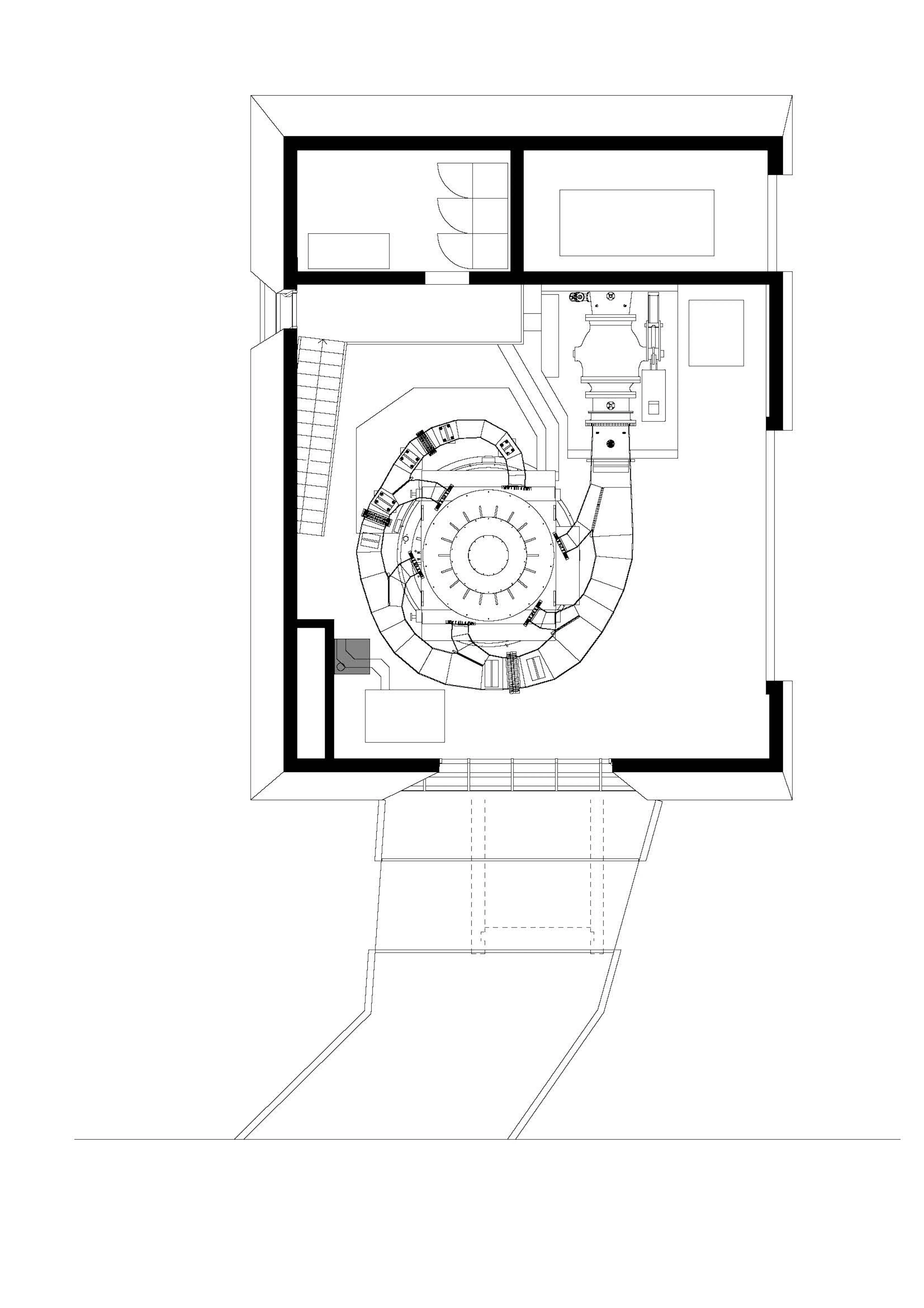
The client, HelgelandsKraft AS, is a large producer of hydraulic electricity in northern parts of Norway. In 2008 they started planning several new hydraulic power stations with high environmental ambitions. From the beginning their task for the architect was to find the best way to make their new power stations adapt to the site, and at the same time function as attractions and destinations. The general idea from the architects at stein hamre arkitektkontor, is the design of the new stations should reflect characteristics of the locations. At the same time the buildings should be spectacular. They should also tell the story about the production of power.Bjørnstokk and Øvre Forsland are medium sized hydraulic power stations that produce about 30 GWh each, equal to the consumption of 1600 residences a year. The landscape around the site for Bjørnstokk power station contains large rocks that have been left by the glacier of the last ice age. The station appears as a new mysterious rock in this scenery. Øvre Forsland power station is located on the river bed in a clearing at the edge of a spruce forest. The main inspiration for the design was the verticality and the irregularity of the spruce trees.In front of the building the visitor can experience the production of hydraulic electricity. From the bridge he can experience the water emerging from the station. And through the large openings he can look into the heart of the building where all the interior technical parts are exposed. The light design of the interior is inspired by the mystery of the Northern Light, and the colored lighting dramatizes the story of the production.
Collaborators
1




