Pampurr Pet Wellness
office architect9kampanad co., ltd.
Soi Sukhumvit 70/3, Thailand
- Year
- 2024
- Category
- Concepts > Architecture +Color
- Type
- Commercial
- Firm
- office architect9kampanad co., ltd.
- Location
- Soi Sukhumvit 70/3, Thailand
- Award
- A+ 2025 · Special Mention

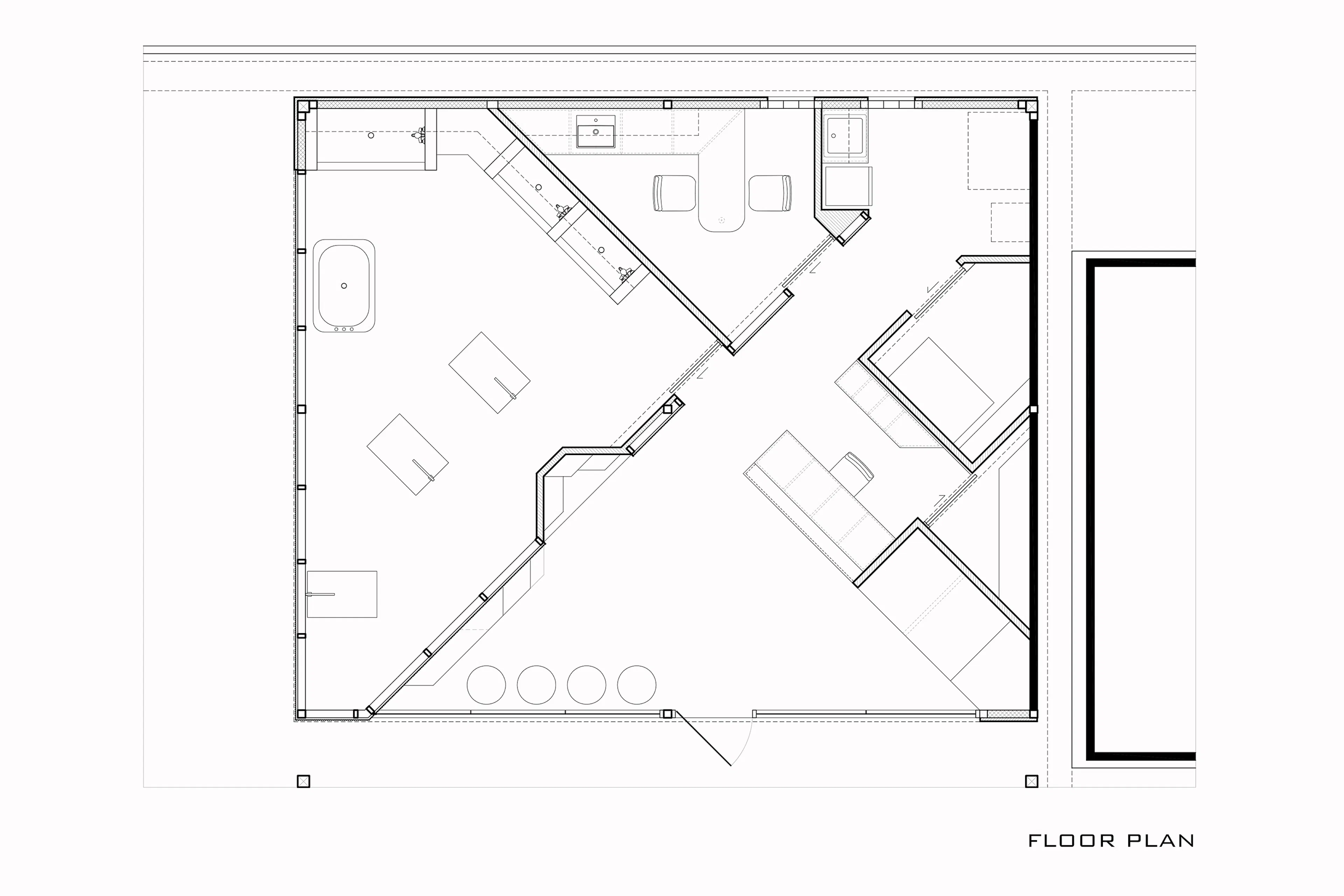
When the project owner sought to establish a veterinary clinic focused on dogs and cats in a rental space in the Bangna area of eastern Bangkok, the design team examined the surrounding environment. They found that the area was evolving into a modern urban lifestyle, characterized by large residential projects and shopping malls. In response, the design team proposed a vibrant concept to enhance the experience for visitors by creating a building and interior design that exudes relaxation and liveliness, accessible from all angles. The designers began by addressing accessibility with a fresh approach, introducing a triangular space as the primary design element to improve visibility from the narrow street. This innovative form expanded the perception of space within the clinic, allowing for a more inviting transition from the outside in. Consequently, this influenced the layout of the building, resulting in unique areas that foster interesting and non-repetitive usage. Additionally, common materials, such as translucent corrugated plastic roofing sheets in various colors, were creatively employed as the main wall surface. This technique provided a new way to define functional areas and contributed to a fresh atmosphere both inside and outside the building. The chosen color palette featured mint green, aimed at creating a soothing environment for visitors waiting for services. This color choice helped alleviate stress and made the clinic stand out against a predominantly monochromatic backdrop, adding vibrancy to the neighborhood. Overall, the design for Pampurr Pet Clinic focuses on fostering happiness and energy among clients and their pets, creating an inviting space that enhances the modern urban experience in the Bangna area.
Collaborators
1





































