Pembroke Hill School
Multistudio
Kansas City, United States
- Year
- 2023
- Category
- Details > Architecture +Facades
- Type
- Educational
- Firm
- Multistudio
- Location
- Kansas City, United States
- Award
- A+ 2025 · Finalist

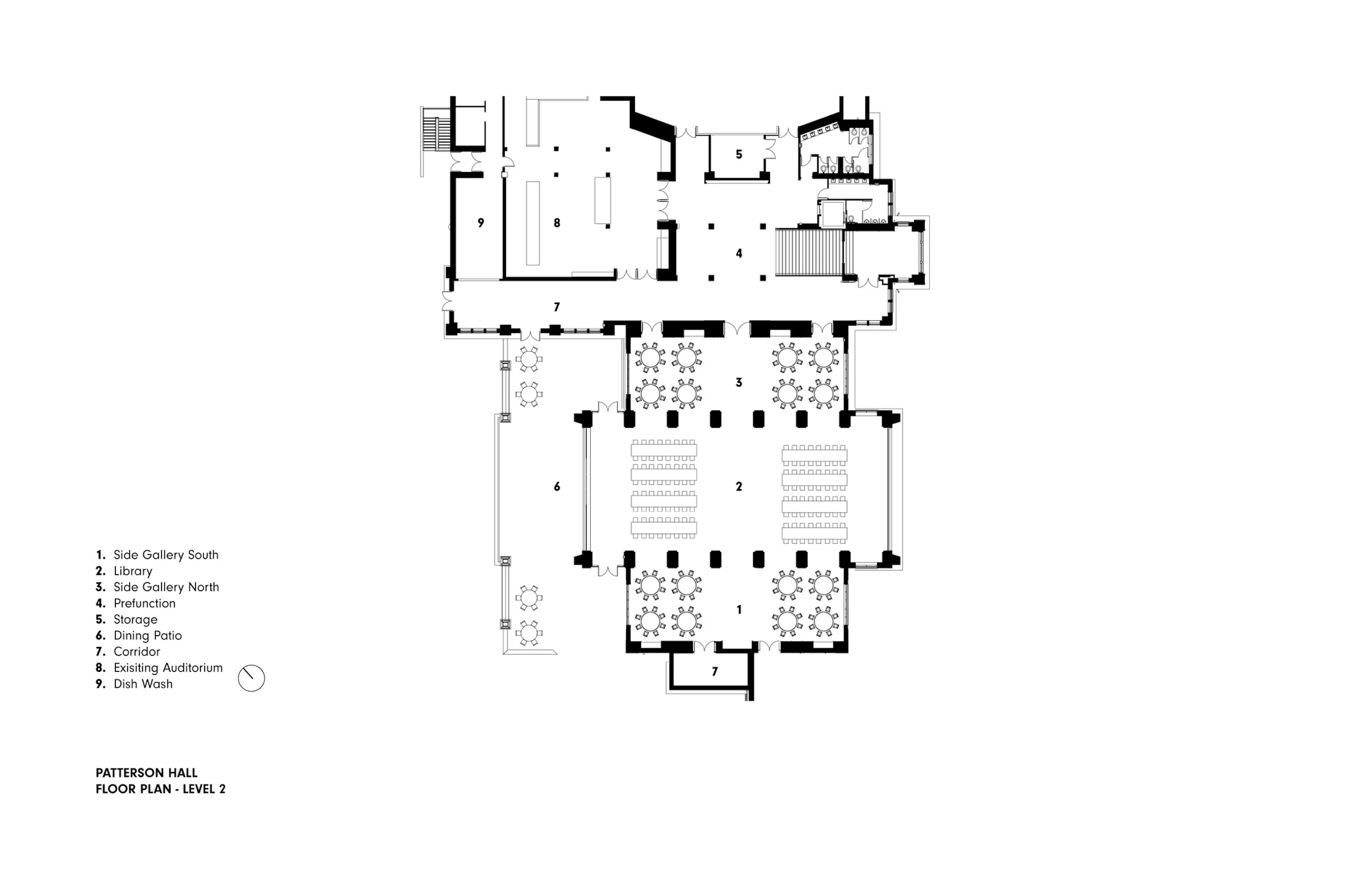
Pembroke Hill School's Ward Parkway Campus recently enhanced its largest gathering spaces to better serve its middle and upper schools. Central to this effort is Patterson Hall, an expansive, formal dining hall designed to accommodate everyday meals as well as student dances, parent meetings, and alumni events. The heart of Patterson Hall is defined by two dramatic 37-foot-high barrel-vaulted windows, one facing Ward Parkway and the other the campus green. These monumental windows are veiled by custom stainless-steel scrims created by Dutch artist Jan Hendrix and fabricated by Zahner. Hendrix’s nature-inspired designs flood the space with daylight by day, and transform Patterson Hall into a glowing beacon for the surrounding community by night. The dining hall extends onto a new outdoor terrace that connects to the enlarged campus green, creating opportunities for outdoor learning, graduations, and community events. Inside, the use of regional limestone, natural wood, and custom metalwork—including a central fireplace and sculptural stair railings—reinforces a timeless, collegiate atmosphere, seamlessly blending innovation with Pembroke Hill’s historic character. Photography by: Justine Miers Leonid Furmansky Shawn Brackbill
Collaborators
2lead
collaborator





















