Pluto X
UN-GROUP
Shanghai, China
- Year
- 2023
- Category
- Concepts > Architecture +Small Projects
- Type
- Commercial
- Firm
- UN-GROUP
- Location
- Shanghai, China
- Award
- A+ 2024 · Finalist

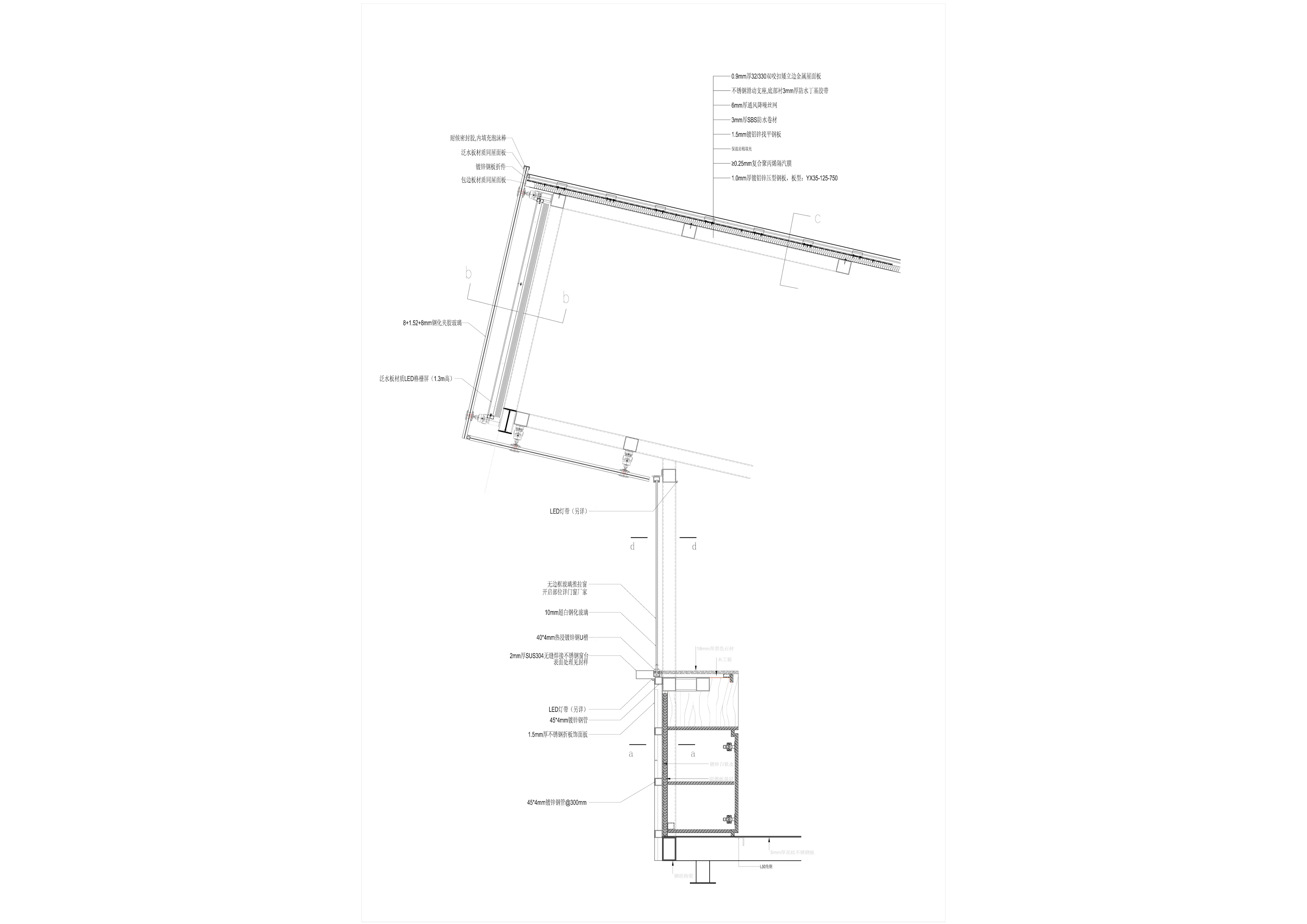
Collaborated with Tao Jia. The Shanghai Xuhui West Bund Riverside Walk is a world-class urban space with diverse lifestyles that bring together art, sports, dining and leisure life. The brand spirit of the Pluto/Liquid of ideas is to deliver an undefined paradigm of future life. Therefore, Pluto Xuhui West Bund Coffee Station (Pluto X) aims to introduce the collision of coffee and art to this iconic waterfront space, creating a dialogue with the urban background in a seemingly small volume. Pluto X is the first branch in Shanghai after the flagship store in BFC (the Bund Finance Center). The client wanted to conceive a miniature installation that would appear in any corner of the city. The design concept “X” originally came from Pluto's uncertain/unknown state, and we gave “X” multiple meanings through our design: X implies uncertainty of location; X also represents the intersection of two basic functional needs: coffee retail and LED art display; at the same time, X also reflects the form of the installation: the lower segment serves as the coffee station, while the raised upper glass volume with built-in grille LED screen is the art display, which crosses with the lower coffee segment to naturally form window areas for coffee to be sold and delivered. The cross also creates a sense of unbalanced dynamics. We wanted to naturally express the structural system and the building massing. The steel structure was wrapped in transparent glass, forming an exquisite industrial sense, just like the station was seen through by X-ray, which also echoed the motif concept of Pluto X. Xuhui West Bund Riverside Walk became Pluto X's first test site. This vocabulary attempts to form a continuity with the surrounding industrial sites. In architecture, we want to explore the reciprocity of seeing and being seen: multiple expressions coexist and appear in a cyclical state of change on a daily basis. During the day, the building presents a translucent openness, with the raised glass volume reflecting the surrounding trees and river; at night, the LED screen embedded in the glass box projects dynamic artistic images, bringing a touch of changing colors to the city in the dark. The station and the surrounding environment are protagonist and supporting role at the same time; the two jointly create an ambiguous interchanging relationship, rather than a single posture. Pluto X is only 15㎡, but it involves multi-system and multi-discipline cooperation. The process of design and construction has gone through many twists and turns. We would like to express our gratitude to the client for his dedication to the design realization and the cooperation of all consultants and the construction team.
Collaborators
1lead





















