Weinan-Qiaoma Village Cultural Center
Xi'an University of Architecture and Technology Design and Research Institute Co., Ltd
Weinan, China
- Year
- 2024
- Category
- Built > Sustainable Cultural Building
- Type
- Cultural
- Firm
- Xi'an University of Architecture and Technology Design and Research Institute Co., Ltd
- Location
- Weinan, China
- Award
- A+ 2025 · Finalist

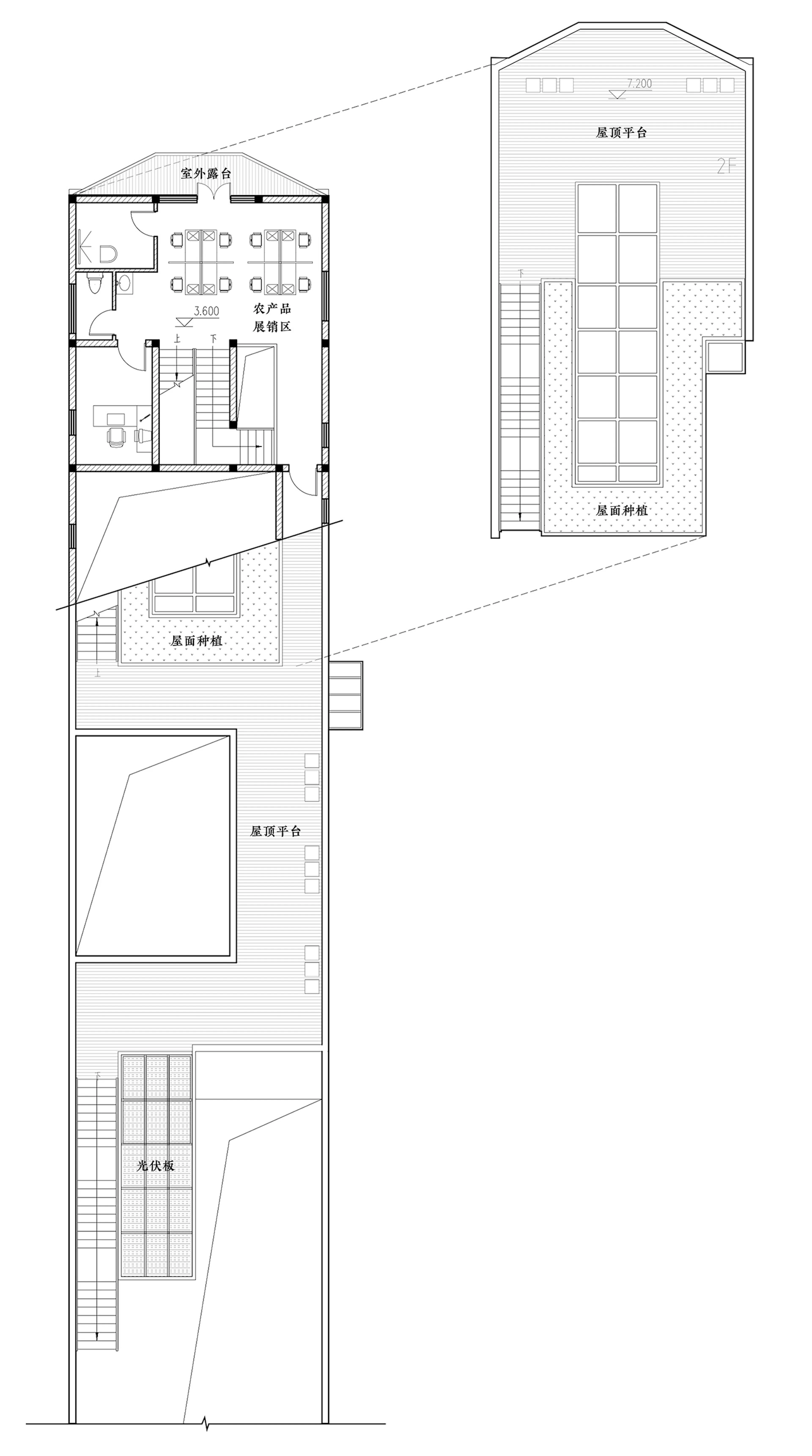
The Weinan-Qiaoma Village Cultural Center, designed by the Xi’an University of Architecture and Technology Design and Research Institute, is a multifunctional space located in Qiaoma Village, Gu Shi Town, Linwei District, Weinan City, Shaanxi Province. The project sits on a narrow and elongated site, only 9 meters wide but 98 meters long, typical of the Guanzhong region’s village layout. The design aims to integrate traditional Guanzhong architectural elements with modern functionality while promoting a sense of community and cultural identity. The center features a front plaza, an inner courtyard, and various functional areas such as a children’s reading area, a central activity hall, and an exhibition space for local agricultural products. The building’s form, higher in the north and lower in the south, minimizes its visual impact and seamlessly blends with the village’s texture. Sustainability is a key focus, with strategies including natural ventilation, daylighting, thermal insulation, and rainwater collection. The use of local materials like water-brushed stone and genuine stone paint enhances the building’s connection to its surroundings. The cultural center not only serves as a hub for community activities but also explores a green and low-carbon transition for rural architecture in the region.























