Qinfeng Library
垣建筑设计工作室 Wall Architects
Xi'An, China
- Year
- 2023
- Category
- Built > Sustainable Cultural Building
- Type
- Educational
- Firm
- 垣建筑设计工作室 Wall Architects
- Location
- Xi'An, China
- Award
- A+ 2024 · Finalist

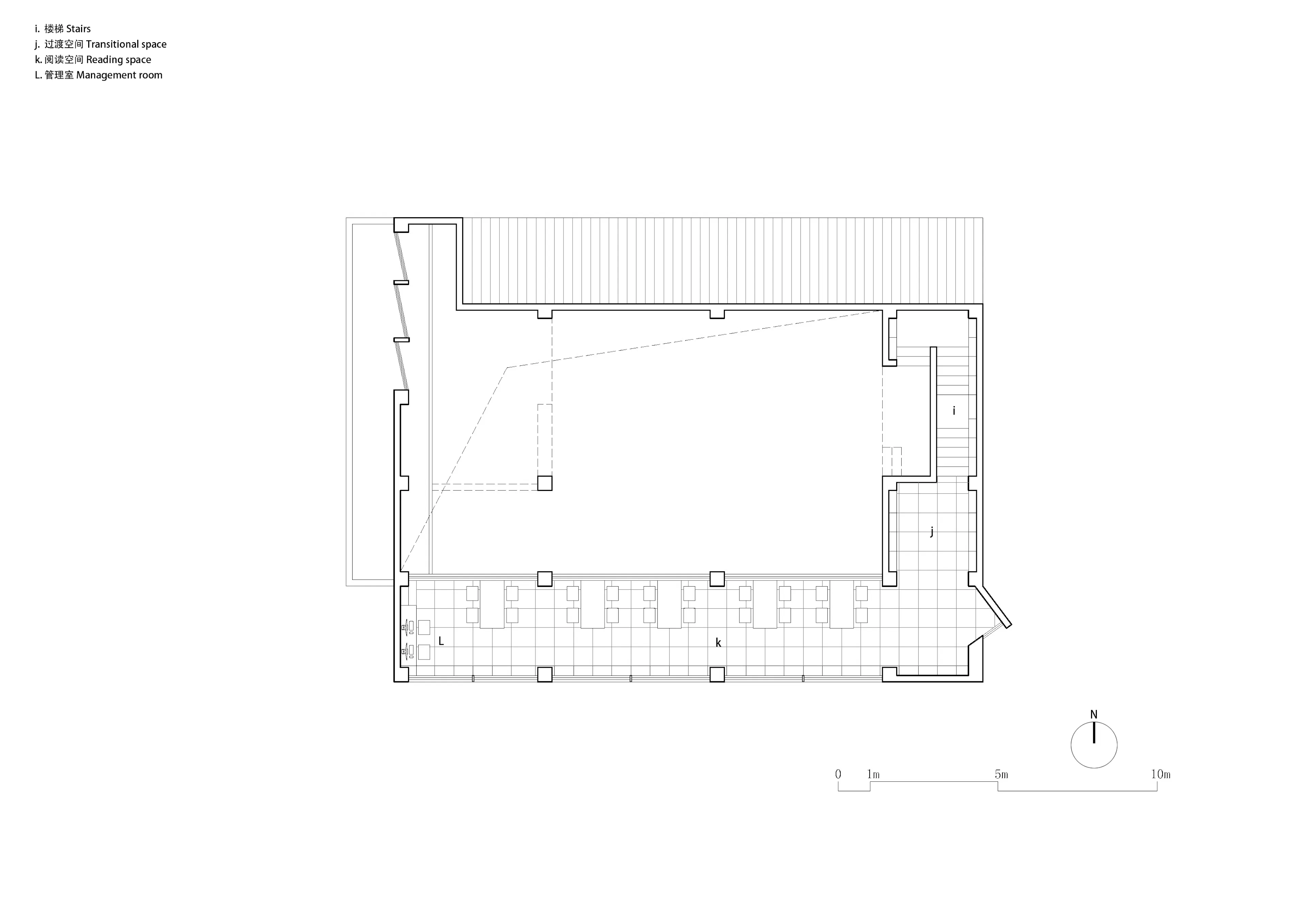
The Qinfeng Library is second Rural School Library of Hope Project in Shaanxi, which experimentally explores six values:(1)The design follows principle of "passive priority, active optimization",which requires this building to first adapt to climate resources of site, so that the orientation,form,spaces and openings are conducive to obtaining more solar radiation in winter, and better natural ventilation and cooling in summer.(2)The library is first rural public building with full DC power supply in Shaanxi Province.(3)This library with enhanced diffuse reflection and natural lighting as much as possible,and the skylight is automatically opened and powered by DC power socket.(4)The library is equipped with a full set of monitoring equipment,and set up a small weather station to collect real-time data for improvement.(5)The library is located in southeast corner of school,with the purpose of serving both inside and outside to benefit neighboring villagers.The first floor space becomes a“shared space”between the school and villagers,in the future enrichment activities can be organized to stimulate diversified rural cultural life.So the design has a rich spatial composition which not only meet the basic function of reading, but also compatible with many possibilities.(6)The semi-outdoor space on the west and north side can make up for the lack of appropriate public interaction spaces.
Collaborators
1





















