Red Box
Mix Architecture
Nanjing, China
- Year
- 2023
- Category
- Details > Architecture +Concrete
- Type
- Commercial
- Firm
- Mix Architecture
- Location
- Nanjing, China
- Award
- A+ 2024 · Popular Choice

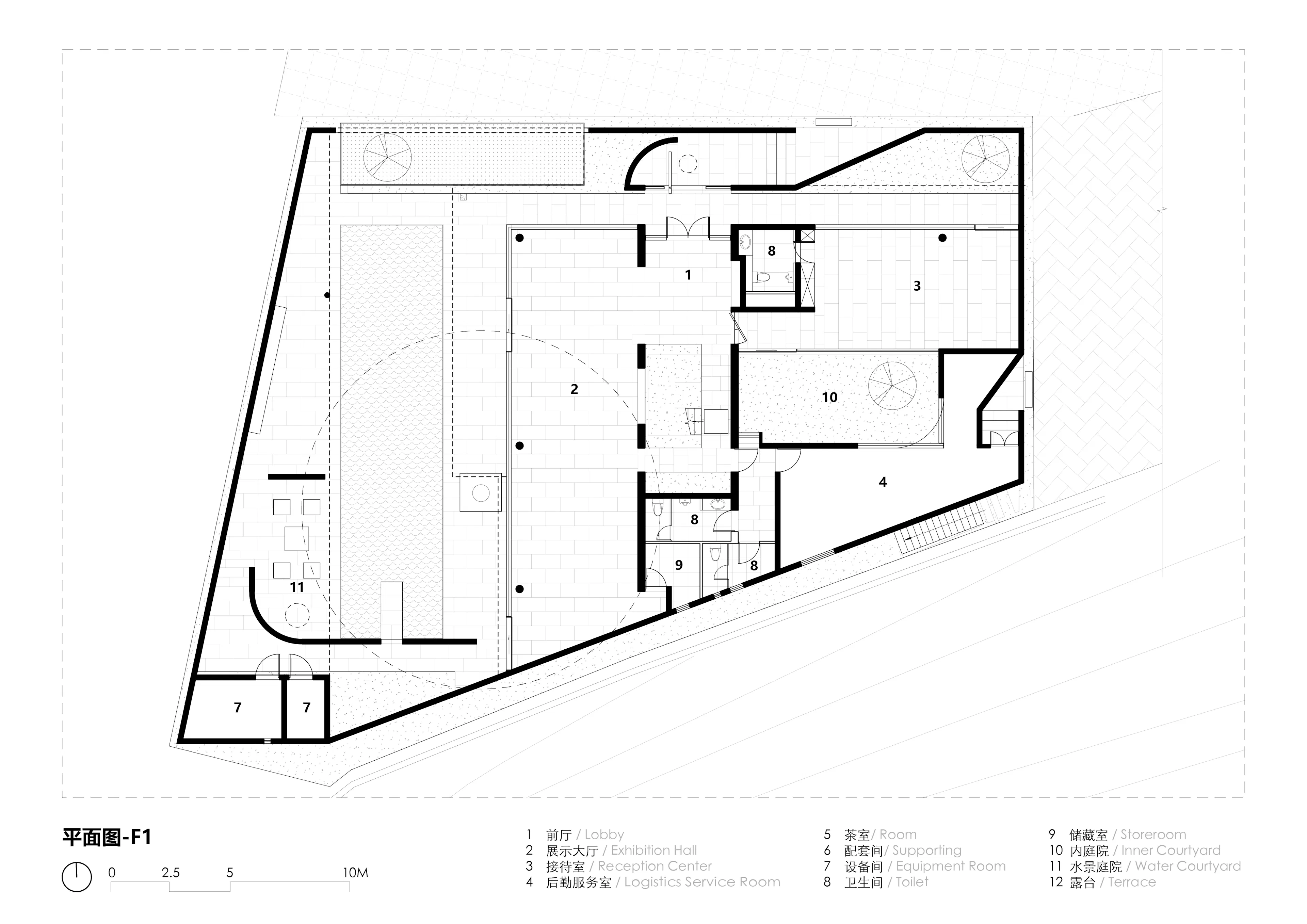
This is a red building, which we call the red box. The red box is located at the foot of Red mountain, Naning, which is also in the Hongshang park designed by Mix architecture. With the forest surrounding Hongshan mountain, the sculptural volume of the red box makes it unique. The Red Box is made up from the red concrete. "Red" responds to the environment, which has three different meanings. First, the Red Box responds to the "red" of chronological memory. Red mountain PARK, which is formerly known as Nanjing Combat Machinery Factory. Nanjing Combat Machinery Factory was founded in the 1950s, which has experienced the vigorous development of the founding of New China. The "red" memory has accompanied the growth of several generations. Secondly, in response to the "red" of the original red brick building of the Red mountain PARK factory area, Mix architecture decides to make the Red Box be a unique building with the same rhythm of the factory.Red concrete is poured using wooden templates, and the size of the wood texture is similar to that of existing red bricks. Finally, the building also responds to the "red" of Red Mountain. Red mountain was not its original name. Around 1,500 years ago, in the Six Dynasties era, people called it "Great Spectacular Mountain", where Emperor Chen Xuan once inspected the water training of Xuanwu Lake. During the Republic of China period, people noticed the redness of the mountain soil, and then discovered hematite in Red mountain, so the "Great Spectacular Mountain" was gradually called "Red Mountain". In 1948, "Red Mountain" had become its official name and appeared in the "Detailed Map of Nanjing Streets". The main component of hematite is iron oxide, which is exactly what red concrete does to become the main additive of "red". The red box is located at the foot of Red Mountain, with a large solid wall facing the park on the north side, like a rectangular volume floating on the horizontal courtyard wall. The terraces at the south side are stepping backward, echoing the Red Mountain, let nature merge into the building. A triangle is cut at the courtyard wall to hide the entrance of the building, making the road winding into the building. The entrance space is high, facing at the six-fold staircase. The west side is a public space, which infiltrates with the adjacent courtyard. This is the largest courtyard in the red box. A large tree is preserved in the courtyard. The reflecting pool is surrounded by corridors, and the trees and water waves reflect the Red Mountain Forest into the courtyard. The space on the east side is more private. The north side has a narrow courtyard, while the south side has a pine courtyard, which is evergreen. Walking up the stairs, the corridor connects the two usable spaces on the second floor together just like the bridge. Standing on the bridge then looking at the south, you will see the greenery of the red mountain. The two main walls of the two spaces on the second floor are made of acrylic semi-permeable material, seemingly randomly embedded in the red concrete wall. One is dot-shaped, which transmits light inside and outside like a starry sky; The other is brick-like, using openwork bricks that complement the red brick buildings in the park. From the interior to the large terrace, the red mountain rushes into the view, which makes the building becomes the framing frame while the red mountain melting into the red box. In order to make the red box remains a good condition after the time flew. The design and construction are highly industrialized, architecture, interior, landscape synchronous design, the designer and fair-faced concrete, doors and windows, air conditioning, lighting and many other manufacturers to work together, interlocked, so that the red box likes a mechanical product, which is exquisite and delicate, integrating indoor and outdoor together. The determination of the red color of the concrete comes from multiple concrete block pouring tests. After the texture and color meet the design requirements, The ratio of raw materials is accurately controlled by computer during formal construction to ensure that the color is not biased. The designer and the manufacturer work together to guarantee the high precision of the building. During the process of scheme and construction drawing design cooperation, the construction drawings are reintegrated to make the fair-faced concrete, doors and windows, air conditioning, lamps and other manufacturers fits the high-precision standards required by the design, so that the form, space and lighting, equipment of the fair-faced concrete building fixes each other perfectly. The pursuit of durability is the original intention of design. In order to meet the structural details and functions required by the building, each manufacturer conducts structural research together with the design to ensure that the quality of the building is as good as the beginning after time passed by.
Collaborators
1lead




















