REEF
C&C DESIGN CO., LTD
Beihai, China
- Year
- 2023
- Category
- Commercial > Commercial Renovations and Additions
- Type
- Commercial
- Firm
- C&C DESIGN CO., LTD
- Location
- Beihai, China
- Award
- A+ 2024 · Finalist

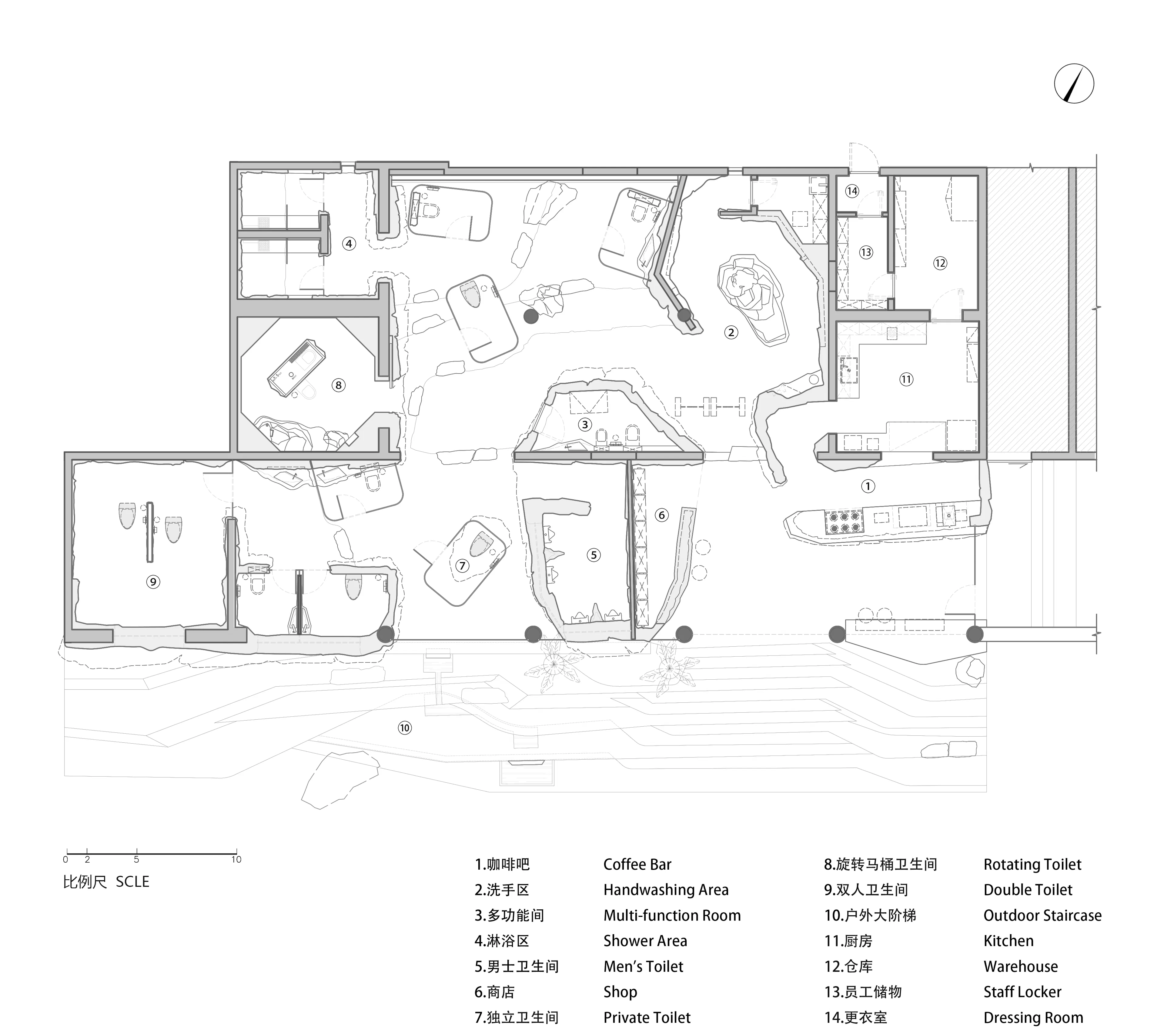
The project is located in Guantouling where in the west of Beihai City, making a bow-shaped direction from southwest to northeast, the steep rocks of the sea erosion platform are staggered and varied, and the surrounding attractions such as ‘Sea dry stone rotten’ are combined to form a systematic tourism resource in the whole area. The original site of the building is a service station supporting the scenic spot, without changing the overall structure of the original building, C&C DESIGN gives it a new image in the form of micro-intervention, which is upgraded and transformed into a complex service place including cafe, shopping, rinse shower, toilet, and outdoor sea-watching theater. The transformed building not only meets the functional needs, but also contains rich cultural and ecological narratives, freely immersed in the environment, and has a unique construction logic. Under the erosion of time, it tends to grow together with the local environment. Watching the sea, taking a nap, socializing, washing... The relationship between architecture and people is derived from the perception and experience of space. Structure and Space With mountains behind and the sea in front, the project locates above the reef. Starting from the existence of the natural environment around the site, the design presents the building as a low-profile place, and bridges the gap between the ‘existence form’ of nature and the ‘construction for’ of architecture by blurring the physical boundary between man-made structure and natural lands. Just as living things grow by the influence of natural laws, under the shade of wooden roofs, reddish-brown reefs ‘grow’ out of structures and spaces, then creating architectural forms. Face to the reefs and sea-eroded platforms unique to Beihai, the intention of design tends to perpetuate and amplify the experience rather than reinvent it. People's perception of the reef has a strong physicality, and here the structure itself is not only the ‘construction’ of the appearance, but also the inner ‘narrative’. The washroom function is disassembled as a single unit and scattered within the reef. The electric-fog-glass keeps the individual toilet cubicles transparent, the hard boundaries of the space are blurred, and the visual integrity of the reef's interior is preserved. In a cave-like atmosphere, artificial light sources subtly tell the subtle changes of time and light, forming a gentle counter-energy with the stone wall. Materials and Construction Considering the construction period of the project and the texture of the sea reef, ‘reef building’ becomes an appropriate intervention between artificial and natural, so that they can live together. The texture of the reef surface demonstrates the natural creative process. In order to maintain the original dialogue between the architectural texture and the natural environment, and to point to the most sincere perception of the space, under the grasp of the large form, the design deliberately reduces the desire for control, allowing the workers' handiwork to ‘go with the flow’. The process of ‘reef building’ is full of unknown uncertainties, guided by precise ambiguity and perceptual experience, gradually scrutinizing to construct the entire space. The interior of the reef is made of weather-resistant concrete combined with metal, and the wrinkled texture of the skin truly shows the rough and heavy texture of the reef. Under the action of wind and time, the surface color and texture will also change subtly, and with the passage of time, the boundary between artificial and natural here will become more and more blurred, and the building tends to be natural, humble and retreat. Boundaries and Perception Watching the sea, taking a nap, socializing, washing... The relationship between architecture and people is derived from the perception and experience of space. Climbing the stone walkway at the entrance, the coffee bar is also a platform for viewing the sea. The open foot-rinse area extends in the reef interface with staggered steps, and the visitor's activities are invisibly released from a single perception, and the order of the place combines functions to enrich the dimension of people's experience of the building. Today, the construction of scenic service facilities with a unified layout and a pattern is undoubtedly paradoxical, in a sense, it has lost its soul - those diverse, natural, temporal, and occasional souls. In a complete natural environment, the atmosphere of the building is inseparable from the spirit of the place. Visitors may not know much about architecture, but they can truly feel that they have a deep intuitive experience and emotional resonance with the nature of this time and place. Compared with modern buildings with sharp lines, "building reefs" above the reef is an abnormal construction, and if the abnormality is regarded as a "return to normal" - towards nature, it may be another kind of comfort for people's self-desire and soul.
Collaborators
1





































