Renovation of old Hui-style buildings in Longwu, Hangzhou
Outlooker Design
- Year
- 2022
- Category
- Commercial > Commercial Renovations and Additions
- Type
- Commercial
- Firm
- Outlooker Design
- Award
- A+ 2023 · Finalist

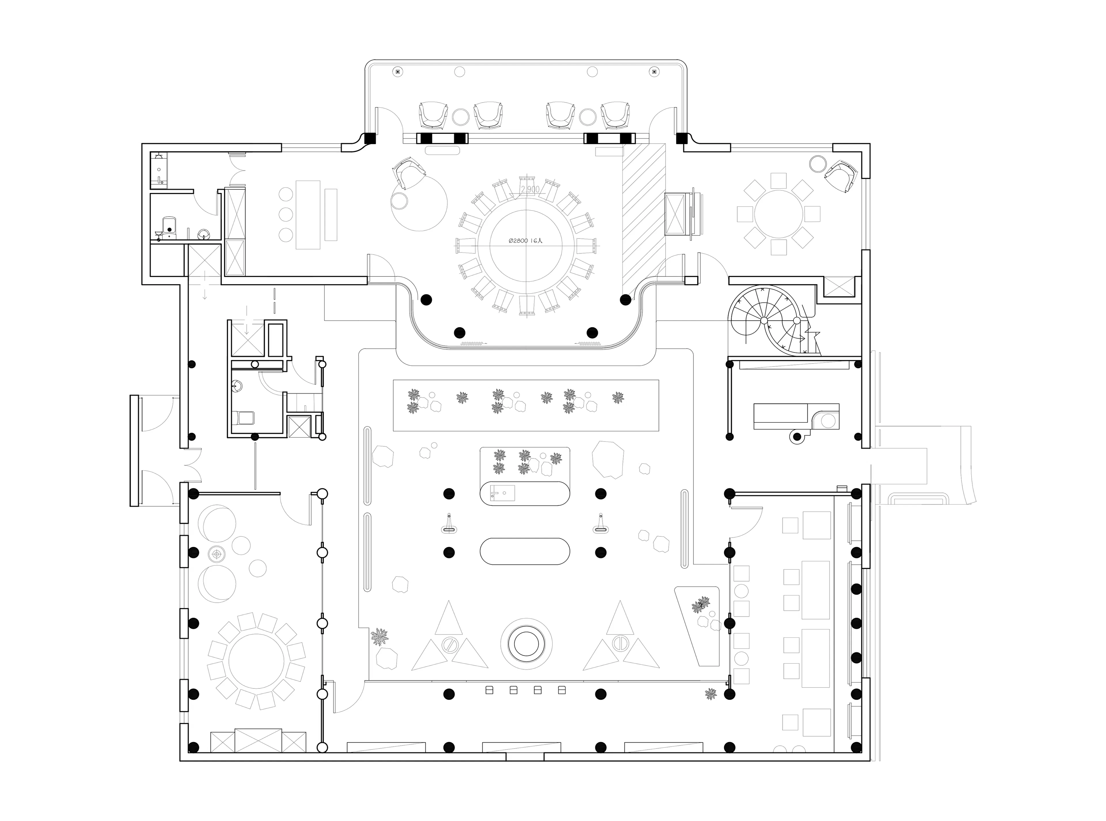
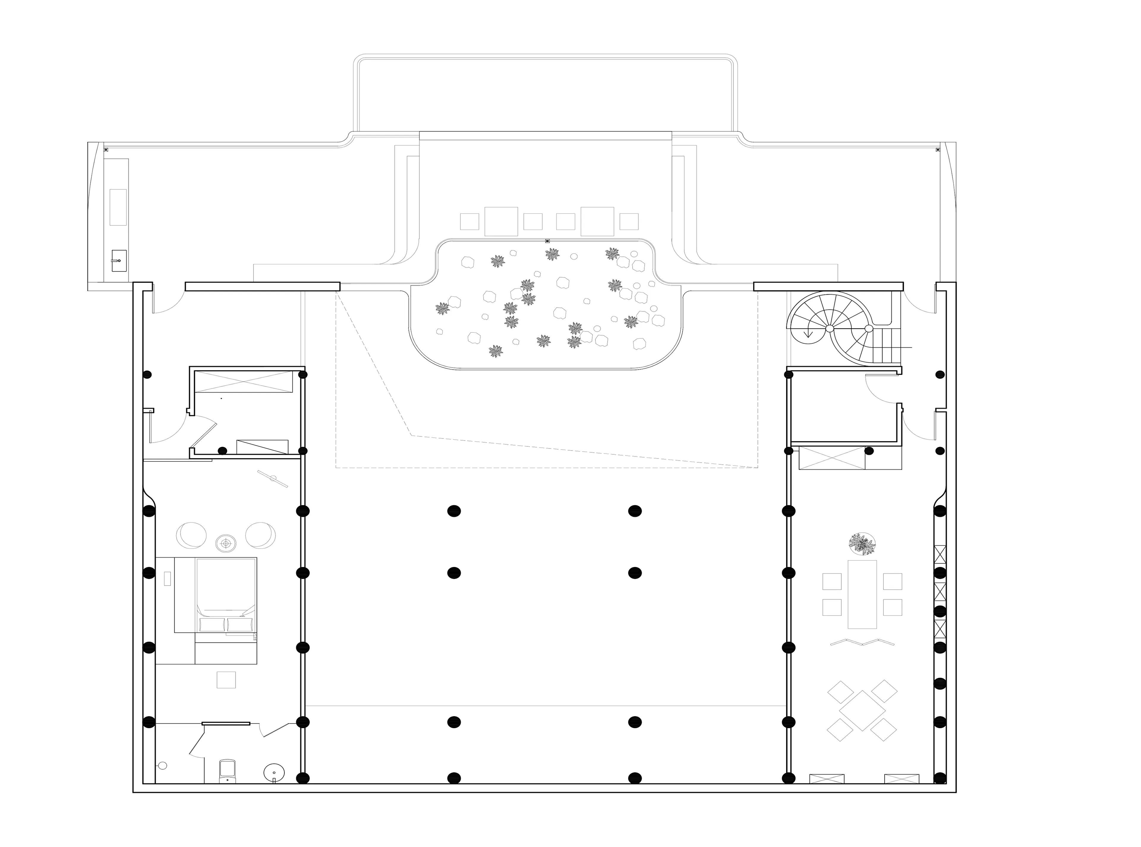
Outlooker Design | Treating the Renovation of Old Buildings with a Mentality of "Friendship Between the Generations" We found an abandoned Hui-style building in the forest of Longwu Mountain in Hangzhou. The unique “moon beams" and “corbel brackets" of the building are fascinating.The ancient house was built in the Qing Dynasty, and the owner of the house cannot be verified, but he must be a traveler from Huizhou who came to Hangzhou and built a building to express his homesickness. This project plans to transform the old building into a place for afternoon tea and dining. How to respect old buildings Contemporary China is in the stage of revitalizing its culture, which is a long way to go. We noticed that deep down people think that old Chinese architecture is "ugly", "backward" and even "horrible", and people like playgrounds more than contemporary gardens. The simple aesthetics of architecture was destroyed. We hope that the old Hui-style buildings can be respected,Inspired by "the art of the land", much of the renovation "grew" out of the ground, allowing the wooden structure of the old building to be preserved. We put a "mountain forest sculpture" in the courtyard. The raised shape of the sculpture is inspired by the “Lion Forest Garden”.The "waist-high" shape resembles a "mountain forest". When you walk amongst the mountains and forests, you are like a traveler far away from home. The difference is that the size of you and the mountain forest changes and you become a giant. Treating Old Buildings in a Way of "Friendship Between the Generations" The old buildings are like old people. Is it to buy a bunch of nutritional supplements for the senior and say something to greet him or become friends with him and share with him the interesting things you see? We choose the latter. The Loop Chair is placed at the front of the entrance. the independently designed chandelier hangs under the eaves, which has a retro-futuristic style.For the design of plants, we deliberately avoided any kind of "traditional ideology". We used "wild" plants, which grow with enthusiasm, to create a wonderful atmosphere. the beanbag is completely separated from the tradition. The young man sits on a beanbag, drinking coffee and listening to the birds chirping. The old wooden texture of the building is fully displayed before the young man. We intend to awaken young people's awareness of the texture of old buildings and to make more and more young people like traditional objects.
Collaborators
1lead




















