Residental apartment "Cedar2" Social Identity,Intergenerational Life
Sizan Architectural and City Reading Studio
Yazd, Iran
- Year
- 2023
- Category
- Residential > Multi Unit Housing - Low Rise (1 - 4 Floors)
- Type
- Residential
- Firm
- Sizan Architectural and City Reading Studio
- Location
- Yazd, Iran
- Award
- A+ 2024 · Special Mention

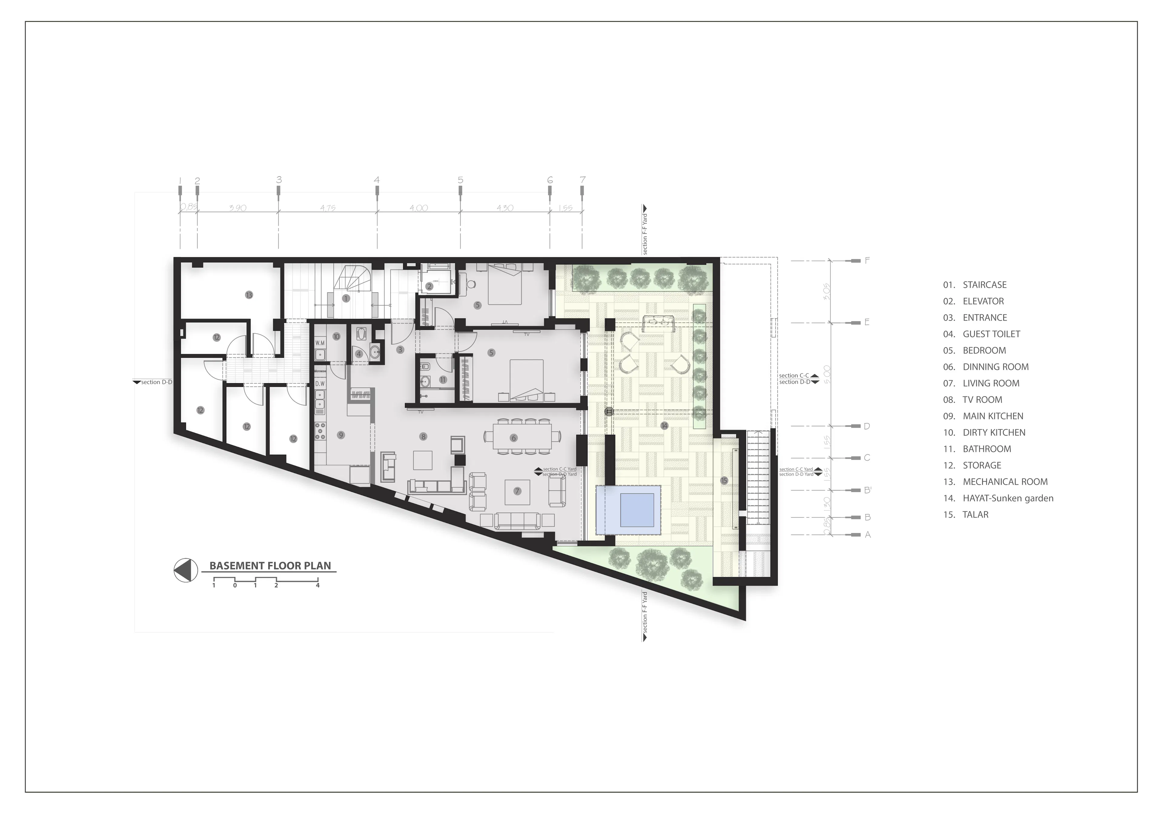
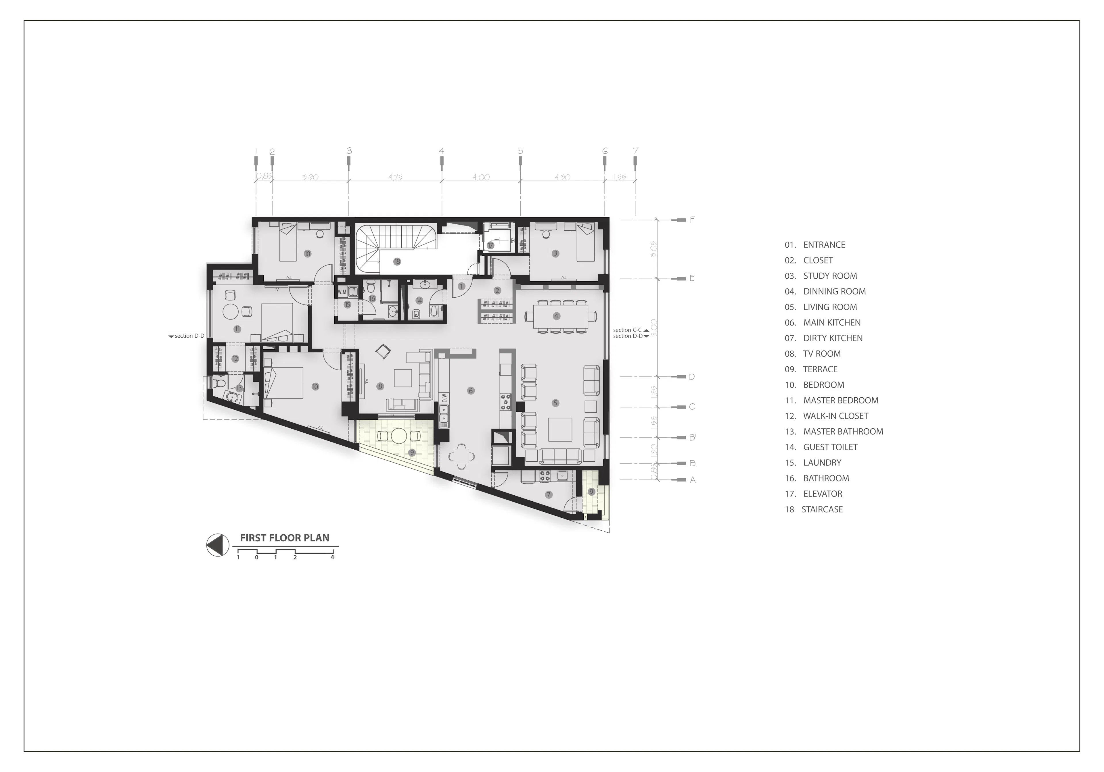
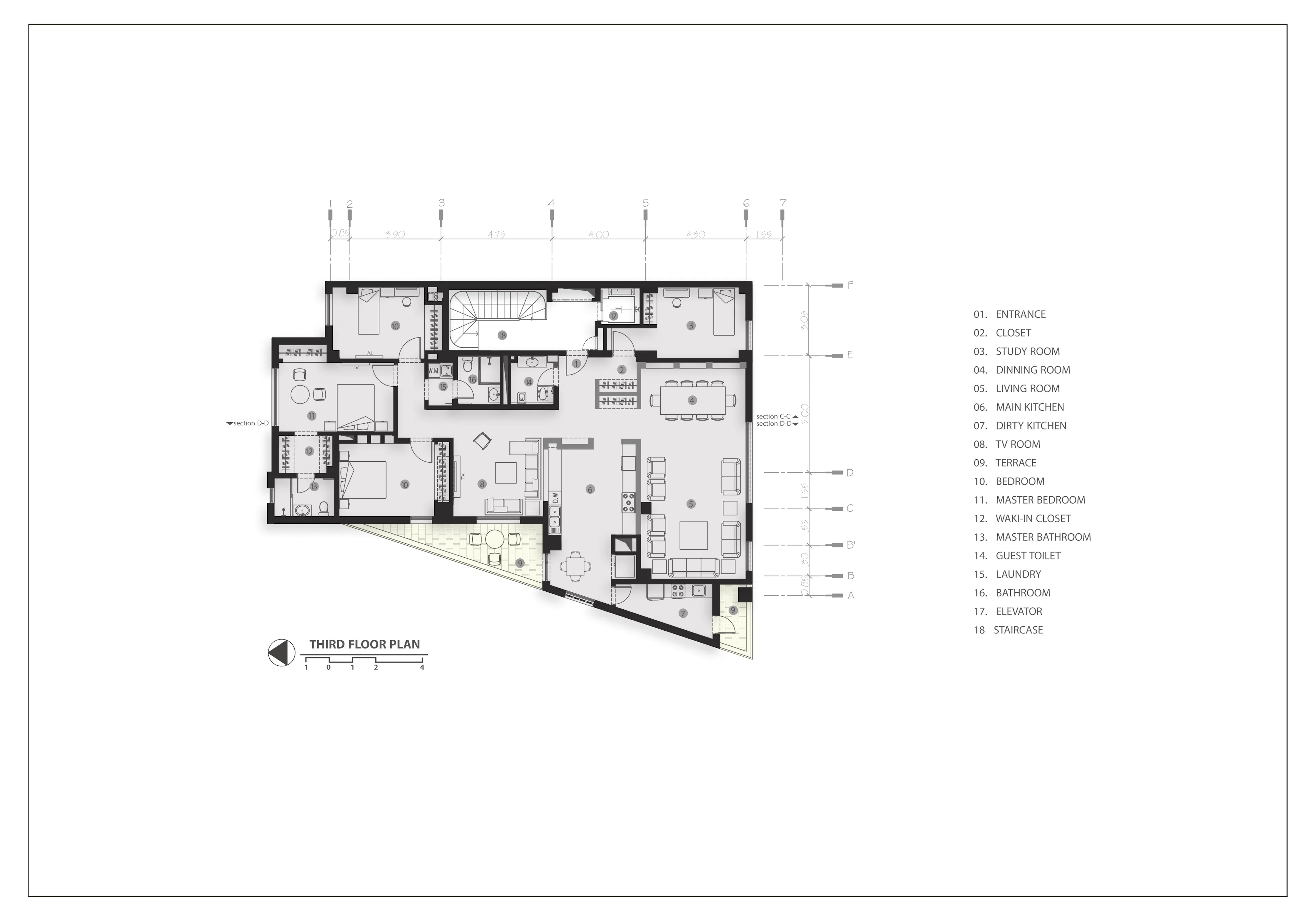
"Social Identity,Intergenerational Life" Nowadays, architectural solutions find their real meaning with providing solutions for social problems. This is the distinction that makes architectural projects unique in creating lasting difference for the lives of different generations. The existence of social space leads to higher social activity and intergenerational communication. However, the current living conditions of today’s apartments does not create a shared action space, turning each unit into a space completely independent from other cells. The real motivation behind the new construction process in the current architectural state in Iran, is for families to help provide independent living spaces for their children in multi-story buildings. This is achieved by the utility of the capital earned from selling the land each family owns by tradition. Gradually, the conventional community living spaces give their place to smaller units, each containing a single family, separated and isolated from the natural and daily support of the traditional community. The design and construction of the Cedar 2 project with the approach of intergenerational life is in response to this social paradox. Taking from the examples of community living in the past, this project tries to provide spaces for social activity to facilitate a higher degree of communication between different families of the residential complex and bring the benefits and the supports of the community that is lost in today’s apartment living. The project’s ground is exposed to sunlight from north, south and west. The main extension of the land by supplying light from the west and parallel to the view axis to Zoroastrian crypt called Dakhmeh in Persian (silent towers) as a sign in the design site, made it possible to design the main space of the house in this axis with the desired view. In fact, the design of this project started from the placement of the main terrace with a view to the Zoroastrian crypt and the family living space, and the rest of the main spaces started to be arranged next to this axis. These indoor and outdoor collective spaces, including the living room and the main terrace of the family, were placed in the heart of the building. This terrace, with a suitable retreat, also provides the possibility of side lighting for one of the bedrooms and the kitchen. The kitchen space is located on the border between the private and public space of the house with an open view to the living space and a closed view to the reception space between these two spaces. This placement with short walls on three sides, looks like a cube in the interior architecture. In the main kitchen, by creating a brick grid and filtering the west light, a good view of Shahid Jahanara street is provided. This will also block the view of passer-byes to the kitchen as well as supplying suitable and natural ventilation for the kitchen. 3 bedrooms are located in the private part of the house on the north front and near the living room and the fourth room is called the study room in connection with the main entrance and reception area. Functional spaces such as the size of the kitchen and the size of the guest closet in the main entrance, which is characterized by short walls, try to break the boundaries in interior architecture and are connected to each other with a unified roof. Niches and the shelves in the interior architecture, which is also reminiscent of the historical house of Yazd, try to break the space between the wall and the ceiling. In general, it is an attempt to challenge the meaning of inside and outside in interior architecture. This building, like other architectural and urban planning permits of Yazd Municipality, has a three-story permit on a pilot, which is a common pattern in the conversation of introducing buildings from this city!!! The building is located on the ground floor with the use of management room, lobby and car parking space and three residential floors on it, but what makes this building a strong link with historical architecture fields in Yazd are the events that happen in the connection Yard and basement unit. In the apartment units in Yazd, the yard has lost its true meaning for the presence of residents and the chatter of children, these yards sometimes endanger the safe space for children playing with passing of residents' cars. By creating a garden pit in this yard, which is one of the main models in the historical context of Yazd, in addition to providing significant lighting for the basement unit, or rather a unit in the garden pit, a safe space for families and children to play is created. In the upper yard by passing a metal ramp and with an exposed structure, cars go into the parking lot without interfering with the safe space of the garden pit. In addition, with the yard of the pit unit the garden creates the possibility of a completely different spatial experience from the upper floors for its residents, and this is the beginning of an intergenerational life in an apartment. In the residential unit located in “Godal Baghcheh”, the interior and exterior of the unit are two layers of a single concept, which in the process of developing the design, it is not possible to complete one without the other. The space of the garden pit is one with the presence of water. It is a green space with plants suitable for this climate and the addition of a place like the halls of historical houses facing the north with fixed furniture. It contains the presence of a swing in this space which reminds the childhood of every resident, and its charm doubles the presence of children in this space. Given this vibrant space, it will become an environment for holding parties and small gatherings away from the view of the nosy neighbors. Our view is that the creation of a garden pit and according to modern contemporary architecture, “Zaminpanah” buildings, has always been one of the main models in Yazd region and it can be considered as a solution in today's urban planning. The volumes of three residential floors designated by firebrick materials are separated by the passage of a white stone wall in the outer body of the ground floor. The extension of this white wall to the garden pit yard represents the fountain, the main axis of the garden pit unit space and its hall space. Between the crossing of the white wall and the brick wall of the courtyard, a metal wall connects the urban space and the interior of the building to each other. In the end, it is necessary to mentions that this building has held the steps of voices of many workers, craftsmen, engineers and executives in its walls. their steps and words have calmed down in the heart of the building. We have preserved a raw wall in this project as a memorial and appreciation of the efforts of the 60 people who made this project possible. We are appreciative that because of this highly cordial back and forth between all the team members during the design and construction process the plans have been revised 296 times in three years, causing a highly satisfactory result for all the various groups involved in this project.
Collaborators
1














































