Salma Tower
aflalo/gasperini arquitetos
São Paulo, Brazil
- Year
- 2024
- Category
- Commercial > Office - High Rise (16+ Floors)
- Type
- Commercial
- Firm
- aflalo/gasperini arquitetos
- Location
- São Paulo, Brazil
- Award
- A+ 2025 · Popular Choice

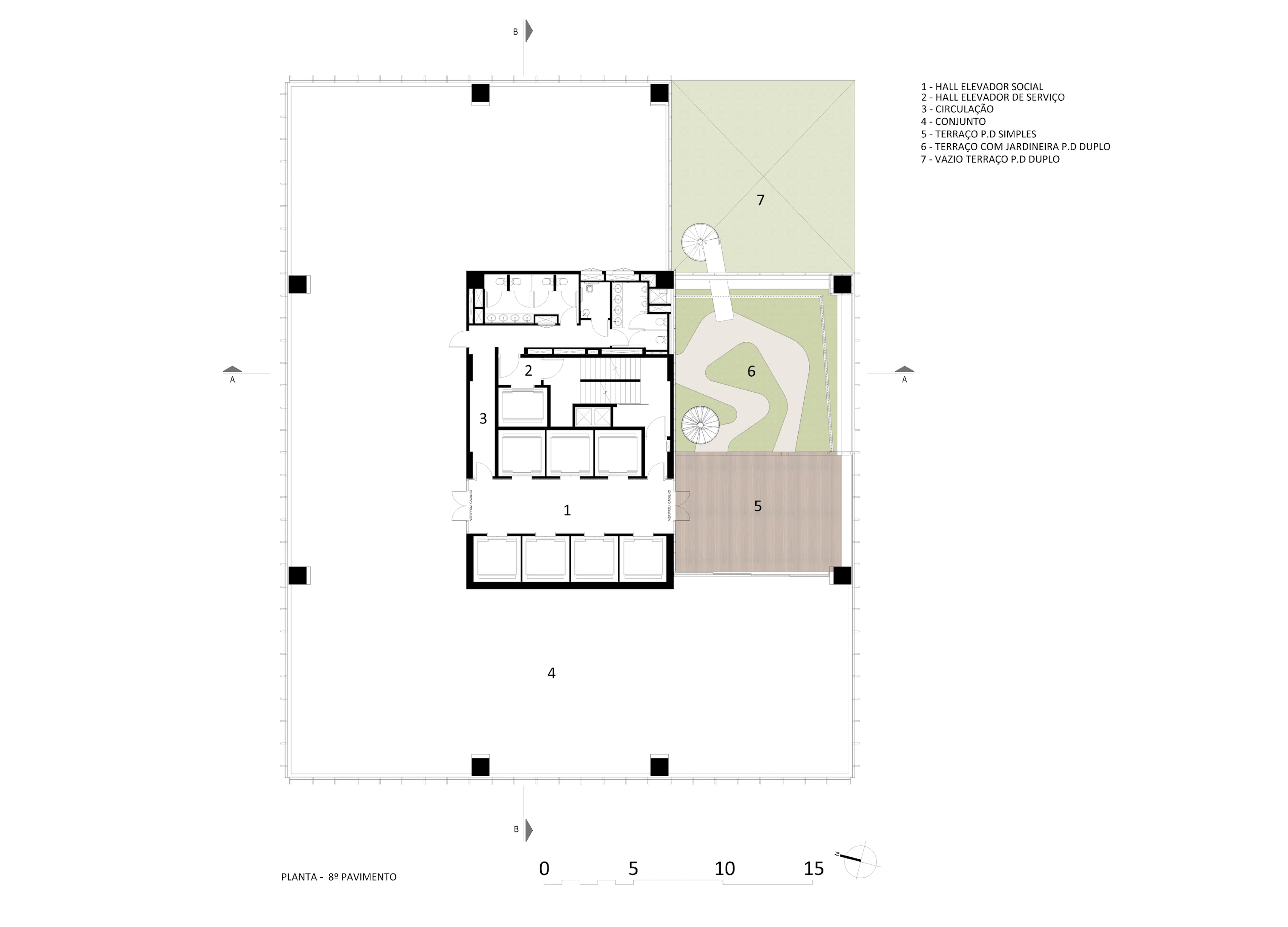
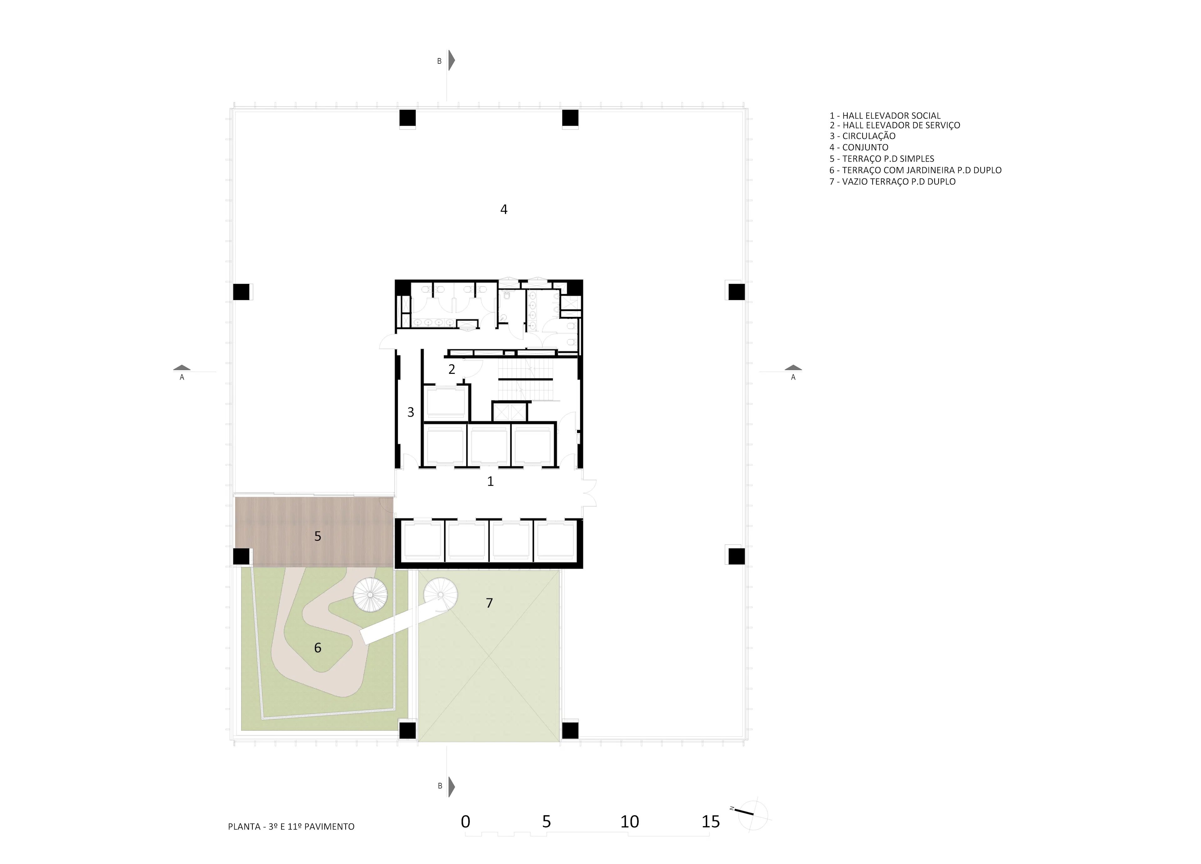
Right on Av. Faria Lima, a new development provides an experience of direct contact with nature; signed by aflalo/gasperini arquitetos, the tower emerges as a bioarchitecture landmark for urban corporate buildings. Nestled on a site that spans half a city block and accessible from three distinct streets - Rua Professor Atílio Inocenti, Av. Horácio Lafer, and Av. Faria Lima - this project emerges as a symbol of a groundbreaking concept for corporate ventures. The ground floor of the building was conceived as an open space, without walls or railings, with active façades with shops and restaurants, thus promoting interaction and connection with the urban environment. With 16 floors and 1200m² of area per floor, the single tower features 4.68m from floor to floor, providing a large and ventilated spaces for its users. One of the most distinctive features of this project is the presence of 110m² woods with double height ceilings on all floors. These spaces were conceived in a spiral arrangement around the central core of the building, which houses the elevators and stairs. With a total area of 1760m² of vertical forest, this innovative approach provides invigorating environments in the middle of Av. Faria Lima, as the woods acts as a thermal insulator, acoustic barrier and generates a pleasant microclimate to the tower’s internal spaces, providing a new experience in the way of working. To enable such a guideline in the architectural project, the development benefits from the Terraces Law, allocating 5% of the land’s area to hanging gardens. These spaces were designed with the aim of promoting the well-being and quality of life of its occupants, even offering the opportunity to walk barefoot in the middle of a dense forest, giving continuity to the existing thicket in the lots surrounding the plot. From the balance between the constructed space and nature, comes a harmony that provides people's well-being. Since the beginning of the project, Grupo G4M, investor and owner of the project, has shared the vision of adopting solutions based on bioarchitecture, thus demonstrating a mutual commitment to the promotion of sustainable and healthy environments. The landscaping design, the result of a collaboration between Soma Arquitetos and Cardim Arquitetura, was developed in a careful, meticulous way. During the design process, the client actively participated, proposing the realization of a mockup of the forest on a 1:1 scale, thus enabling a sensory test of the dimensions and scale of the natural environment present on all of the building’s floors. This collaborative and user-oriented approach has contributed significantly to the success and excellence of the project as a whole. It stands as a beacon of innovation and a commitment to sustainability, with a central focus on integrating the built environment with nature. Among its notable sustainable technologies are the insulated glass façade, which enhances internal temperature control and promotes energy efficiency, and a comprehensive water treatment and reuse system for irrigation, garden faucets, toilets, and cooling towers, achieving a remarkable 60% reduction in water consumption. The project is currently under review by the Green Building Council (GBC) and possesses metrics that could qualify it for LEED Platinum certification. Attaining this sustainability seal will serve as a testament to the efficiency and bioarchitecture principles pursued throughout the creative process.
Collaborators
1




























