School of Art & Design at New York State College of Ceramics
ikon.5 architects
Alfred, United States
- Year
- 2011
- Category
- Cultural > Art Galleries
- Type
- Cultural
- Firm
- ikon.5 architects
- Location
- Alfred, United States
- Award
- A+ 2014 · Jury Winner

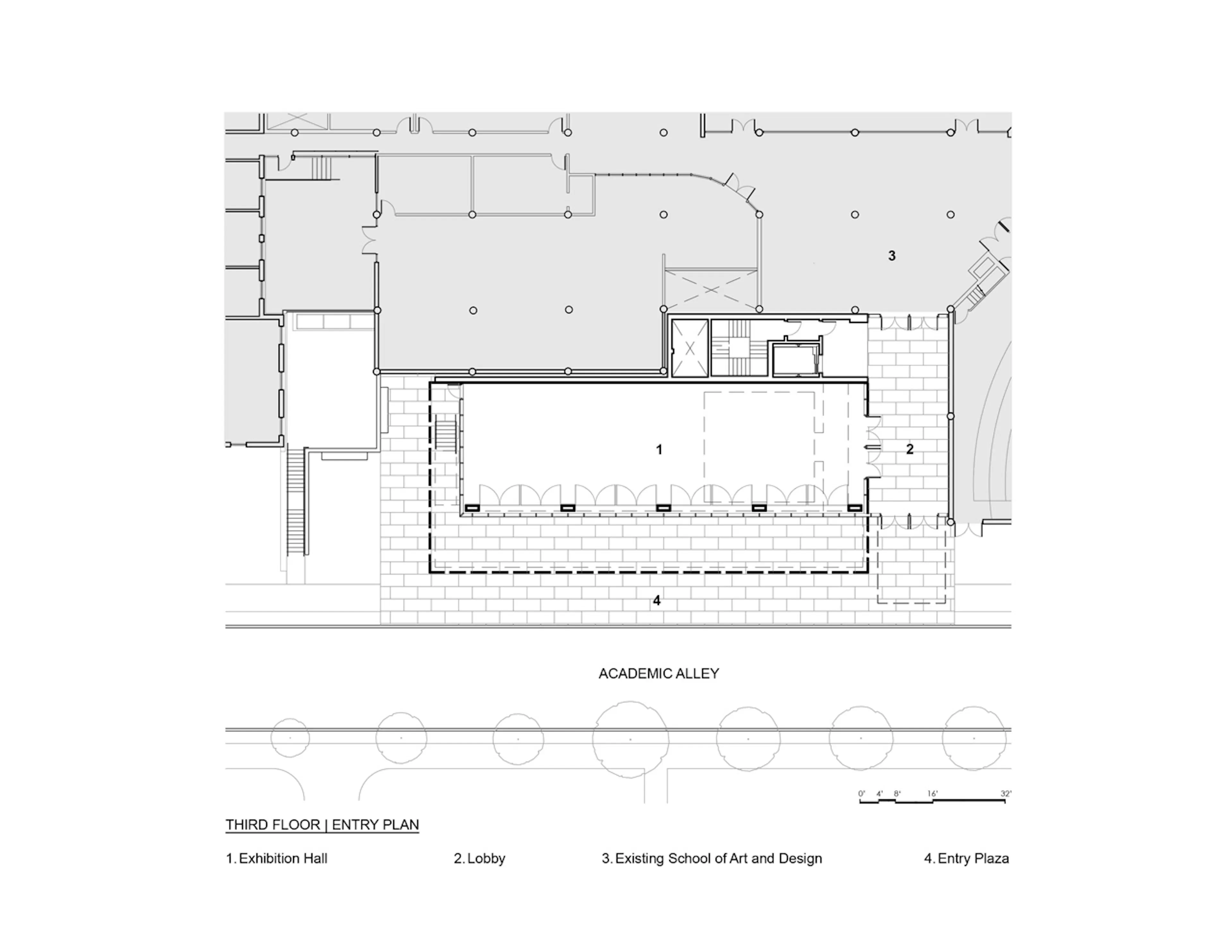
- Lobby - Exhibition gallery - Video/Audio Immersive gallery - Expanded Media Studios - Art History classrooms - Ceramic Studios - 19,000 SF Addition The McGee Art Pavilion is an expansion to the School of Art and Design at the New York State College of Ceramics in Alfred, New York. The Pavilion is designed as a large ceramic vessel for holding art and light. It is set on a plaza between two existing campus buildings on Academic Alley - the main pedestrian thoroughfare on the campus. Its ceramic facade, made of un-glazed terra cotta tubes, is a solar and rain screen. The unglazed terra cotta tubes that make up the screen are expressive of ceramic vessels and art objects being created inside the School of Art and Design. Their un-glazed ruddy white pigment is similar to the rudimentary nature of student art work before final finishing. The staggered pattern of the facade is inspired by racks and racks of unfinished ceramic objects that line the art studios. Cantilevering over a glass wall, the pavilion dramatically engages campus on-lookers as a piece of ceramic art itself and allows them to see inside the exhibition gallery, thereby putting student work on public display. The exhibition space is flexible and large to display contemporary art pieces. A mezzanine gallery overlooks the two story exhibition hall to give a bird’s eye perspective to three dimensional work. The mezzanine also connects to the immersive gallery - a black box space for the total immersive display of video and audio art forms. Below the exhibition hall are art studios, expanded media studios, art history classrooms and support spaces. The McGee Pavilion is designed to achieve a USGBC LEED Silver certification through control of day lighting in the galleries, TPO roofing, low consumption water fixtures and high efficiency heating ventilation and air conditioning systems - including radiant heating in the exposed concrete floors of the studios and exhibition space. HISTORY and CONTEXT: During the nineteenth century, Alfred New York was a major design and manufacturing region for architectural terra cotta, ceramic and glass. Many industrial age terra cotta products used on buildings in New York and throughout the country were manufactured here. Specifically, the Celadon Terra Cotta Company and later the Ludowici-Celedon Company had their manufacturing facilities located in Alfred, New York. Most of these vast manufacturing facilities are gone; however, the Terra Cotta Building, a historic 1892 sales office sits on the grounds adjacent to the existing School of Art and Design. This historic building was built as a three dimensional catalog to display the works of the Celadon Terra Cotta Company and today serves as a reminder of the ceramic and glass heritage of the region. The New York State College of Ceramics is a leading world institution dedicated to the advancement of ceramics and glass technology. The School of Engineering focuses on developments of ceramics for computer and scientific applications. The School of Art and Design focuses on the artistic advancement of ceramic, glass and expanded media. The McGee Pavilion addition, with its ceramic facade, is a contemporary interpretation of this regions unique heritage. Images © Brad Feinknopf Links: - https://vimeo.com/95850624
Collaborators
3collaborator

















