Shangfeng Public Library and School Gymnasium
David Hong Architects
- Year
- 2022
- Category
- Institutional > Libraries
- Type
- Educational
- Firm
- David Hong Architects
- Award
- A+ 2023 · Finalist

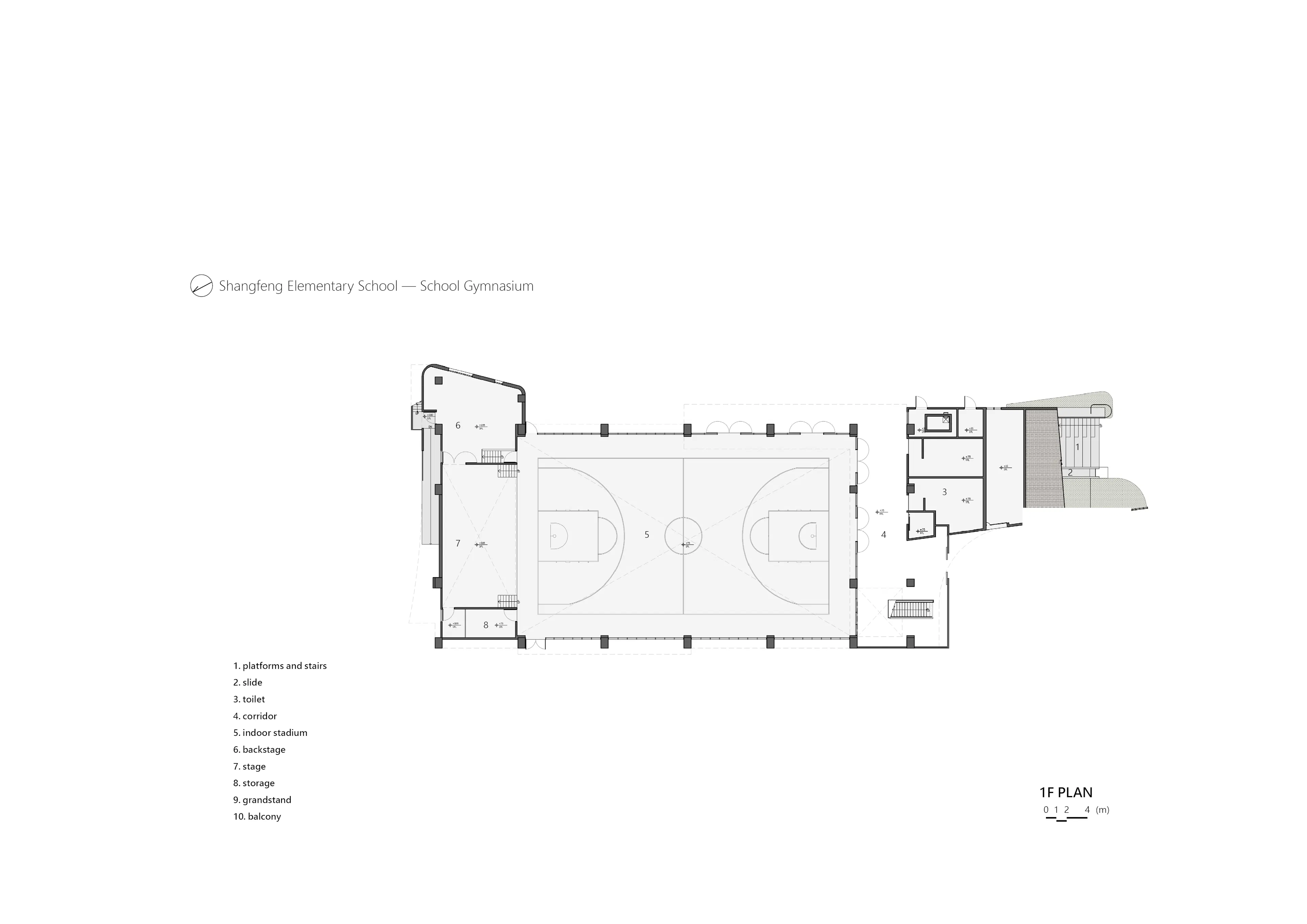
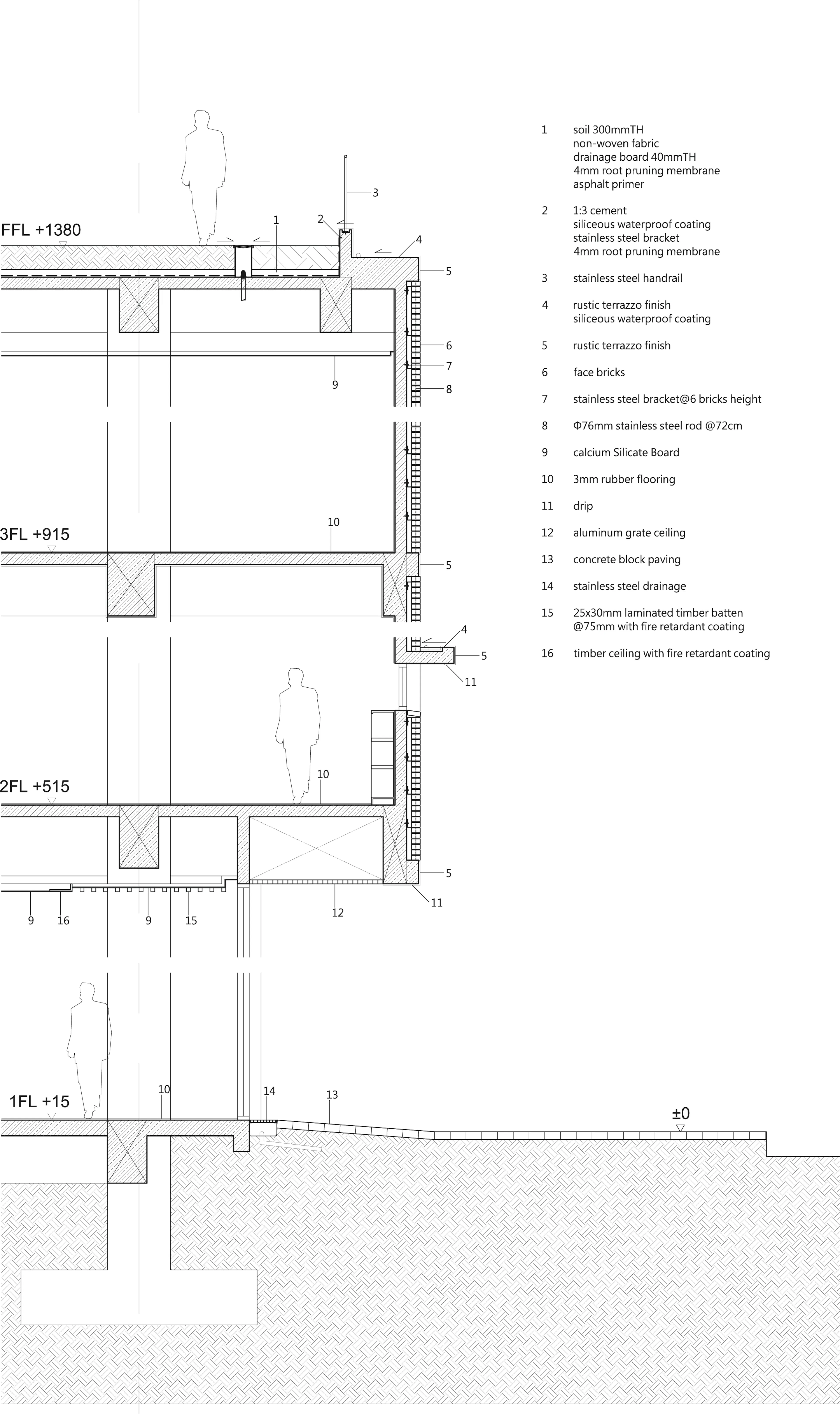
Shangfeng Public Library and School Gymnasium The project locates at fringe of Taichung City. Like most rural areas in Taiwan, it is densely populated with low rise residential buildings and farmland, however very little areas reserve for public amenity. It has called for a library and for the community and a school gymnasium, right next to an existing primary school. The challenge of this project is more than just simply placing these two buildings and programs in a very difficult site, but to create a sense of place through expanding layers of activities, natural conditions, tectonic details and ambiances. Because the site is very long and narrow, buildings have to be distributed at two end of the boundary. These two buildings shall face each other and create a communal square in the middle. The square becomes the new focus as well as the new side entry for school which knitted the community and school even closer. Outdoor terraces, roof gardens and ramp projecting out from these two buildings, trying to extend the periphery of the communal square. The site and the school are separated by an abandoned irrigation channel which filled with native aquatic plants and habitats and now used as an observation quarter for science lesson in school. Rather than treating the irrigation channel as site constraint, it has become the stimulus for the form of the library as well as the landscape surrounding it. Now the channel is expanded as a pond and surrounded three sides of the library. It serves as the fence for the school without disrupts visual continuation of the landscape. Because the site is long in north south direction, buildings are largely exposed toward afternoon western sun that is detrimental to books in the library. Therefore walls at west are tilted at an angle to allow slits to be opened and have windows facing north to enjoy ample indirect sunlight. To combat the heat gained from harsh western sun, buildings benefit from double wall construction, as air cavity behind brick wall act as a layer of heat insulation. The light coming from these windows turns pinkish in color as it bounce off the red brick wall during late afternoon and offer a surreal sense of changing time. The idea of the library is to be a neutral container of books as well as the space and its surroundings. Surfaces of different materials inside all painted in white, to heighten the abundance of natural sunlight, its warmth and colors at different time. Textures of these materials surfaces cast subtle shadows and offer different shades of whiteness to enrich the sense of space. Once entered the library, people will be greeted with sumptuous view of outdoor landscape at the foyer thanks to large windows facing north at one side. On the other side is an airy central atrium that acts as a pivot to all spaces in the library. The ribbon like stair in the atrium meander three floors of the library, directing or hinting spaces beyond. The ground floor is served as community living room and children’s quarter. Large windows are placed right next to now enlarged naturally sculpted aqueduct. Morning lights dancing through swaying willow trees, as sound of water flow through the landscape can be heard by the readers. The second floor is for general reading. All open-book shelves are kept below 110cm to ensure unobstructed view of the entire length of the space. Even with its openness, different pockets of reading areas are defined by their immediate surroundings, ranging from relaxing sofa next to outdoor terrace garden to quiet study corners. Third floor contain a multi-purpose classroom and young adult section, which are the nosiest programs. Therefore they placed on the top, away from quiet reading below. The roof of young adult section lifts up to allow indirect soft southern sunlight to fill the space. As one think the spatial sequence of the library is about to end, people will suddenly discover a large outdoor roof garden awaits as they turn their head. The roof garden is inclined so people will only able to get a glimpse of landscape up and beyond, therefore encourage readers to step outside and to discover further as we should in the sea of knowledge.
Collaborators
1

























