Shanghai Blue Bay Kindergarten
EAST CHINA ARCHITECTURAL DESIGN & RESEARCH INSTITUTE CO., LTD | STUDIO DINGSHUN
Tian Tao Lu, China
- Year
- 2022
- Category
- Institutional > Kindergartens
- Type
- Educational
- Firm
- EAST CHINA ARCHITECTURAL DESIGN & RESEARCH INSTITUTE CO., LTD | STUDIO DINGSHUN
- Location
- Tian Tao Lu, China
- Award
- A+ 2024 · Finalist

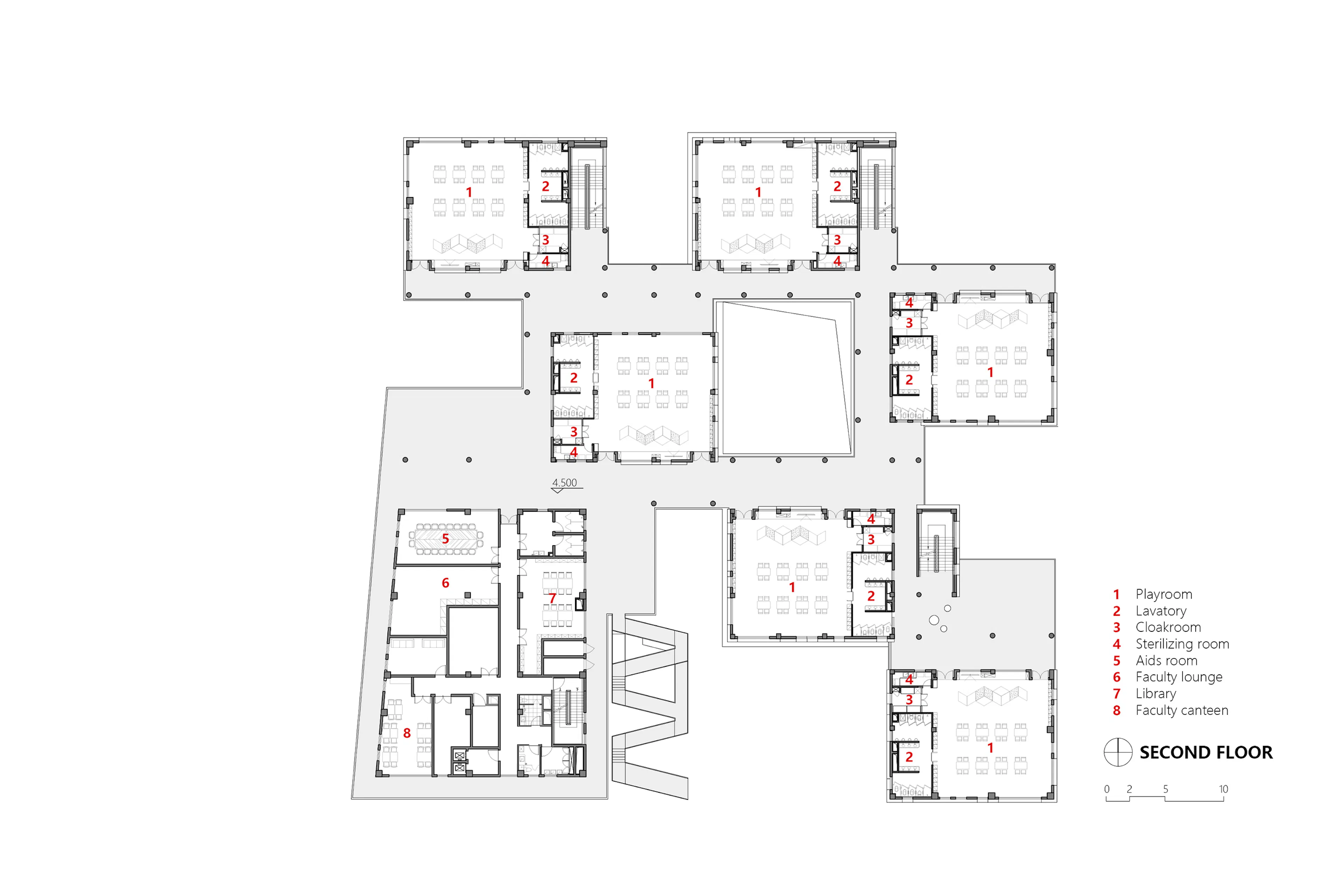
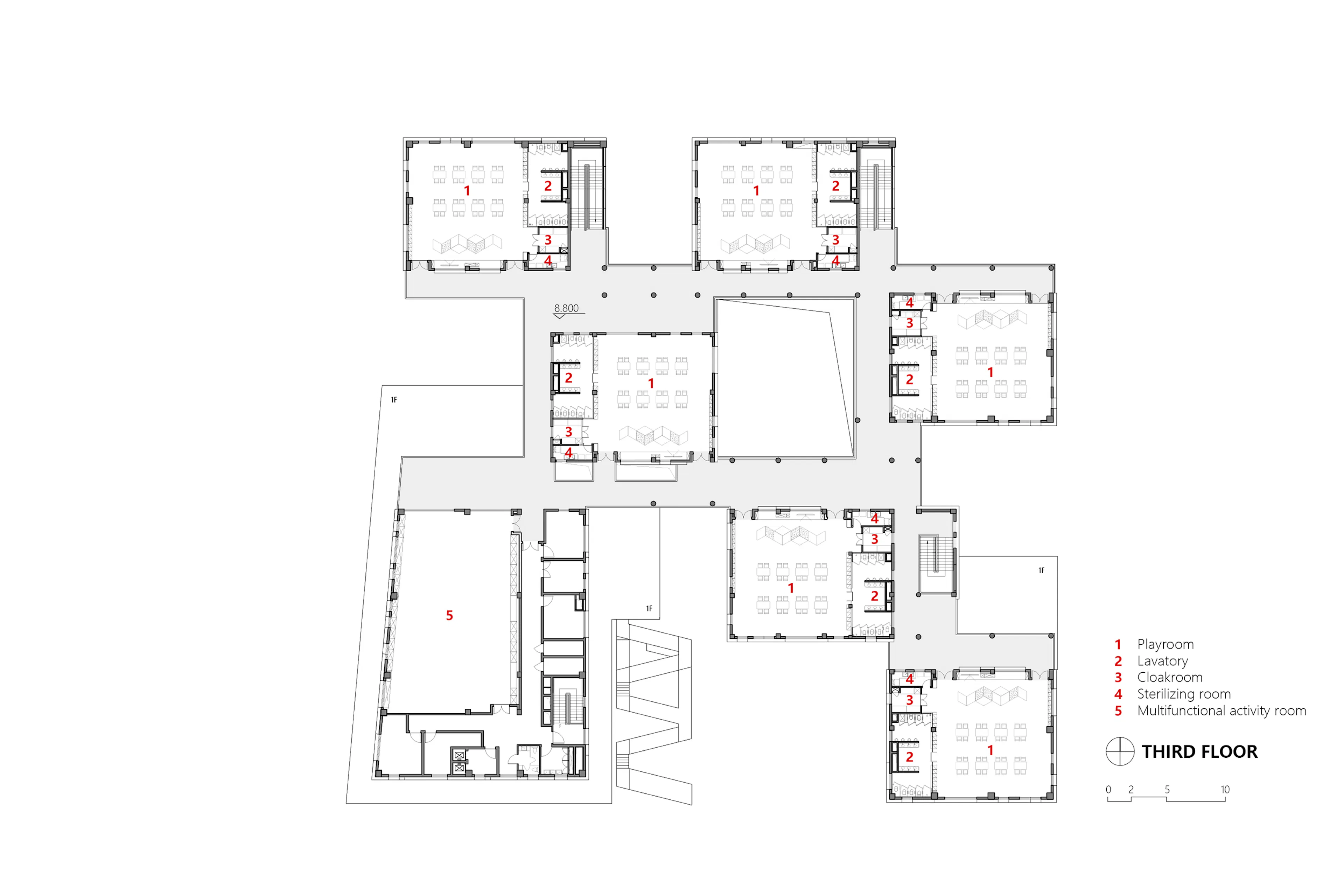
The Shanghai Blue Bay Kindergarten is located in the suburbs of Fengxian District, with a total area of 8,735.58 square meters, including 6,488.48 square meters of above-ground usable area. It features 15 class units, 6 specialized activity rooms, a 220-square-meter multifunctional hall, office and living facilities. In order to meet the local sunlight and area regulations, to prevent shadow casted by the surrounding high-rise residential towers in a relatively small site, our design adopts a staggered layout with rich layer and changing order, to minimize the oppressive feeling generated by the massive three-story volume. Therefore, children’s perception of scale will be sensitively preserved, curiosity will be gently inspired by the sunlight and greenery that are incorporated into the design. The design is inspired by an image of "Cloud House above Forest", aiming to provide children with more opportunities to interact with nature, to have more communication between each other, and to explore the world that is full of possibilities. Forest was represented in the interweaving of courtyards, symbolizing the harmony between children and nature. The ground level revolves around six themed courtyards, each with its unique characteristics, allowing for natural, silent, social, and lively experiences. The first-floor activity room, which can be fully opened towards gardens, blurs the boundary between interior and exterior, forming a continuous and changing space. Cloud was referred in the maze-like gaming area, with the circular platform serving as the center of the kindergarten and the ideal spot for endless running. The scattered white playrooms are neat, warm, and bright, creating a charming atmosphere. This unique design creates a paradise for children to dream freely and experience an extraordinary childhood.






























