SWITCH - New Simon Headquarters
b720 Fermín Vázquez Arquitectos
Barcelona, Spain
- Year
- 2023
- Category
- Concepts > Architecture +Adaptive Reuse
- Type
- Commercial
- Firm
- b720 Fermín Vázquez Arquitectos
- Location
- Barcelona, Spain
- Award
- A+ 2025 · Special Mention

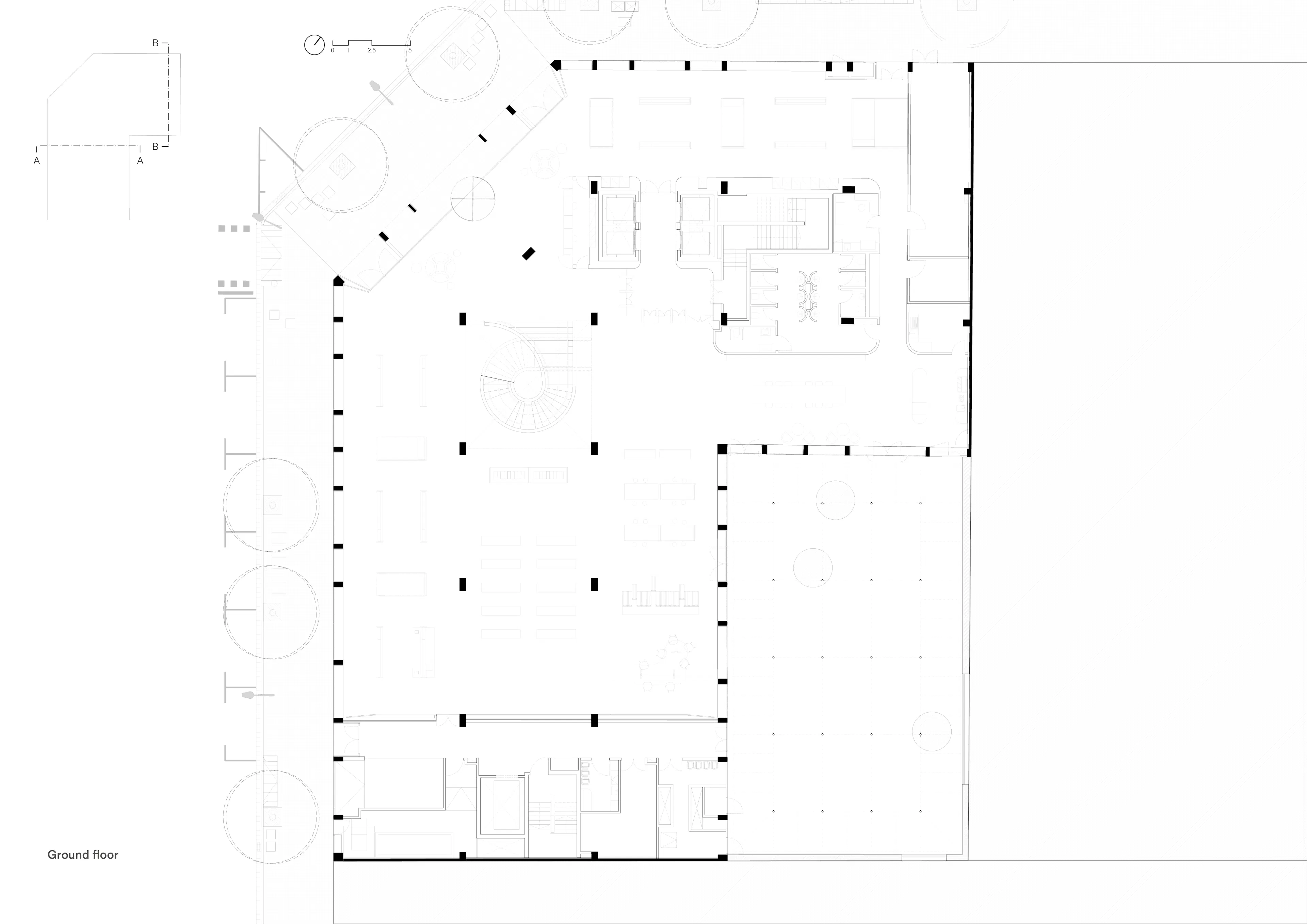
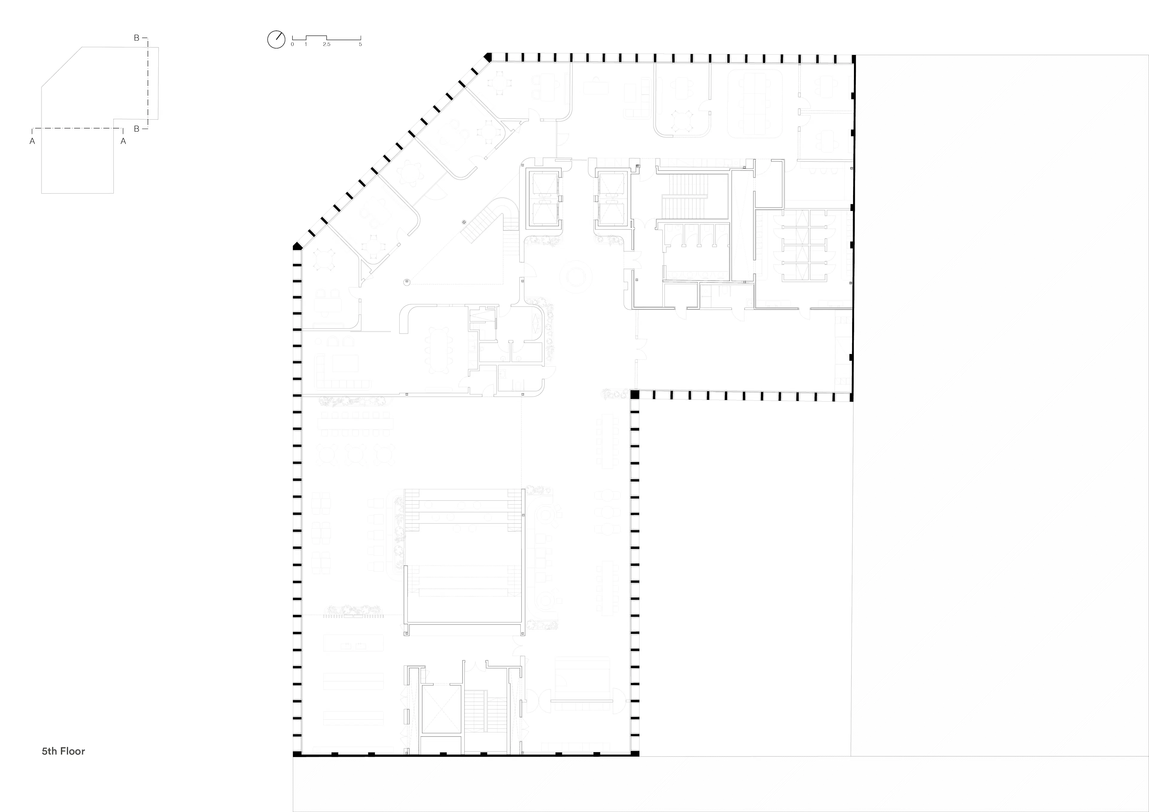
The transformation of the old Simon factory into the new Simon Corporate Headquarters consolidates 350 employees from two Barcelona offices under one roof. The project respects the building’s original 20th-century industrial character while introducing modern elements to meet new functional and technological needs. The new headquarters are named SWITCH (Simon Worldwide Innovation Talent Community Hub), an acronym that reflects both the company’s focus on innovation and one of its signature products, the electrical switch. Structure & Facade: The existing concrete structure—featuring porticoes, ribs, and slabs—was carefully restored with targeted interventions to address use- and age-related damage. Some sections were selectively demolished to create new communication cores and workspaces. Rather than hiding the repairs and the stains of the past, they remain visible, adding layers to the building’s history. The façade was refurbished by removing outdated masonry and inserting modular "technological cassettes" that enhance insulation, solar control, and comfort, while giving the building an updated image that fits to its new use. Hidden frames and reflective glass emphasize the building’s sleek appearance, creating a dialogue between the new elements and the old concrete grid. Urban Regeneration: Located in the heart of the 22@ technological district, the project reconnects the area’s industrial heritage with its current development. Once a closed industrial space, the building is now an open hub, with public areas on the ground floors and workspaces above. The large windows allow interaction with the surrounding city, and the building’s design supports public events like "Llum BCN," further integrating it into the urban landscape. Quality of Life & Efficiency: SWITCH provides high-quality, flexible workspaces by making the most of the building’s open and bright interior. New vertical cores and pathways enhance circulation, while the green terraces offer recreational space and support renewable energy collection. Digital tools optimize the use of workstations, meeting rooms, and shared spaces, fostering collaboration and efficiency. Sustainability: The rehabilitation extends the life of the original concrete structure, reducing its carbon footprint and environmental impact. The updated design balances modern energy efficiency with respect for the building’s history, combining repaired concrete elements with innovative ones for optimal insulation, solar protection, and natural light. Having obtained the LEED Platinum certification, SWITCH serves as a model for sustainable renovations and future industrial conversions. Client: Simon b720 Team: Fermín Vázquez, Peco Mulet, Eduardo Varas, Pablo Garrido, Maialen Andiarena, Cristina Sánchez Collaborators: Katty Schiebeck Studio (interior design), Estudi Antoni Arola and Estudi Jordi Tamayo (interior design of the showroom and patio), MMAS Lighting (lighting design), BIS Structures (structural study), JG Ingenieros (MEP study), Local 4 (landscape design), Dalmau + Morros (budget), Coderch Acústica (acoustic study) Photography: José Hevia
Collaborators
1









































