Skokie Valley Synagogue
Studio ST Architects
Skokie, United States
- Year
- 2022
- Category
- Concepts > Architecture +Renovation
- Type
- Cultural
- Firm
- Studio ST Architects
- Location
- Skokie, United States
- Award
- A+ 2023 · Special Mention

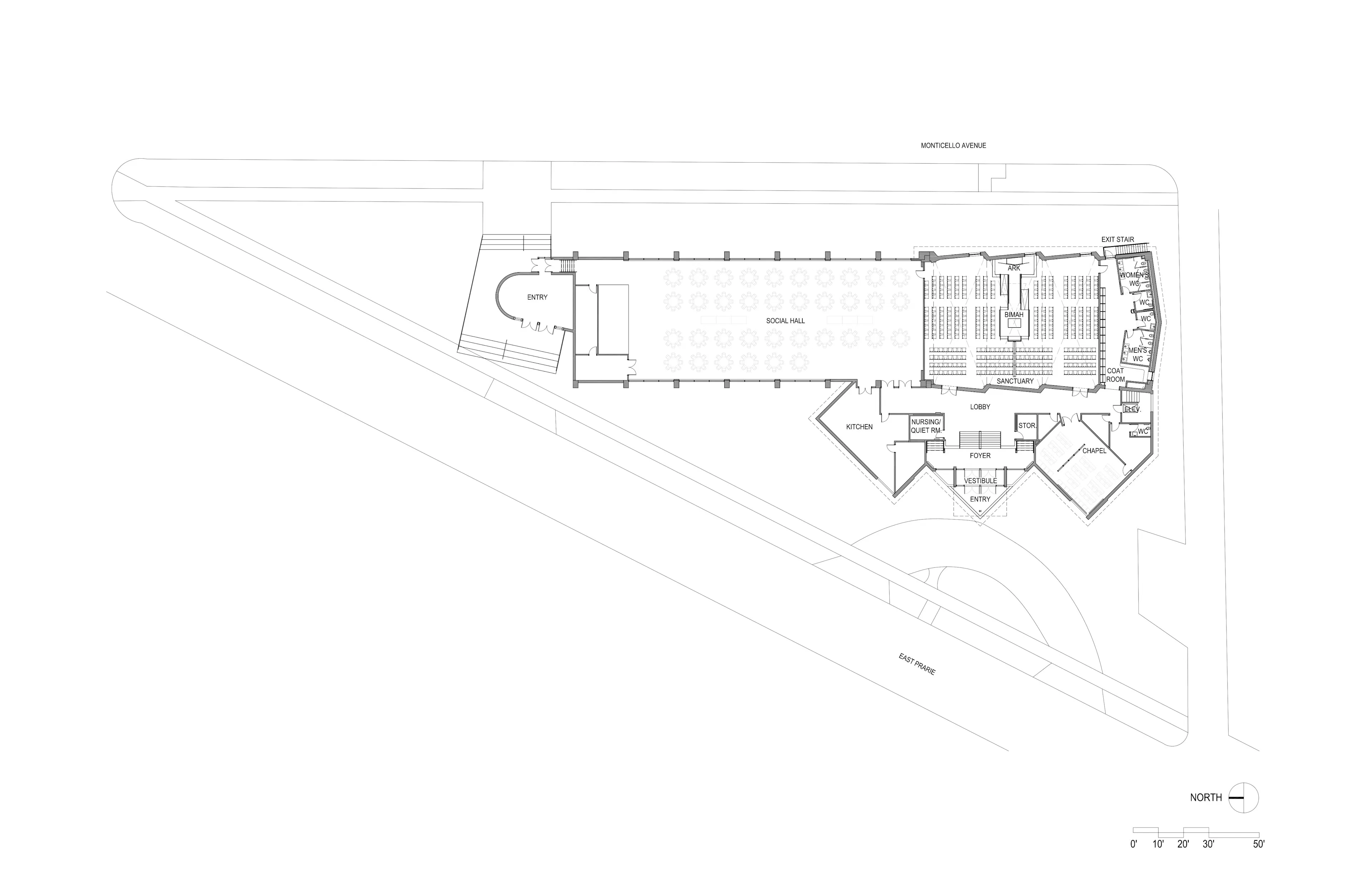
The Skokie Valley Synagogue renovation transformed the sanctuary, built in 1963, from a dark, formal space to an ethereal, light-filled and ADA accessible room for communal prayer. The original room was a long, dark hall with dim lighting and fixed theater-type seating. The renovation converted the large stage into new, modern bathrooms and a coat room. The main sanctuary was reconfigured. A large triangular skylight was installed in the center of the room, lighting the prayer leader’s location. The existing vertical windows were replaced with clear glass, and the old candelabra chandeliers were removed. Minimal LED linear cove uplights were installed, washing the original building’s angled roof geometry with indirect light. Similarly, the tan brick walls were painted with a coat of white lime wash, brightening the space while respecting its past. Movable chairs replaced the fixed seats and reoriented the focus of prayer east toward Jerusalem. The new seats allow for flexibility and bring the congregation closer to the ark and bimah––the reading table from which the prayer service and Torah reading are led. The design of the ark and bimah, which are connected by a new, raised ADA accessible platform, also respond to the existing structure and geometry. The movable bimah accommodates a variety of users and can be adjusted for ADA needs. Custom-made glass mechitzah panels (partitions) separate the men’s and women’s sections, while allowing both sides to see the service. The glass has the Friday evening service etched on it, creating a pattern of translucent forms made of Hebrew letters. The architect and congregation were committed to creating a space that is infused with the values of ethics and aesthetics. The goal was to create a contemporary space that allows congregants to experience both the communal aspects of prayer and the personal intimate spiritual experience.
People
1Collaborators
4collaborator
collaborator
collaborator


























