Sports Center in the Sonoran Desert
Fernanda Canales
Agua Prieta, Mexico
- Year
- 2023
- Category
- Sports & Recreation > Gyms and Recreation Centers
- Type
- Hospitality + Sport
- Firm
- Fernanda Canales
- Location
- Agua Prieta, Mexico
- Award
- A+ 2025 · Special Mention

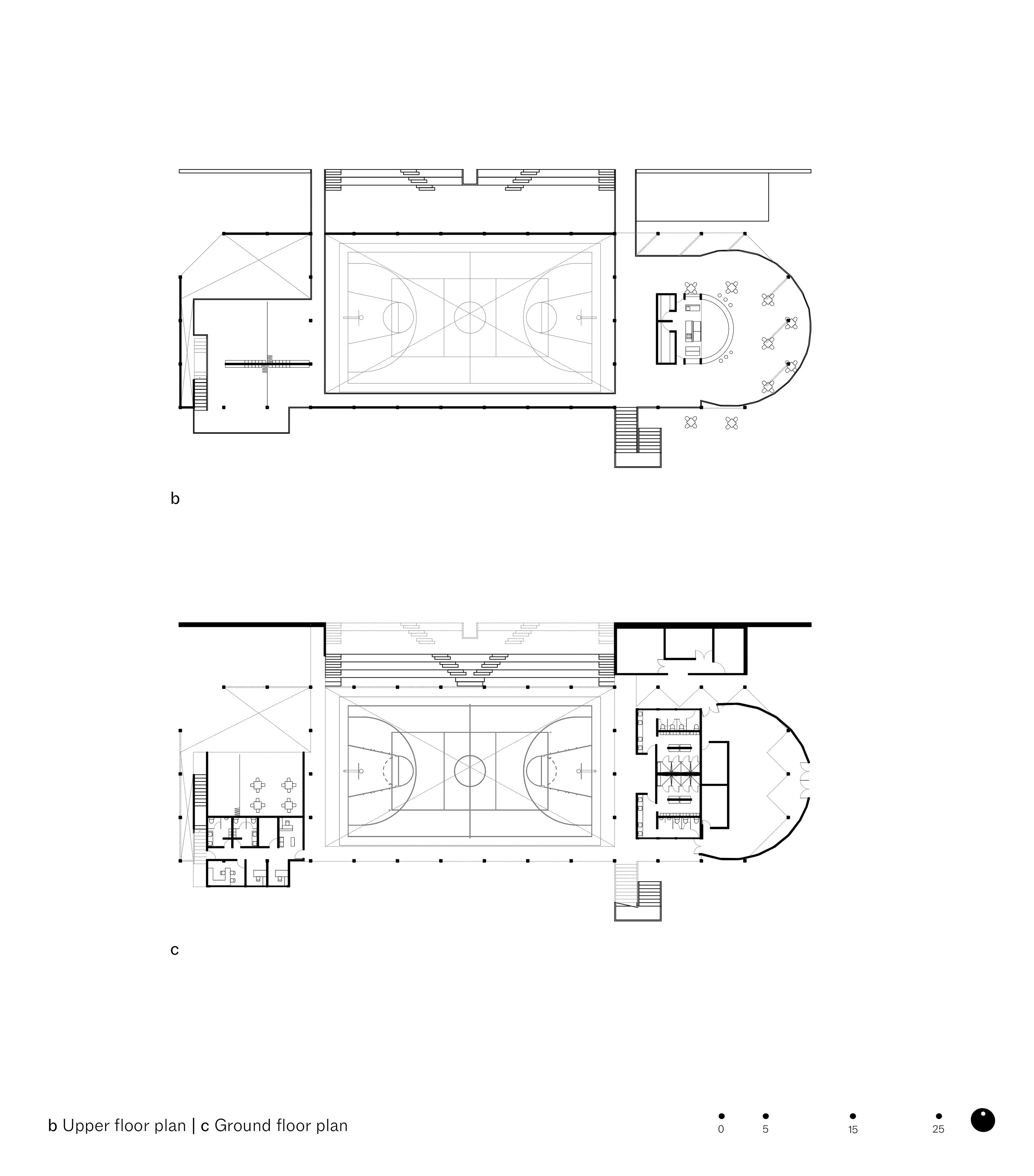
This project in Agua Prieta, Sonora, completes the route that begins with the library and public park at the border crossing with the city of Douglas, Arizona. A large, toothed roof opens the building to the city and houses a court, gym, multi-purpose rooms, cafeteria, restrooms, and locker rooms. This building is the centerpiece of a large-scale complex equipped with sports areas, soccer fields, a running track, a skate park, and children’s play areas. The project integrates the various programs within a kind of large covered plaza. The building consists of two parts: a lightweight metal roof that covers large spans and rises to open in all directions, providing each space with natural light and ventilation; and a ground-floor body connected by concrete stairs and walkways and brick walls to house the various services on both sides. The central space is dedicated to the court area, completely open on its two long fronts and connected to the landscape. The site’s accentuated topography is used to place bleachers towards the front closest to the road, allowing access to the building at a half-level to simplify circulation and adapt the work to the context. The building thus remains always open and fosters various ways of connecting the sports areas, the surrounding play areas, and the services.
Collaborators
1lead








