Sumui House
TCA the concrete abstract
Sinan-gun, South Korea
- Year
- 2022
- Category
- Concepts > Architecture +Low Cost Design
- Type
- Residential
- Firm
- TCA the concrete abstract
- Location
- Sinan-gun, South Korea
- Award
- A+ 2024 · Finalist

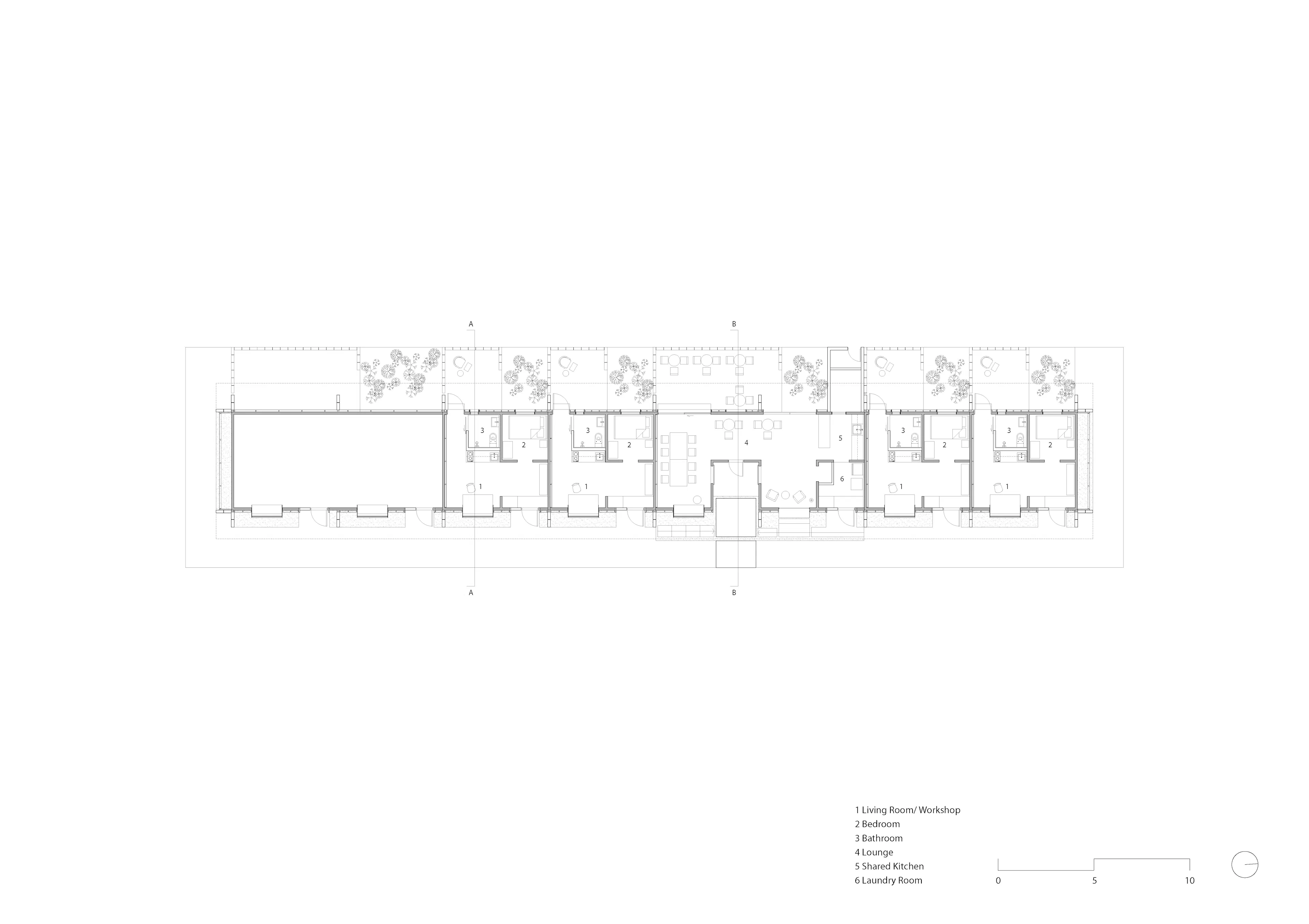
Sumui House is a renovated artist residence and workshop for the annual art residency program at Taepyung Salt Farm. Located in the tranquil countryside, the 35-year-old building - originally a dormitory for salt farm workers - stood half-ruined along a creek and reeds. The client envisioned the renovated building to celebrate the history of the old salt farm while it being a low-budget project. Building materials were carefully selected in that the construction was to be done by the locals who are not professionals. As such, CMU, steel pipes, plywood, and charred wood were chosen that are easy to procure, and workable by hand. Wood charring process was done by the local farmers on site, which saved treatment and transportation costs. CMU walls attached perpendicular to the long front façade serve as buttress to the roof lateral load and add vertical rhythm to the elevation. The thin metal plate added to the top of the existing roof gives lightness to the building by exposing edges on the sides. The original room layout was kept intact with some minor additions. The entrance to the lounge was treated with symbolic gestures. The exterior wall was demolished to create an inverted outdoor space to the entrance, and the wall section was exposed to show the construction of the wall materials – the original CMU wall, the steel pipe, and the newly added CMU. The manual roller shade is devised to shape string figures by pulling and winding the string around pins while opening the shade. The exterior light fixture and door handles are designed to enhance the atmosphere of the aged building and space. *The name Sumui (ㅅㅡㅁㅡㅣ) is a newly coined Korean word that mimics the shapes of the pitched roof, the eave, the square window frames, and the vertical CMU walls.
Collaborators
1


























