tə šxʷhəleləm̓s tə k̓ʷaƛ̓kʷəʔaʔɬ (The Houses of the Ones Belonging to the Saltwater)
Hotson Architecture
Vancouver, Canada
- Year
- 2022
- Category
- Residential > Affordable Housing
- Type
- Residential
- Firm
- Hotson Architecture
- Location
- Vancouver, Canada
- Award
- A+ 2023 · Popular Choice

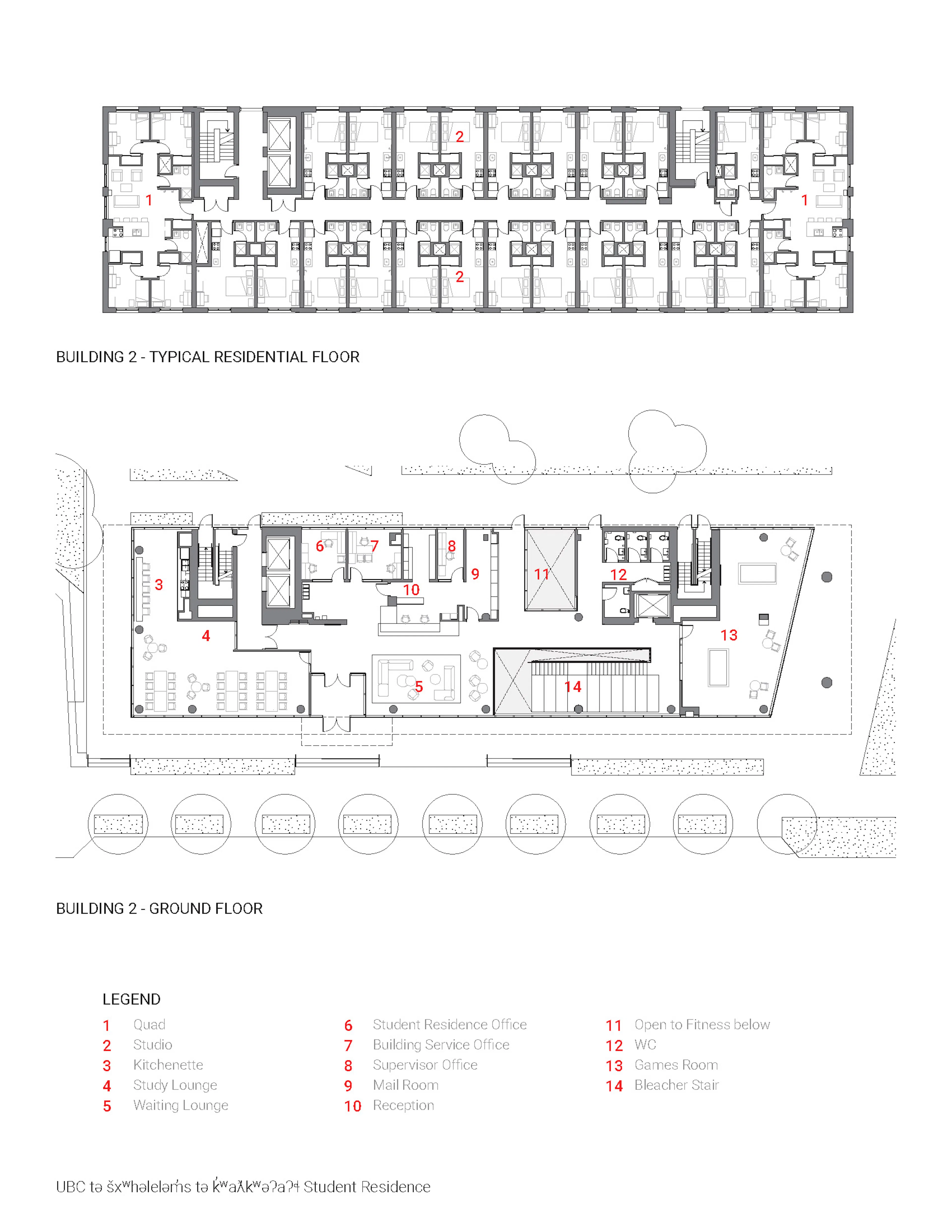
Ryder Architecture and Hotson Architecture, in collaboration, recently completed tə šxʷhəleləm̓s tə k̓ʷaƛ̓kʷəʔaʔɬ (The Houses of the Ones Belonging to the Saltwater), a series of five student residences at the University of British Columbia (UBC) in Vancouver, British Columbia, Canada. The project addresses the importance of student wellness, inclusivity, and sustainable design through its dynamic programming, visual transparency, and context-responsive materiality. The Musqueam Indian Band generously bestowed the names to UBC in their hən̓q̓əmin̓əm̓ language as a gift. Offering nearly 1,000 beds for upper-year students, the student housing project features studio and four-bedroom apartments. Additionally, the project includes a dedicated commons block with a front desk, offices for student services, fitness space, music and dance practice rooms, study lounges, casual seating areas, and meeting rooms. These expansive shared amenity spaces are consolidated in one of the five buildings, serving as a “social condenser” to encourage student interactions while also providing ample room for students to vary and expand their living spaces. The material palette and consistent formal language of these mid-rise buildings enables the massing of this string of residences to be broken down into individual blocks, facilitating visual and pedestrian connections to the broader campus. Communal uses are centralized on the ground floor level to encourage connectivity through visual transparency and social condensing, including fully glazed curtain walls and exterior wood soffits that transition into interior ceiling treatments. The highly insulated wall assembly provides an opportunity to express a sense of depth within the façade through angled metal accent panels that create depth to frame and accentuate the otherwise repetitive fenestration pattern. This approach creates a unique and delightful effect that varies and stretches the scale and expression of each building’s facade. The white and dark brick cladding takes its cues from the materiality of existing brick buildings on campus. The choice of glazed white and dark ironspot brick dramatically reflects light depending on the weather and time of day, capturing slight changes in light conditions, which are often overcast and rainy given Vancouver’s West Coast climate. Circulation, daylight, and double-height spaces create interconnectivity and views between programs, fostering social interactions and creating a sense of place. A key focal point is a large bleacher stair that connects the ground and basement floor levels, encouraging activity and views between shared student spaces. Floor-to-ceiling glazing and double-height openings provide an abundance of daylight in the basement. Guided by the UBC Green Building Action Plan, the design team adopted a rigorous sustainability and environmental performance approach. Building performance was measured against projected climate scenarios for 2050 and 2080, with mitigation features such as a high-performance building envelope, active cooling, high-efficiency heat recovery ventilation, and connection to UBC’s district energy system. A 55% reduction in building carbon emissions was targeted compared to current local building practices and also targeting LEED Gold.
People
1Collaborators
7collaborator
collaborator
collaborator
collaborator
collaborator
collaborator



















