Tangshan Quarry Bookstore of Librairie Avant-garde
Art+Zen Architects
Nanjing, China
- Year
- 2021
- Category
- Commercial > Commercial Adaptive Reuse Projects
- Type
- Commercial
- Firm
- Art+Zen Architects
- Location
- Nanjing, China
- Award
- A+ 2024 · Finalist

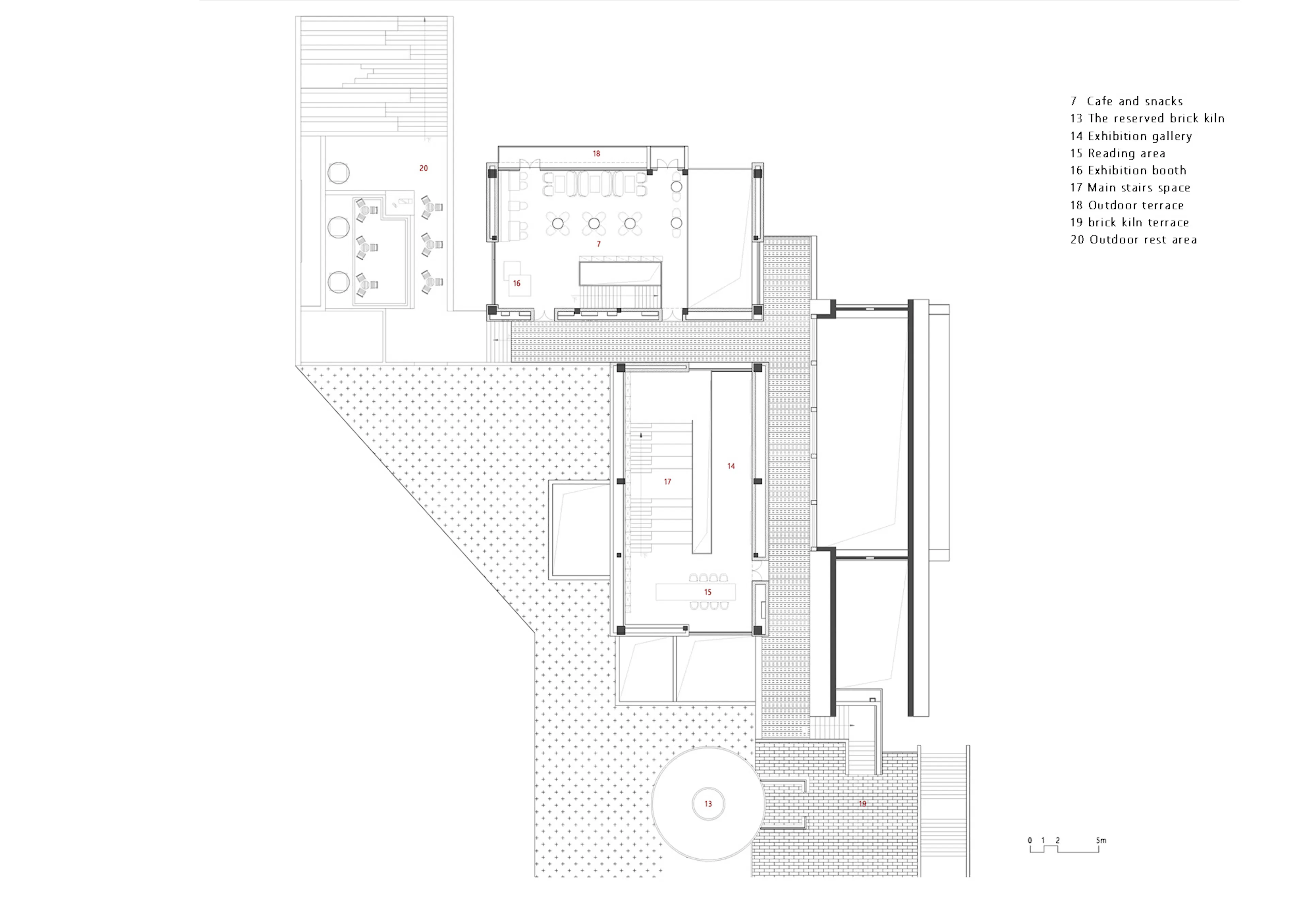
Tangshan Quarry Bookstore of Librairie Avant-grade is located at the entrance of Tangshan Quarry Park in Nanjing, which was once the largest abandoned mine in Tangshan. After the overall ecological restoration and landscape reconstruction, it has been reborn as an open park, integrating viewing experience and recreation. The project is next to a 20-meter-high double-barrel brick kiln that had been abandoned for many years. How to create a harmonious symbiosis between the old and the new, and to create a commercially adaptable cultural experience space for the identified bookstore business, is not only an opportunity but also a challenge. The overall strategy of the design is to extract the prototype of the double barrel of the brick kiln, and transform the vertical form into a horizontal arch, which not only echoes the brick kiln, but also matches the inherent ethos of the Librairie Avant-grade. The bookstore consists of three arched cylinders, which are interconnected on the ground floor. The one-story high cylinder serves as the grey space for the entrance and the venue for the exhibition and sale of new books, the bookshop cashier and the exhibition and sale of creative products, with a span of 8 meters. The two two-story high cylinders, one for exhibitions, lecture theatres and book sales, and the other for the café, both spanning 10 meters. Several skylights are designed for daylighting and smoke exhaust, and the double walls are not only good for energy saving, but also for hiding the equipment and rainwater pipes. There is no additional decoration on the interior walls, the color and texture of the bricks and concrete is highlighted. The combination of black steel, plain concrete and red brick makes for a deep and impactful space.
Collaborators
1













