Teatro Borsoni
ARW Associates
Brescia, Italy
- Year
- 2024
- Category
- Cultural > Hall / Theater
- Type
- Cultural
- Firm
- ARW Associates
- Location
- Brescia, Italy
- Award
- A+ 2025 · Finalist

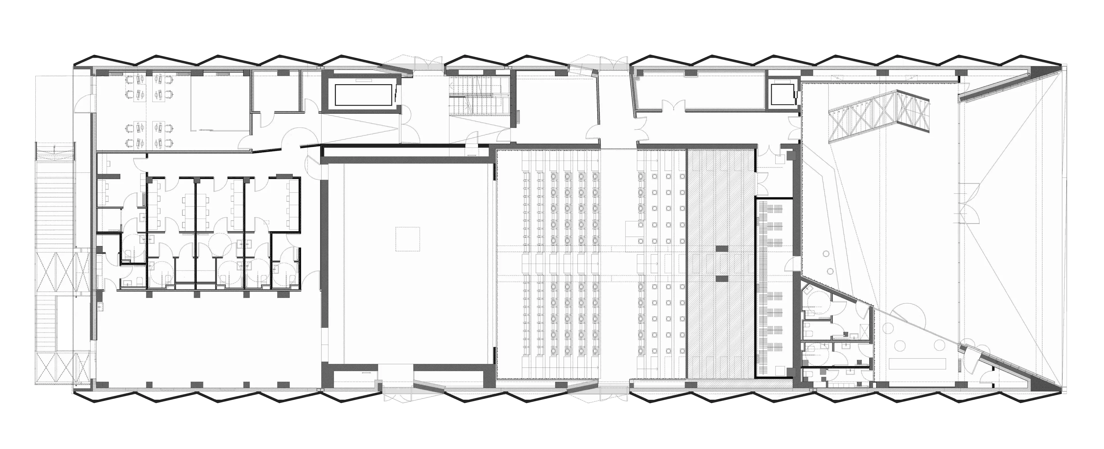
The "Oltre la strada" project aims to regenerate the “Via Milano” area in Brescia on three levels: infrastructural, urbanistic, and socio-cultural. A symbol of the revitalization is the new Teatro Borsoni, located in a former degraded industrial area. Teatro Borsoni redefines the role of a civic theatre as a transformative agent for urban regeneration. The project was inspired by the post-industrial context and the idea of an architecture that draws from the Renaissance, understood as a model of civic and urban design. The theater features a main hall with 312 seats and a children's hall with 172 seats, presented as a parallelepiped measuring 21x64 m and 9 m high. The envelope is made of prefabricated diamond-patterned concrete blocks measuring 4x1.25 m, creating a cyclopean wall. The 19-m scenic tower, clad in backlit polycarbonate panels, becomes a new urban landmark. The entrance, a flared 7-m metal loggia, houses a double-height foyer and a bar. Environmental sustainability was addressed through material choices, construction methods, and long-term use. The founding idea is that of offsite construction, reversibility in terms of Lca (Life-cycle assessment) and compliance with CAM. The challenge was to shift the perception of Via Milano from a neglected industrial periphery to a vibrant cultural district. This was achieved by embedding the theatre in a reimagined public space: a granite-paved plaza and tree-lined civic forecourt create new rituals of access, encounter, and gathering. The building’s transparency through the glass foyer, dissolves barriers between cultural infrastructure and the everyday life of the street. This theatre is an architecture for the city and within the city—a catalyst for revitalizing an area with a rich industrial history, transforming it into a beacon of cultural and social renewal for today’s and future generations.
Collaborators
2lead
collaborator

























