Thavi Cosmetic Showroom
SAVA Architects
Vinh, Vietnam
- Year
- 2023
- Category
- Commercial > Unbuilt Commercial
- Type
- Commercial
- Firm
- SAVA Architects
- Location
- Vinh, Vietnam
- Award
- A+ 2023 · Popular Choice

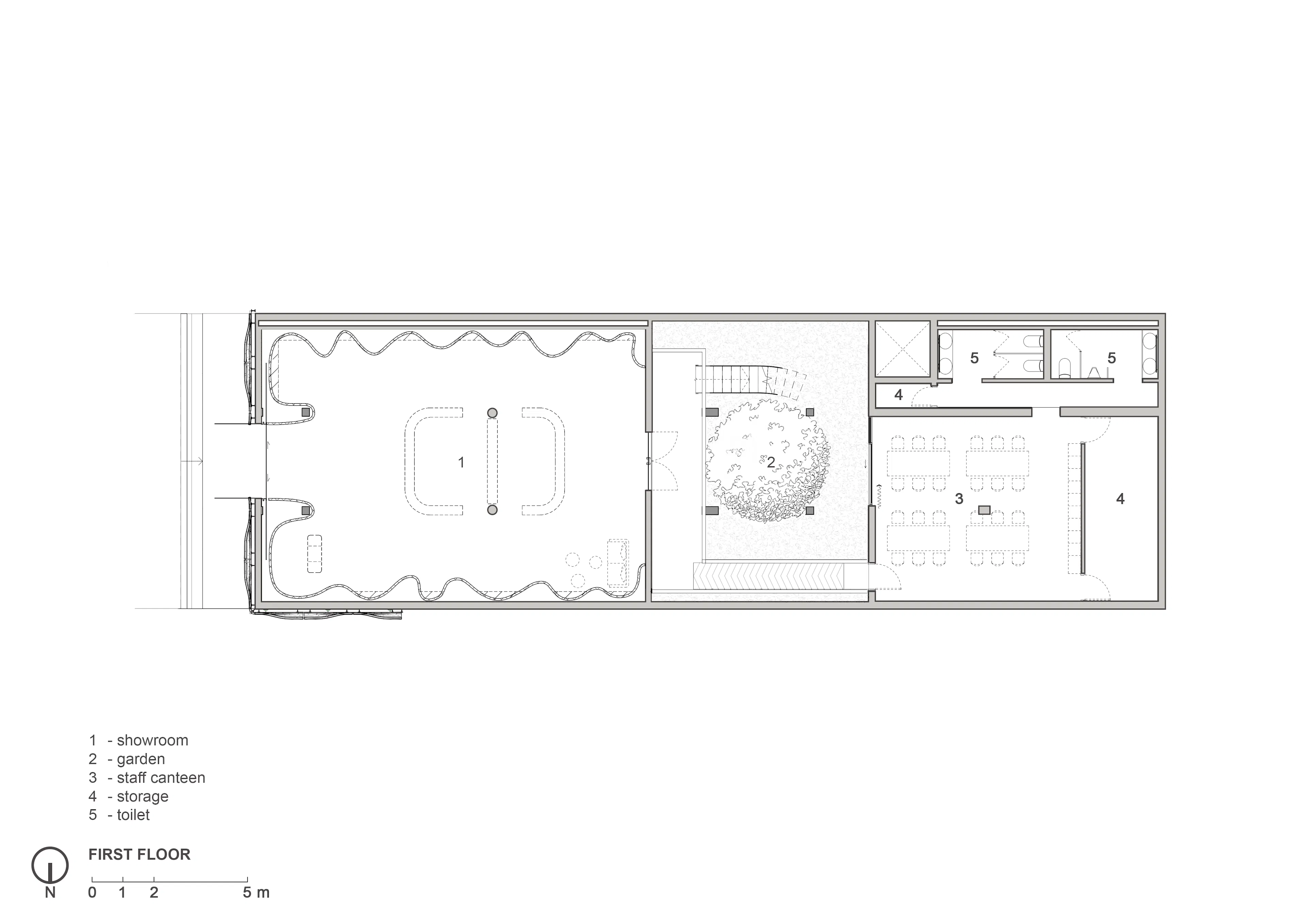
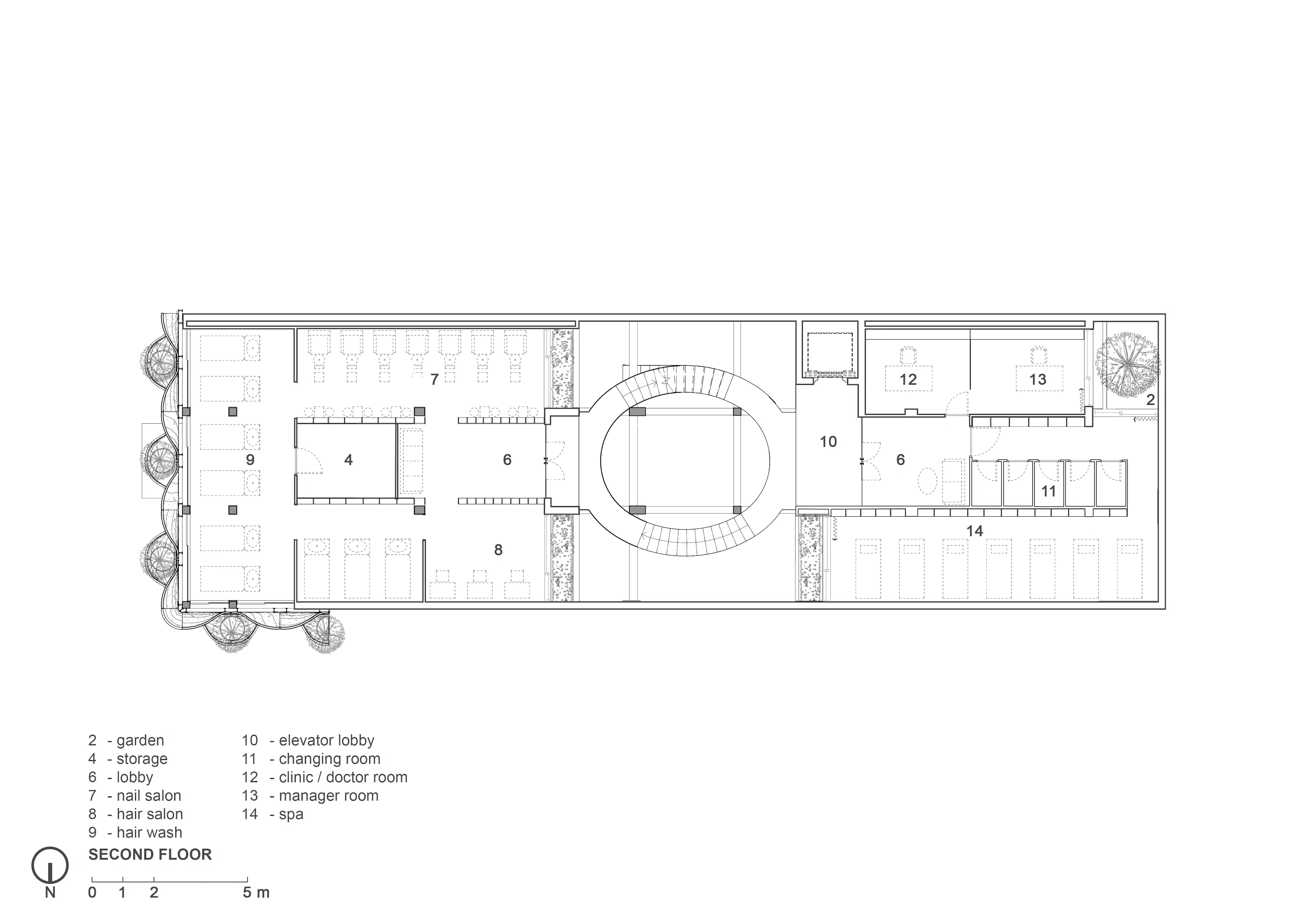
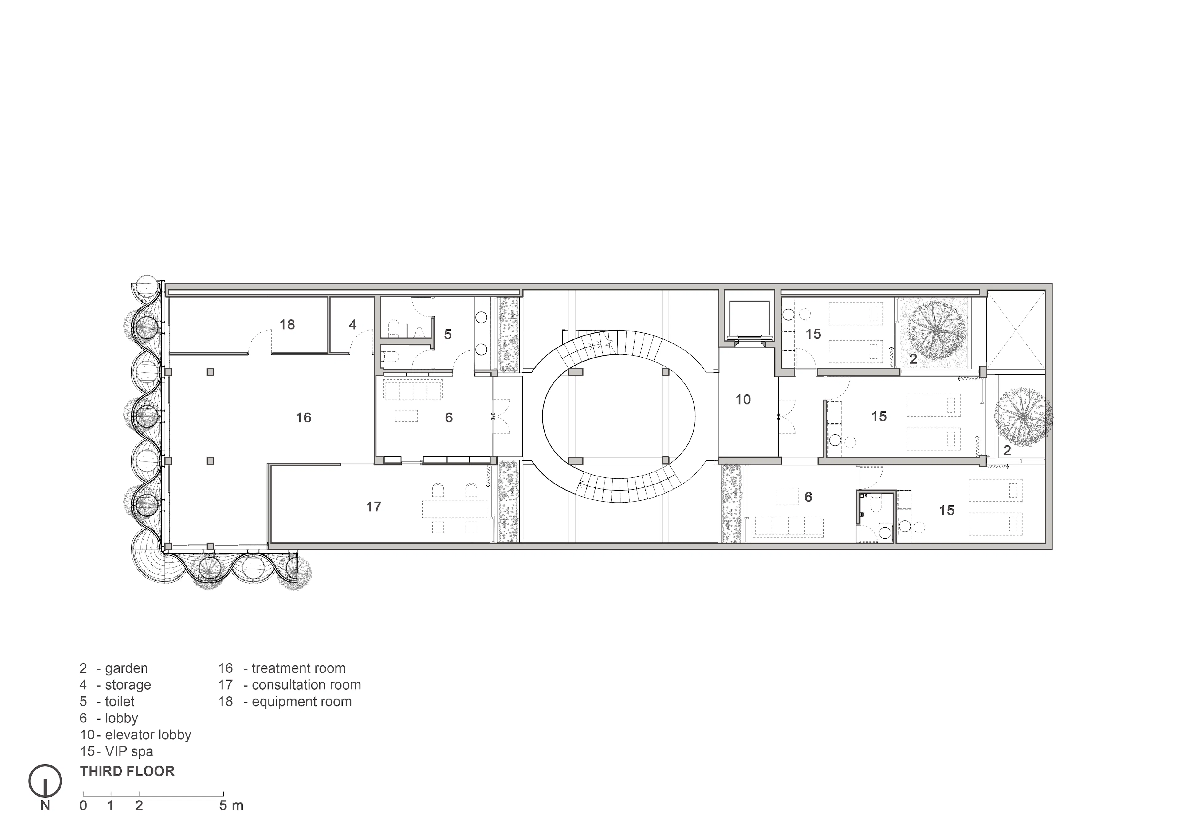
This is a conversion and renovation project located at the center of Vinh, a city in Vietnam. In general, buildings in Vinh City tend to be hastily constructed without much consideration for people's well-being or are simply replicas of European Colonial styles. We would like to propose a modern interpretation of tropical architecture that carefully takes into account our local culture and climate. The existing building is a three-story retail building that was built in the early 2000s, selling electrical and home appliances. We were approached by the client to refurbish and renovate it into a well-being and beauty spa. The brief is to create a facade that is both inviting and attractive. The client also requests for abundant natural light and greenery inside each space, which is currently dark and moldy. Our solution is to use fiber-reinforced concrete (FRP) planters as the building facade. The planters are designed in modules for quicker fabrication and higher quality. Their sizes are also optimized for easy transportation using standard trucks in Vietnam. In order to introduce natural lighting into the building, we propose to demolish the existing staircase and partial floor slab at the center of the building to create an atrium with a skylight above. This will illuminate the darkest area of the building. Additionally, a curved metal staircase is proposed at the atrium to replace the existing staircase, and it will be strategically placed around a central green courtyard. Moreover, the same strategy is applied to the back side of the building, allowing natural lighting to enter from both the front and back facades, as well as the rooftop. Lastly, the existing corrugated roof will be replaced to accommodate a café and rooftop dining space that is bright, airy, and surrounded by shrubs and plants that are placed on concrete planters. Name of project: Thavi Cosmetic Showroom Architecture : SAVA Website: : https://sava.archi/ Team :Cam To Quang, Aron Beh Kawai, Quyen Pham Le Ai Location : Vinh City, Vietnam Category : Renovation
People
2Collaborators
1lead















