The Burrell Collection
John McAslan + Partners
Glasgow, United Kingdom
- Year
- 2022
- Category
- Concepts > Architecture +Renewal
- Type
- Cultural
- Firm
- John McAslan + Partners
- Location
- Glasgow, United Kingdom
- Award
- A+ 2024 · Special Mention

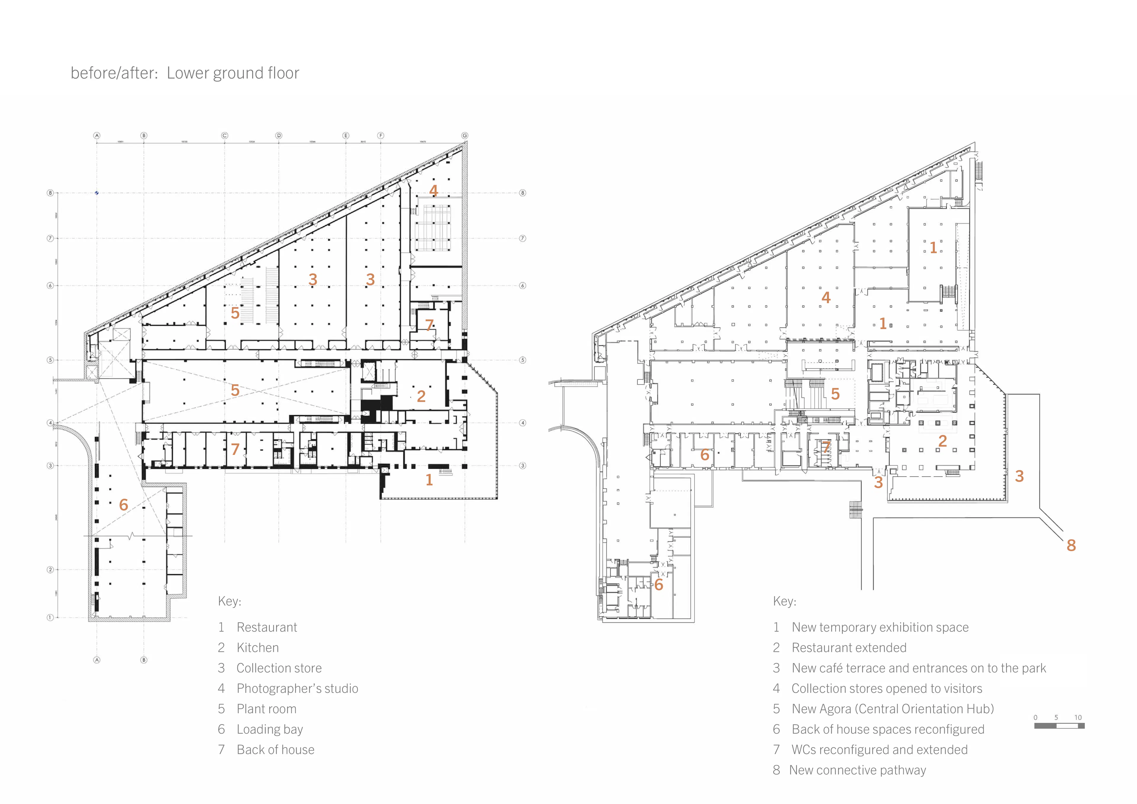
The Burrell Collection is one of Scotland’s great cultural treasures: an exquisite modernist pavilion housing an exceptional assemblage of art and antiquities spanning six millennia and comprising 9,000 objects, including tapestries, ceramics and architectural fragments from Europe, China and the Islamic world. This majestic collection was amassed by the shipowner Sir William Burrell, who donated it to the city of Glasgow in 1944, along with funds for a purpose-built museum. Located in Pollok Country Park, south-west of the city, the museum was eventually completed in 1983 to designs by Barry Gasson, John Meunier and Brit Andresen. They sought an intimate relationship between art, architecture and nature, and placed the building in the corner of a sloping field ringed by woodland. Airy glass-walled galleries on its north side press against the treeline, so their concrete columns and vaulted timber roof seem to merge with the trunks and branches of chestnuts and sycamores. Sandstone walls make a weighty counterpoint, forming narrow galleries deep in the interior and a long, barn-like entrance wing that extends southwards to a car park screened by trees. The Burrell was an immediate success, receiving a million visitors in its first year, but by 2015 the number had fallen to 150,000. Reversing that trend was the central challenge of John McAslan + Partners’ (JMP’s) six-year renovation, which would revitalize the museum without sacrificing its original character. After extensive consultation the design team defined three key objectives: repair failing fabric; adapt the interior to meet the expectations of contemporary museumgoers; and improve connections to the park. JMP’s scheme carefully repaired the building’s decayed envelope and resolved some long term problems with water ingress. The design markedly improves building services and energy efficiency and allows a significantly larger selection of the collection to be exhibited. The transformation includes significant volumetric and layout interventions, internally, to create new learning spaces, open access storage, special exhibition areas and an updated restaurant. The newly modelled external landscaped terraces also link the museum to the surrounding Pollok Country Park. Outwardly virtually unchanged, but restored and retuned to the highest standards throughout, the twentieth-century masterpiece is now fit for the twenty-first.
Collaborators
2collaborator




















