The Whisky Bar with a Concrete Identity
JSPA Design
Taiyuan, China
- Year
- 2024
- Category
- Hospitality > Bars and Wineries
- Type
- Hospitality + Sport
- Firm
- JSPA Design
- Location
- Taiyuan, China
- Award
- A+ 2025 · Special Mention

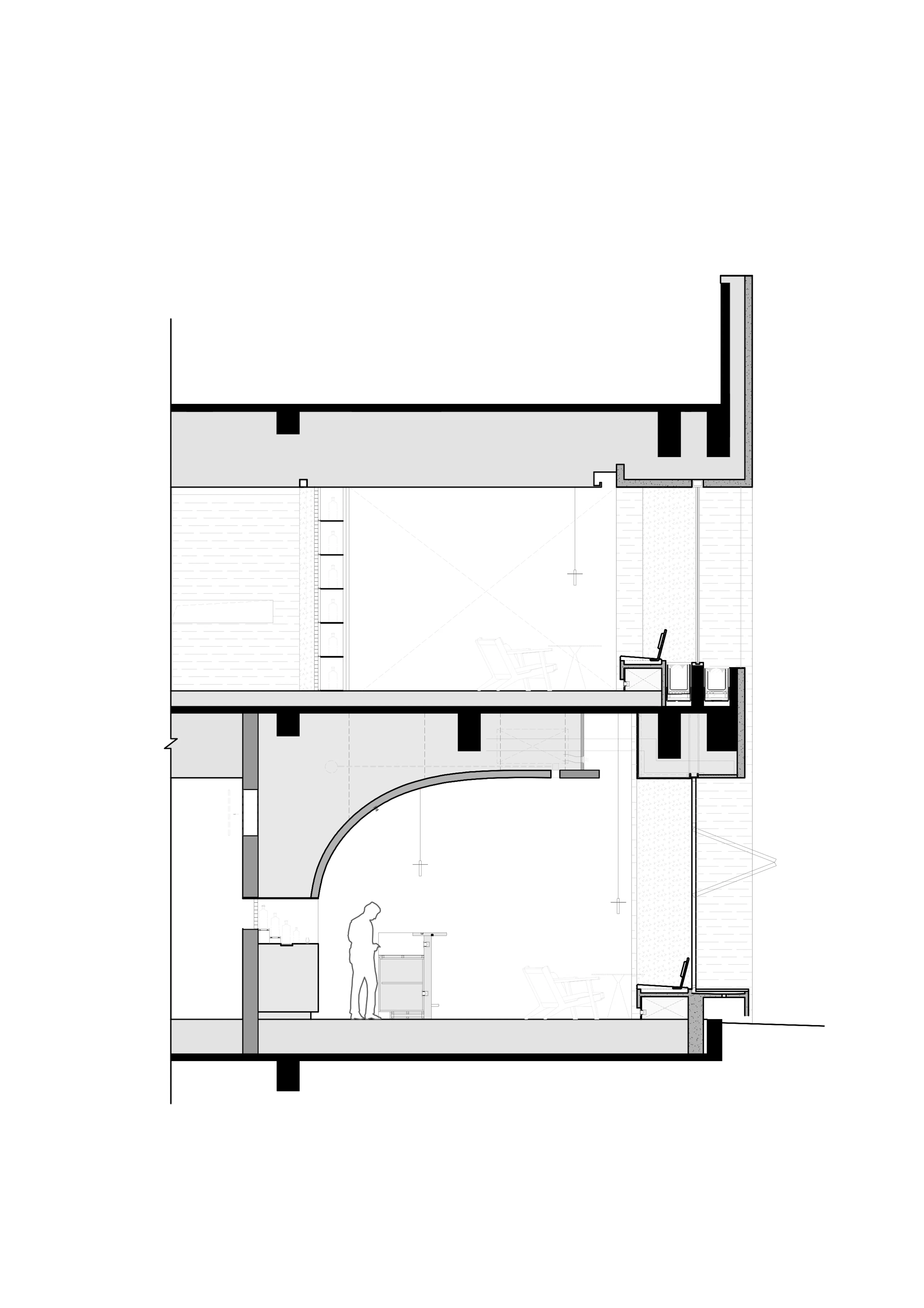
A constrained site Located in Taiyuan Xiaodian district, the project consisted of the refurbishment of two floors of a commercial podium, part of a standard real-estate housing complex. The scope of the intervention extended on the area of three existing shops and aimed to unify them into a single Whisky and cocktail bar. The space, mainly facing Jinyang street also had a discreet access from the back to pedestrian commercial street. Due to the presence of the apartment building on the top, the space was heavily constrained by the structure which loadbearing walls was slicing up the space into small entities but also by various pipes and shafts crossing the space from side to side. A new material for the facade Facing the heterogeneity of the existing situation and surroundings, the work on the façade was essential to allow the new project to exist in the cityscape. We choose to remove all existing facade claddings and to recreate a new facade that would oppose the usual light cladding of commercial facades. We worked on a cast-in-place concrete facade that will assert its presence in the context by its materiality. The concrete as a material allowed us to create a monolithic facade that brings a new texture in the city and also provides a long-lasting cover for the existing building. The main facade of the building was composed with three concrete arches extending on the two floors of the building, asserting the project's identity and catching attention within its context. The Concrete Arch was then repeated and transformed in various ways to become a figure that would constitute the identity of the project. Open bar The project development aimed at the creation of a bar for the city, a gathering place opened to its surroundings. To emphasis the orientation of the space towards the street, the bar area was covered with a concrete arch ceiling, a curved suspended slab, cast in place, that also allowed to dissimulate the service spaces in the back and all the machinery and pipes from the existing building. Focusing on a strong dialogue between the project and the city, the ground floor of the bar was conceived with a long concrete bench along the facade usable on both sides and a set of folding windows that would allow to remove physical barriers with the street. Intimacy gradation Leaving the bustling first floor with its urban atmosphere, a sculptural helicoidal steel staircase leads to the second floor where the project developed into a more intimate ambiance. A system of steel shelves was developed to create subtle separations between spaces and generate intimate alcoves while offering a showcase space for whisky bottles. Made from the boundless repetition of a single identical element, the showcase shelf created an interesting pattern that became the second strong identity element of the project. To accentuate the alcove feeling, three of the independent spaces were covered by a concrete arch wrapping the space from wall to ceiling and allowing the cast-in design of benches and fireplaces. Original materiality The choice of the concrete came naturally from the idea of a long-lasting material that would age gracefully. On the first floor it was combined with a gray brick flooring which the tint and pattern would match with the wooden cast concrete of walls and ceiling. The brick floor also reminds us of public space and narrows distance between the bar and the city. On the contrary all the elements requiring skin contact where made of warm materials: the bar surface made of oakwood, the bench seats covered with leather etc. to improving users’ sensorial experience.
Collaborators
1lead

































