Thirty75 Tech
Verse Design LA
Santa Clara, United States
- Year
- 2022
- Category
- Details > Architecture +Facades
- Type
- Commercial
- Firm
- Verse Design LA
- Location
- Santa Clara, United States
- Award
- A+ 2024 · Finalist

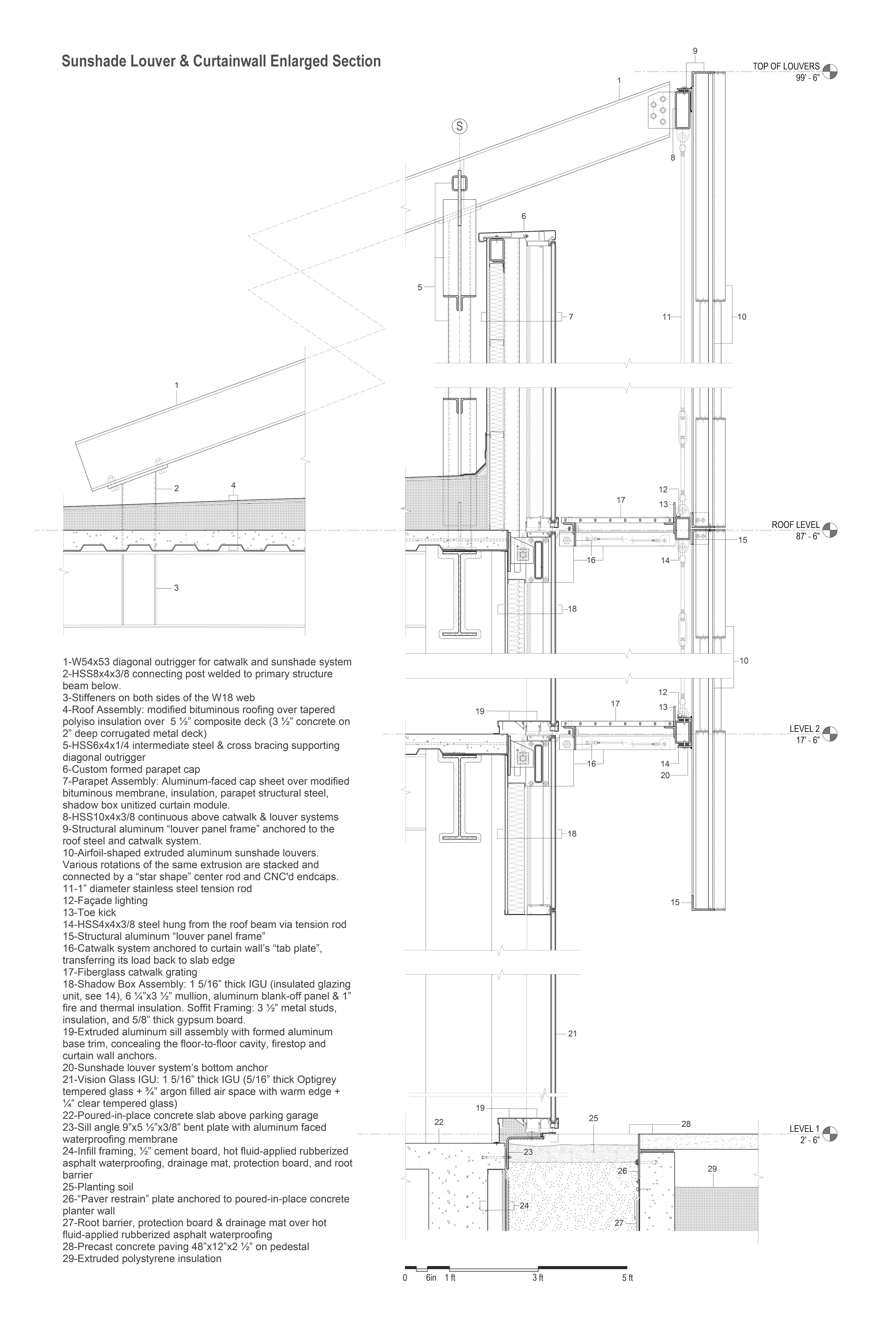
Located at a busy intersection in Santa Clara, California, the recently completed Thirty75 Tech project nestles into the urban site and creates a new public space against a backdrop of Silicon Valley office parks and freeways. The most notable outcome is an array of fixed aluminum louvers that synthesize competing requirements [performative, aesthetic, formal, physical]. This approach re-couples the façade strategically with both the performative and the practical, indexing the needs of the building against its performative requirements while acknowledging its place in the urban environment. The realized animated façade is activated with time and light shifting throughout the day and as the viewer moves, changing their vantage point; the memory erased and re-written by the hour. The design intentions become the definition of Architecture that is both performative and expressive. A generative process of parametric modeling was used to calculate louver length, width, and rotation to meet the shading requirements established by code required energy modeling. Physical models are also used for testing and turning incremental louver rotation to mee the solar shading performance needs while evaluating the atmospheric effects at both the office space, plaza, and street. In the time the 70% shading target was achieved and the team shifted their focus to constructability. Embracing the need for repetitive module development facilitating repetition in fabrication and assembly. 4.5-feet-wide modules, which contains multiple strands of ‘eye’ shaped louvers, extend the full height of the building aligning with the curtain wall bay spacing. Louver length range from 2-feet long to 38-feet and overlap the floor plates. Ultimately, fabricated with 28 typical modules including slight adjustments to accommodate the curve and corners. The façade was closely developed with subcontractors and consultants in effort to establish the most efficient systems and details optimize assembly sequencing, structural demands, and design intent.
People
2Collaborators
3









