TripTych
Leckie Studio Architecture + Design
Vancouver, Canada
- Year
- 2025
- Category
- Residential > Unbuilt - Private House (S <3000 sq ft)
- Type
- Residential
- Firm
- Leckie Studio Architecture + Design
- Location
- Vancouver, Canada
- Award
- A+ 2024 · Jury Winner

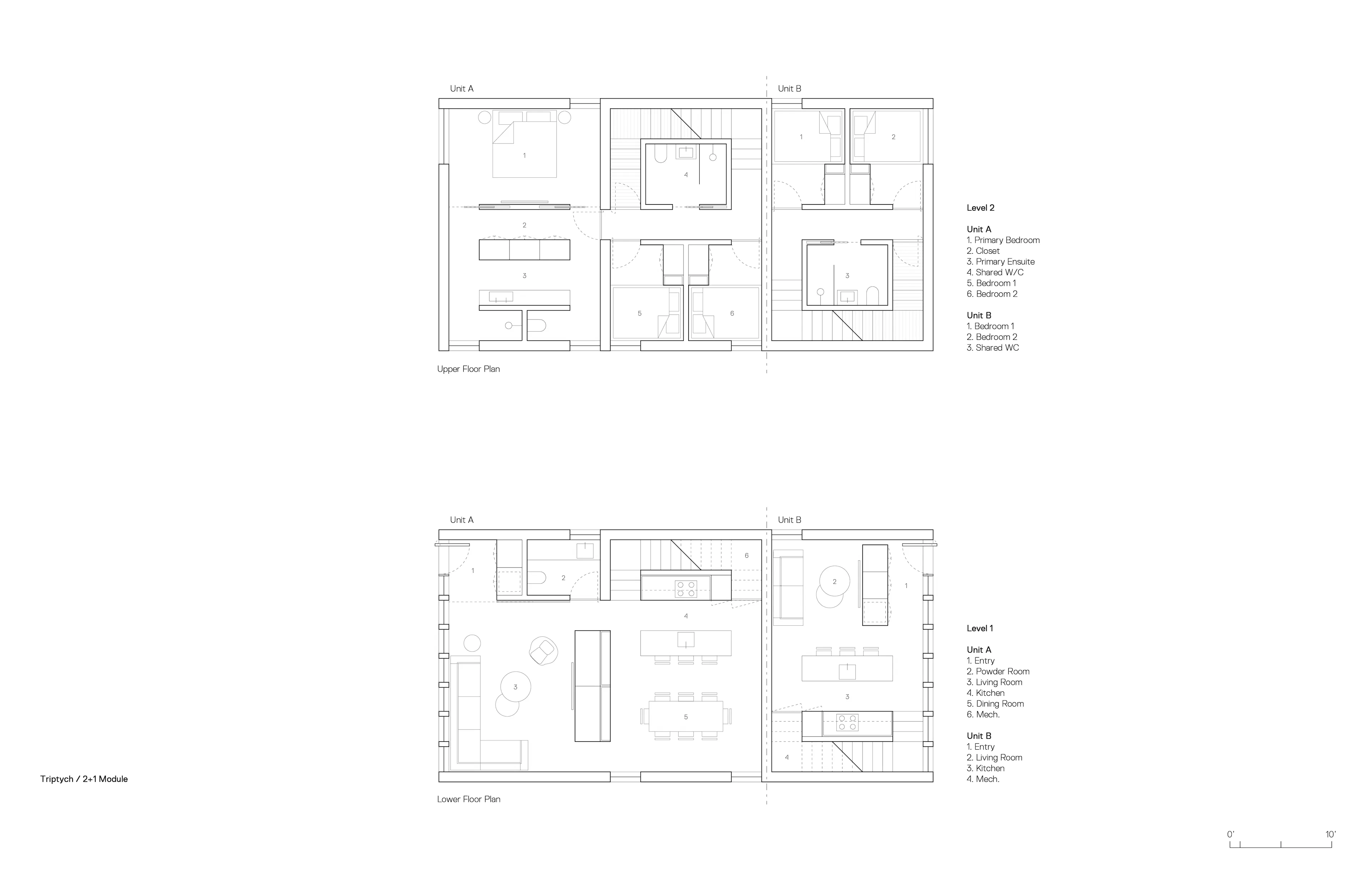
TripTych is a prefabricated housing prototype for adaptable densification in urban and suburban neighbourhoods. The design consists of a single 2400 square-foot building shell that is divisible into 800 square-foot increments which can be combined or divided into dwelling units with incremental sizes of 800 / 1600 / 2400 square feet over the lifespan of the building. The fundamental thesis behind TripTych is that architecture, and housing in particular, must be easily adaptable over time – while also accommodating the necessary movement towards gentle densification of existing single-family neighbourhoods across the country. TripTych presents a form of ground-oriented housing that is founded on the principles of adaptability, diversity and inclusion, resilience, affordability, and permanence. It is highly aligned with current policy initiatives for gentle densification at both provincial and municipal levels. The fundamental key to sustainability in architecture is to create permanence in high-performance buildings and avoid costly and wasteful demolition. In order to provide adaptability over time, all future scenarios must be considered at the time of the initial design and construction – space planning, infrastructure, and construction are all aligned to accommodate the potential future use cases. Additionally, the economics of land value and constructability must be scrutinized and optimized if housing is to be attainable. A prefabricated component-based approach to construction results in a construction cost of $400 per square foot. Future adaptations of the system are accomplished through very simple minor renovations that allow 4-6 dwelling units on a single-family lot. Utilizing a utilitarian approach to housing form and function, TripTych defies the colonialist heritage of Vancouver’s urban landscape. With a focus on function, adaptability, proportion, and materiality, TripTych marks a shift away from urban housing as a disposable commodity and presents a future vision that provides inclusive ground-oriented housing solutions for all urban citizens.
Collaborators
1



















