UBC MacLeod Renewal
Teeple Architects
Vancouver, Canada
- Year
- 2022
- Category
- Built > Sustainable Adaptive Reuse or Renovation Project
- Type
- Educational
- Firm
- Teeple Architects
- Location
- Vancouver, Canada
- Award
- A+ 2024 · Finalist

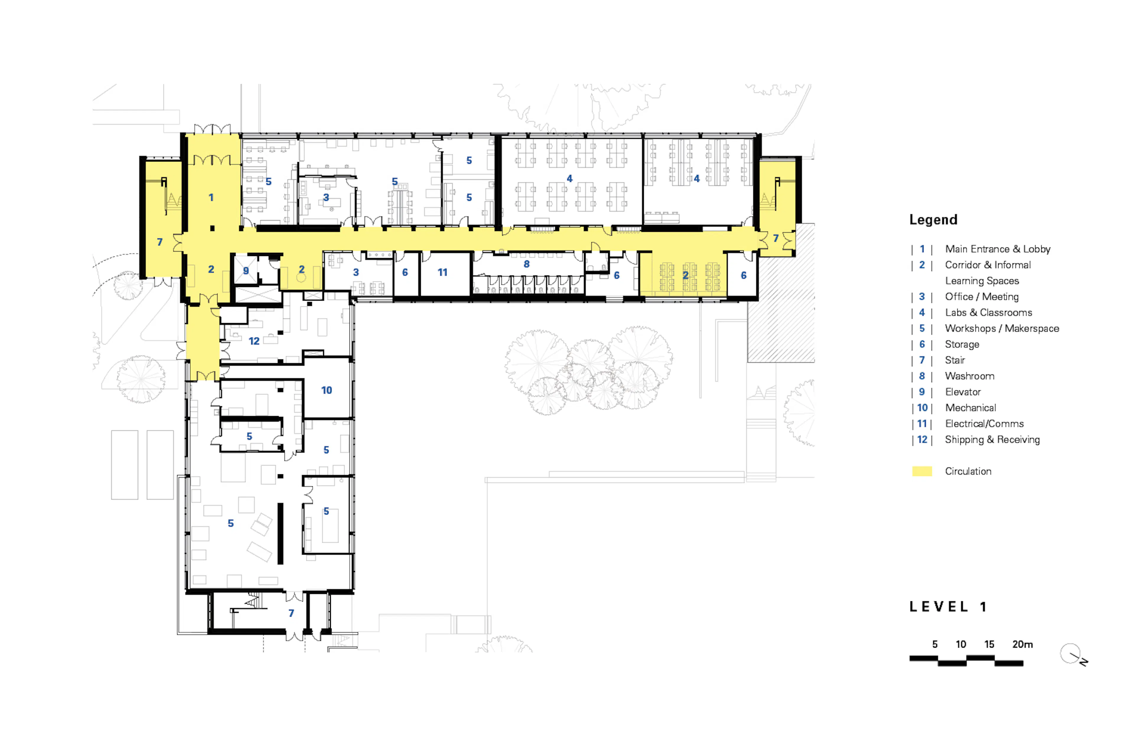
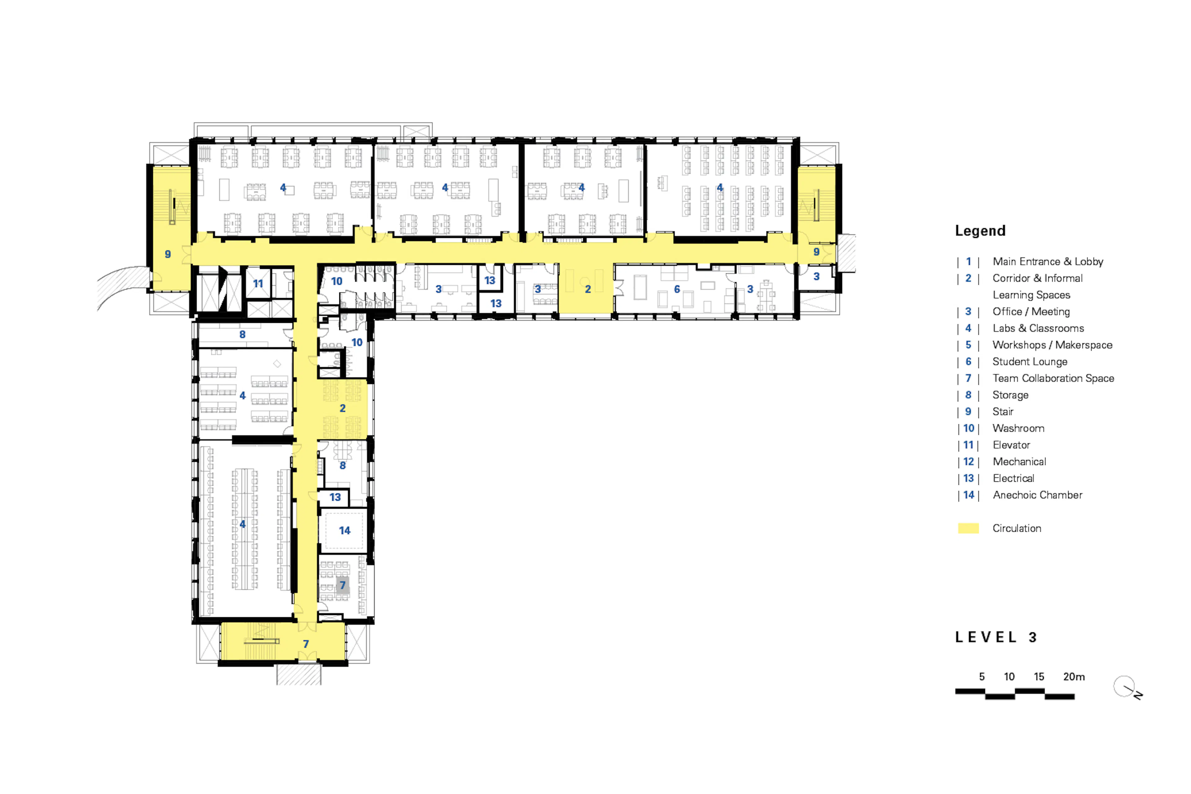
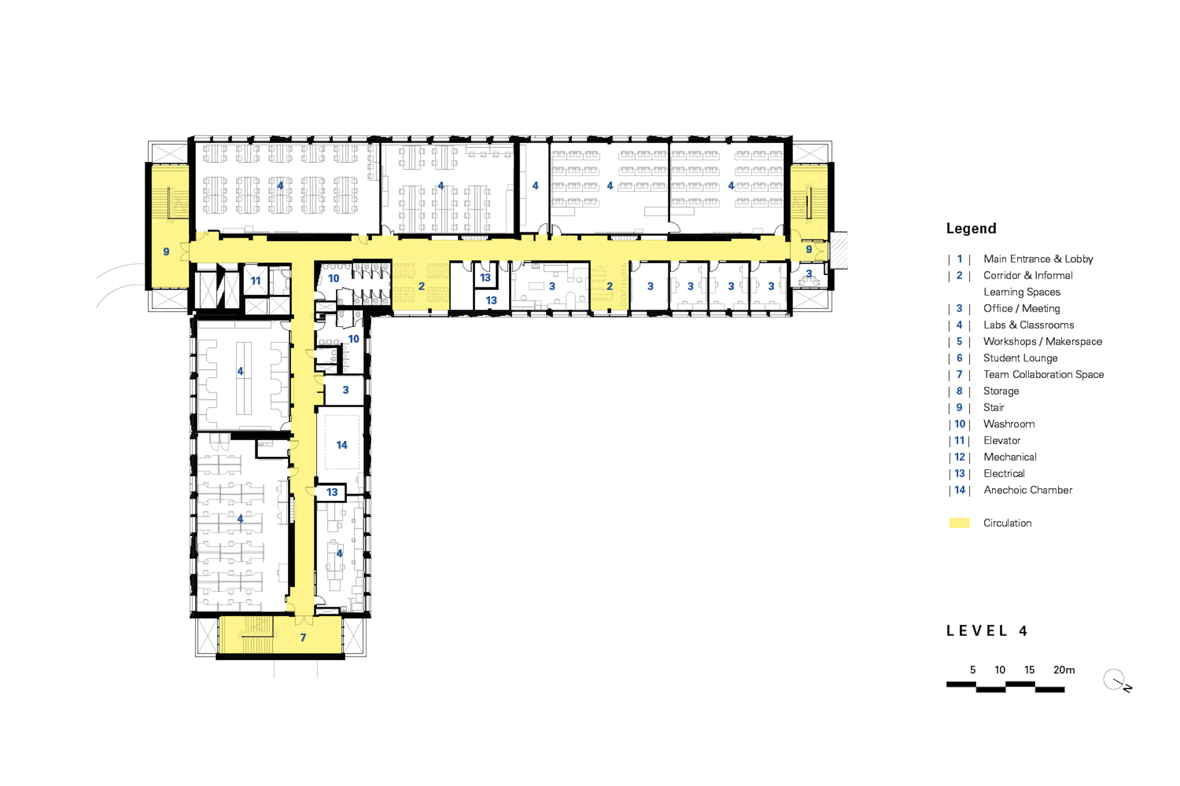
The MacLeod Building Renewal is the most comprehensive retrofit completed to date at the University of British Columbia. Driven by a pressing need to improve the seismic and climate resilience of the campus’ mid-century architecture, the project transforms a poorly performing end-of-life 1963 building into a flexible, high-performance facility that actively supports and showcases 21st century learning. The previously dark, inward-facing facility was stripped down to its concrete structural components to allow seismic upgrades that exceed building code requirements, complete envelope and systems replacement and interior reconfiguration. The locally fabricated precast concrete envelope presents a sculptural interpretation of the originally expressed modernist structural grid; this exterior-insulated, high-performance rainscreen assembly both creatively preserves the campus’ design heritage and contributes to substantial improvements in energy-efficiency and occupant comfort. In contrast to the original building, the renewed facility is welcoming, accessible and inclusive, with a relocated ground level entrance and generous visual and spatial interconnection that promote natural wayfinding. Corridors flow seamlessly into Informal Learning Spaces (ILS), fostering connection and collaboration. Classrooms and labs feature flexible, adaptive design that accommodates cutting-edge technology and world-class research. The retrofit approach, while challenging, offered significant benefit, avoiding the ecological impact of wholesale redevelopment and achieving substantial carbon savings through retention of 73% of the original structure. The LEED Gold building leverages passive and active strategies – including a new multi-storey passive-assist light and air shaft, energy-recovery-equipped air source heat pump, operable windows, and abundant daylighting – to meet ambitious client performance targets, achieving an estimated 56.15% reduction in energy intensity over a new-build reference building. The MacLeod project is a case study for institutional renewal, creating a sustainable, resilient facility that supports first-class research and learning in a dynamic, inclusive and accessible setting.
Collaborators
7Proscenium Architecture + Interiors
collaborator
collaborator
collaborator
collaborator
RWDI Consulting Engineers and Scientists
collaborator
LMDG Building Code Consultants Ltd.
collaborator




































