United in Diversity Campus
Willis Kusuma Architects
Bali, Indonesia
- Year
- 2023
- Category
- Institutional > Higher Education and Research Facilities
- Type
- Educational
- Firm
- Willis Kusuma Architects
- Location
- Bali, Indonesia
- Award
- A+ 2025 · Special Mention

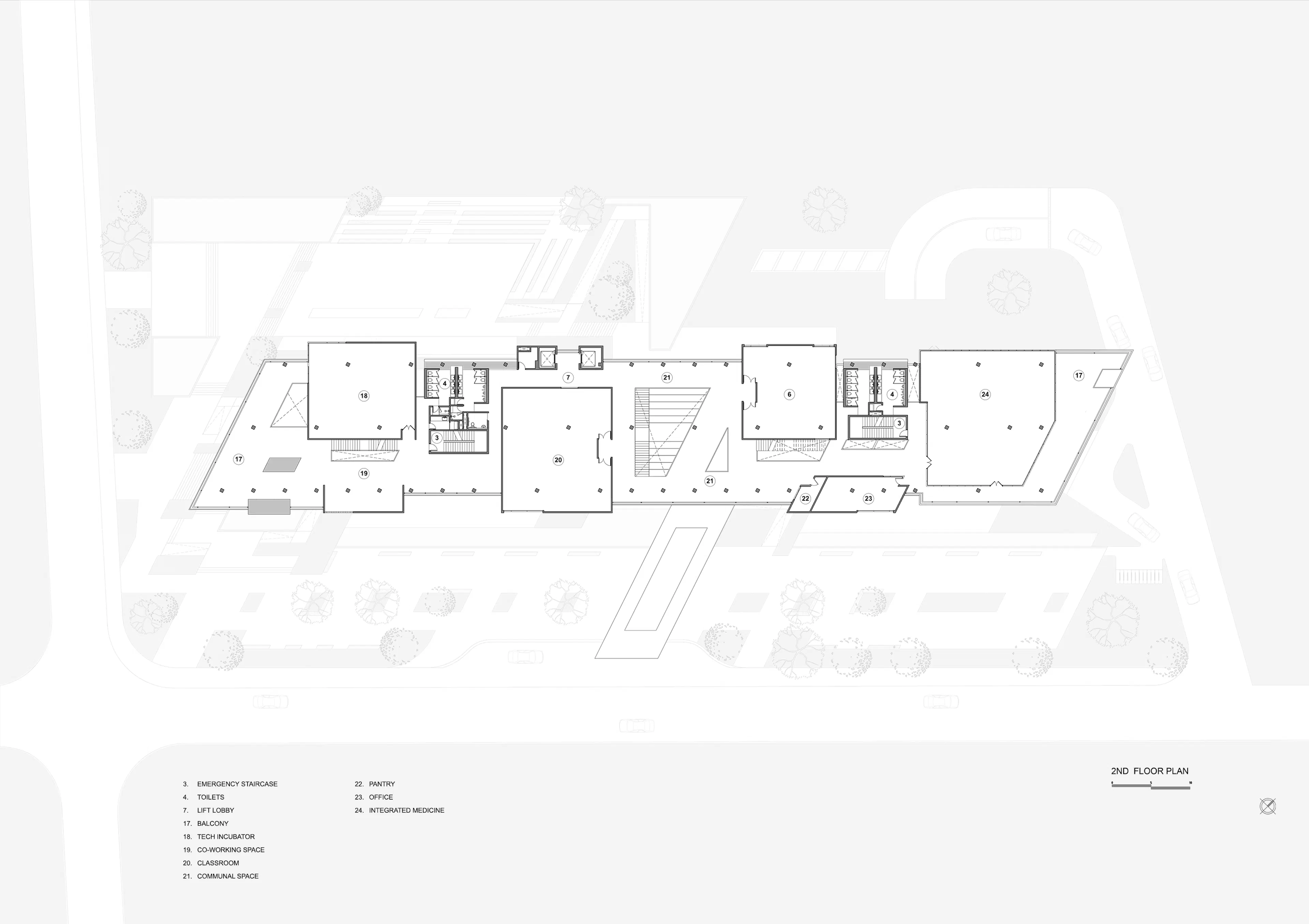
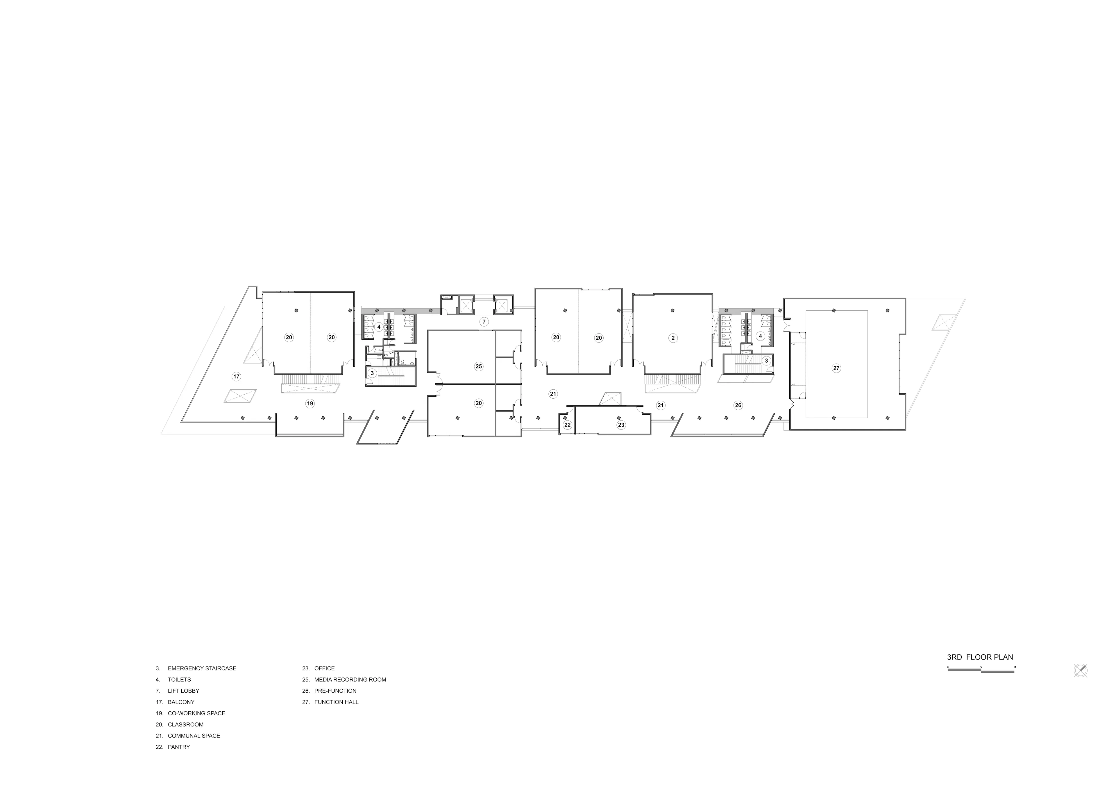
The United-in-Diversity Campus adopts Balinese vernacular to create a giant roof, accommodating underneath it a modern mixed-use facility. Located in Serangan Island, Bali, the United-in-Diversity (UID) Campus is a mixed-use facility encompassing an approximately 60 x 140-meter footprint that combines commercial, and educational programs. The building orients itself in the direction of the sacred Mount Agung, the highest point on the island of Bali. In establishing a general logic on how the plan is defined, the building operates on two intersecting axes, the horizontal axis——giving the building its horizontal language——as well as a skewed axis pointed at Mt. Agung cutting into it, which diagonally intersects the building’s longitudinal form and orients the building’s structure. The building’s shape is built on the typical vernacular of the ‘Bale’, a traditional Balinese thatched hip-roof structure that is often interpreted as a multipurpose hall for people to gather under. Bale adopts its roofed form by symbolically pointing up to the mountains and to the skies. Willis Kusuma Architects has taken this traditional form, scaling it up into a superstructure to create one single roof that shelters all its programme underneath it. On the ground floor, commercial functions occur inside spaces clad in wide glazing. The landscape blends seamlessly with the internal spaces of the campus. An outdoor amphitheatre creates informal gathering spaces. Classrooms on the second and third floors are situated alongside pockets of co-working spaces. Private office spaces, a function hall, and media rooms are all on the third floor. Closest under the massive roof are decks that provide seating areas, overlooking views of the island’s surroundings. The Campus’ range of programs is compartmentalized into distinct brick volumes, hoisted on steel columns that project up to the roof, creating communal open-air spaces—permeable by the weather’s conditions—in and around the solid units. This defines the cooling strategy, where air conditioning is needed only on 30% of the total floor area. Whereas the open-air corridors enjoy a comfortable temperature all year round due to cross-ventilation. The Campus makes full use of other passive cooling design elements that include curating green spaces on the rooftop, reflecting pools that cool different corners of the site, and a reliance on its large concrete floor to act as a thermal mass that maintains the optimal temperature at all times.
Collaborators
1

















