Valley Strolling:X Museum
Studio NOR
- Year
- 2023
- Category
- Cultural > Gallery and Exhibition Spaces
- Type
- Cultural
- Firm
- Studio NOR
- Award
- A+ 2025 · Special Mention

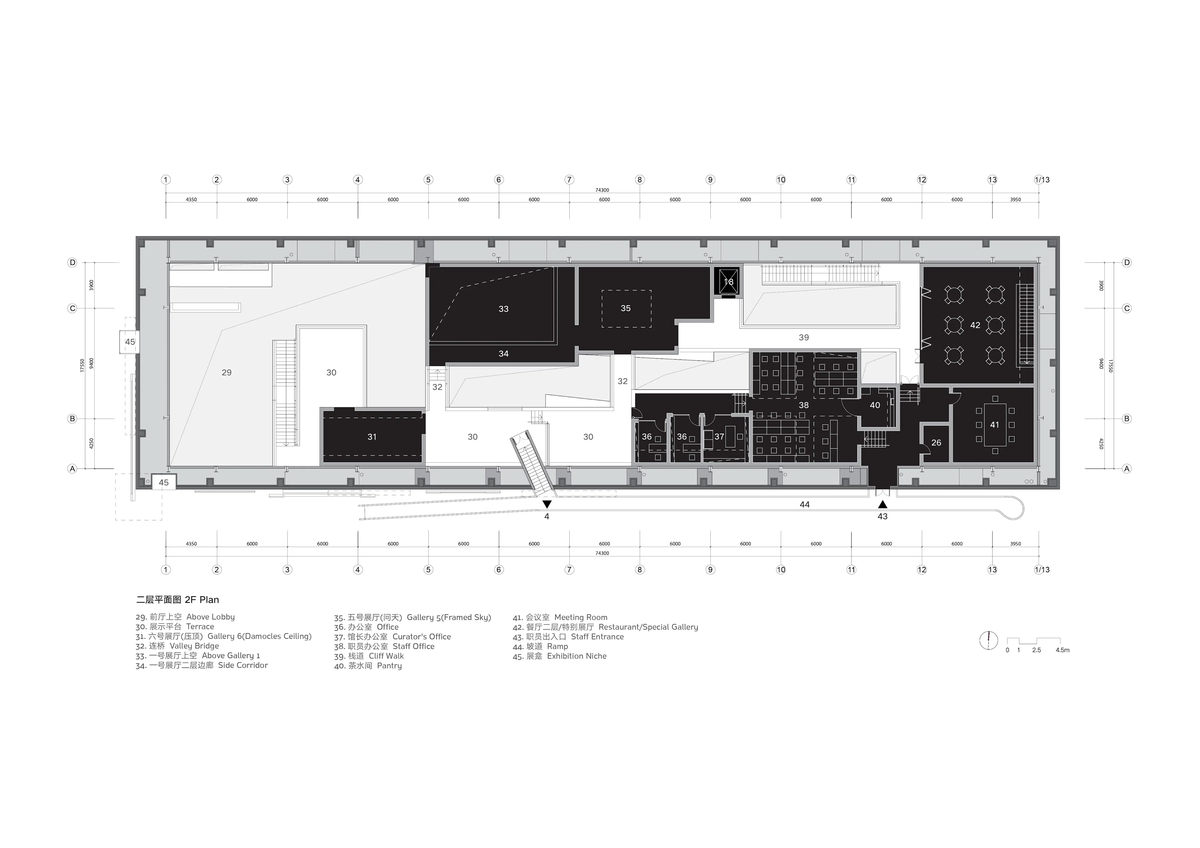
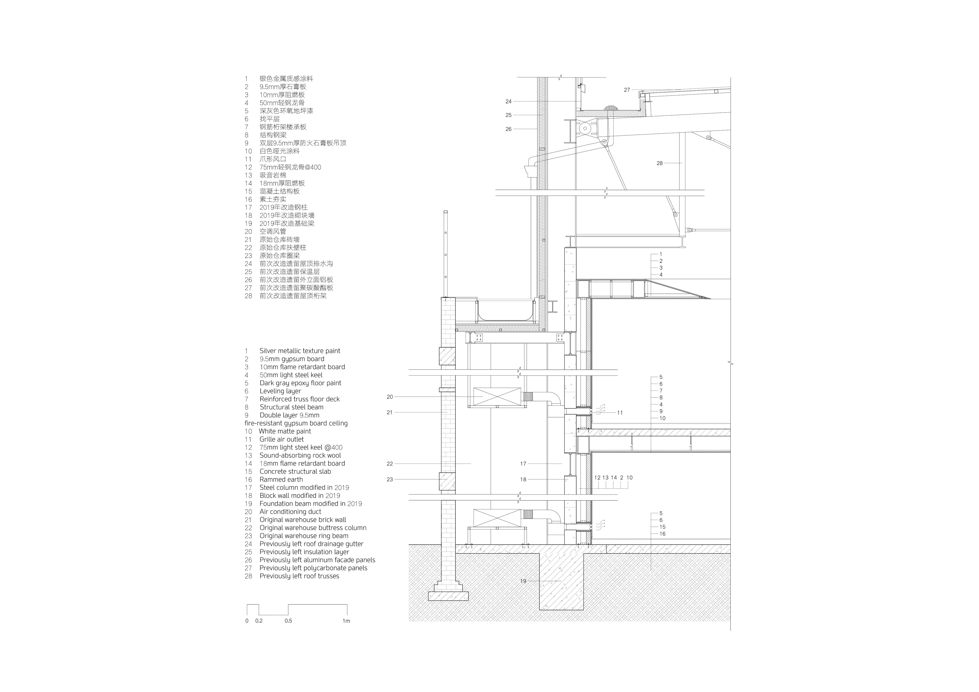
What should an art museum be interpretated by public nowadays is the starting point of our design for this project. X museum stands a strong position of integrating itself into trendy lifestyle, which is why it programed itself as a lifestyle venue with various public cultural, consumption possibilities besides being an art exhibition space. The embracing attitude toward popularity and trend makes X museum itself in a critical stand. The site of new X museum locates in Langyuan Station, which is a red brick factory storage building built in 1970s with several times of renovation. We proposed the concept of meandering in the valley as the concept in response to the existing building’s linear volume and the wide opening skylight left by previous renovations. A main circulation path was created as valley to connect the mountain like programed rooms on the sides. With the valley in the middle, natural light could shine through the skylight to the first floor. Visitors could experience the building moving in between the valley and mountain, which provided them an outdoor experience. Different scales of spaces were created to provide various opportunities for the artists, curators, and visitors to interact with the building with a simple and clear circulation path. We were inspired from the traditional Chinese cliff carving art, extended in the indoor valley idea to façade. Many frames and niches were set up on the façade, so that X museum could use for installation, graphic art, or any informative content, which is also a gesture of exteriorize the museum content to the public. In contrast to the sober calm stereotype of art museum typology, X museum chose to celebrate visitor’s arrival with an uplift vibe. In a way the monumentality of museum is intertwined into daily life, the boundary is redefined between the two.
People
3Collaborators
1lead


















































