Vestfold Crematorium
PUSHAK
Vestfold, Norway
- Year
- 2010
- Category
- Institutional > Government & Municipal Buildings, Police & Fire Stations
- Firm
- PUSHAK
- Location
- Vestfold, Norway
- Award
- A+ 2013 · Finalist

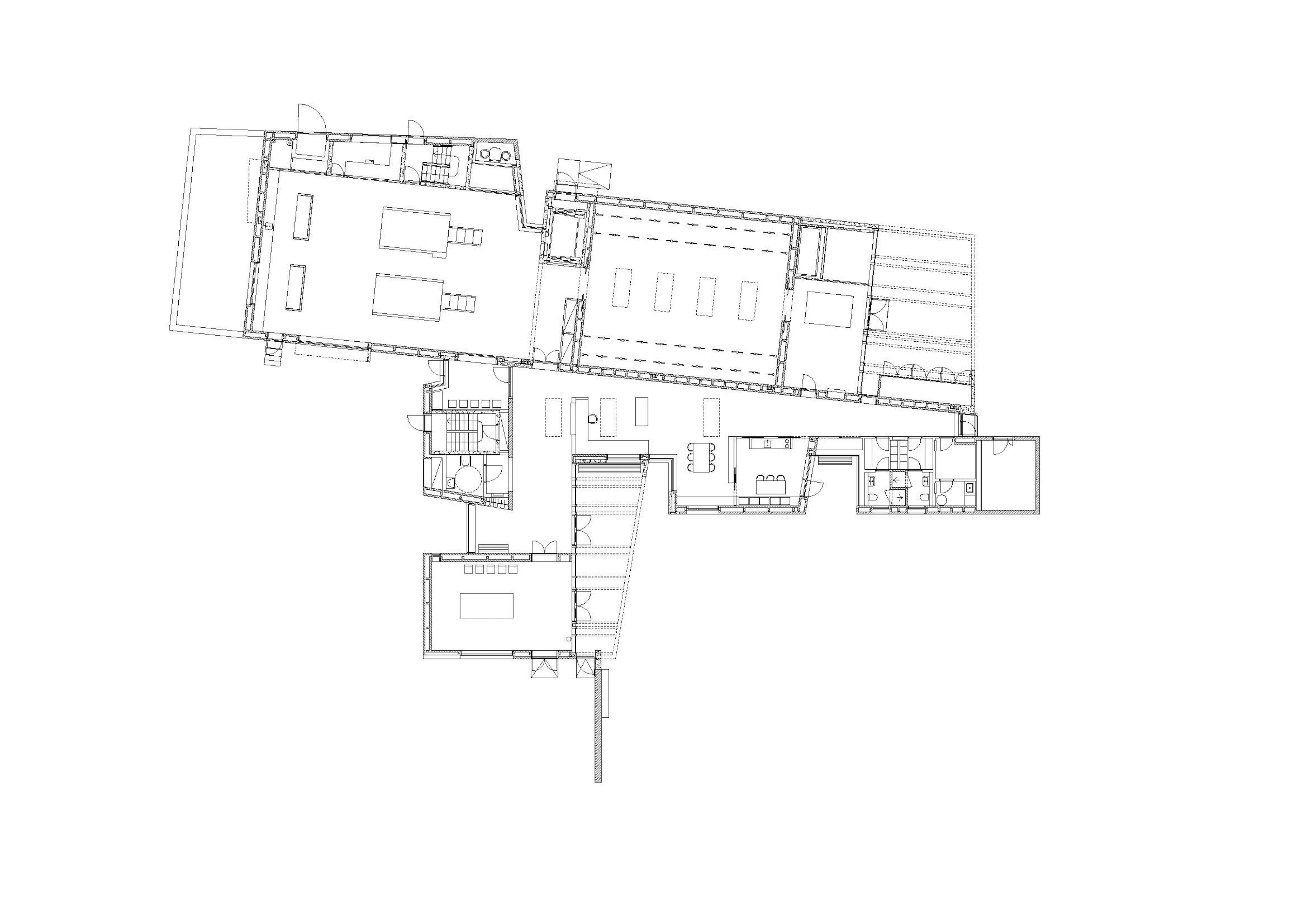
Photographer: Ivan BrodeyThis new interpretation of a crematorium seeks to create a place of dignity that confirms the value of a historically stigmatized function. The Vestfold Crematorium is designed to create spaces of dignity for relatives who choose to follow the deceased until the cremation, and spaces of dignity and light for the staff that confirms the value of their work. The building does not have a ceremony hall, the main ceremony is completed elsewhere. The largest function of the building is cremations, and its regular users are the people conducting the cremations. The architecture has to answer to high demands on technical solutions and logistics, without compromising on quality and dignity.The oven room and the chimney have a relatively high degree of visibility and transparency, functions that traditionally have been hid away. The rooms both for relatives and staff have windows and doors to the forest. The rooms for cremation have the same material quality as the public spaces. The layout is organized into three main parts that reflect the different functions in the crematorium – rooms for relatives, rooms for staff and rooms for cremation. The staff value the clear architectural division between the cremation rooms and other functions. Every room in the crematorium is going to be accessible to the public, open to for example Hindu funerals or visiting school classes. The crematorium’s location along a beech forest makes the entry space sheltered from noise and visibility from a nearby highway. The facades where the public arrives have a smaller scale, while the walls that are exposed to the highway are more prominent. The roof reflects the functional needs for heights inside. The material palette is restricted to in-situ concrete, brick and wood. The roof is clad with sedum, visible from the flights of the busy airport nearby. Much exposed heavy materials are used for natural night cooling. The surplus heat from the cleansing of smoke is used for heating.
Collaborators
1lead














