Victory Wellness Center
Patterns
Los Angeles, United States
- Year
- 2023
- Category
- Concepts > Architecture +Adaptive Reuse
- Type
- Commercial
- Firm
- Patterns
- Location
- Los Angeles, United States
- Award
- A+ 2024 · Finalist

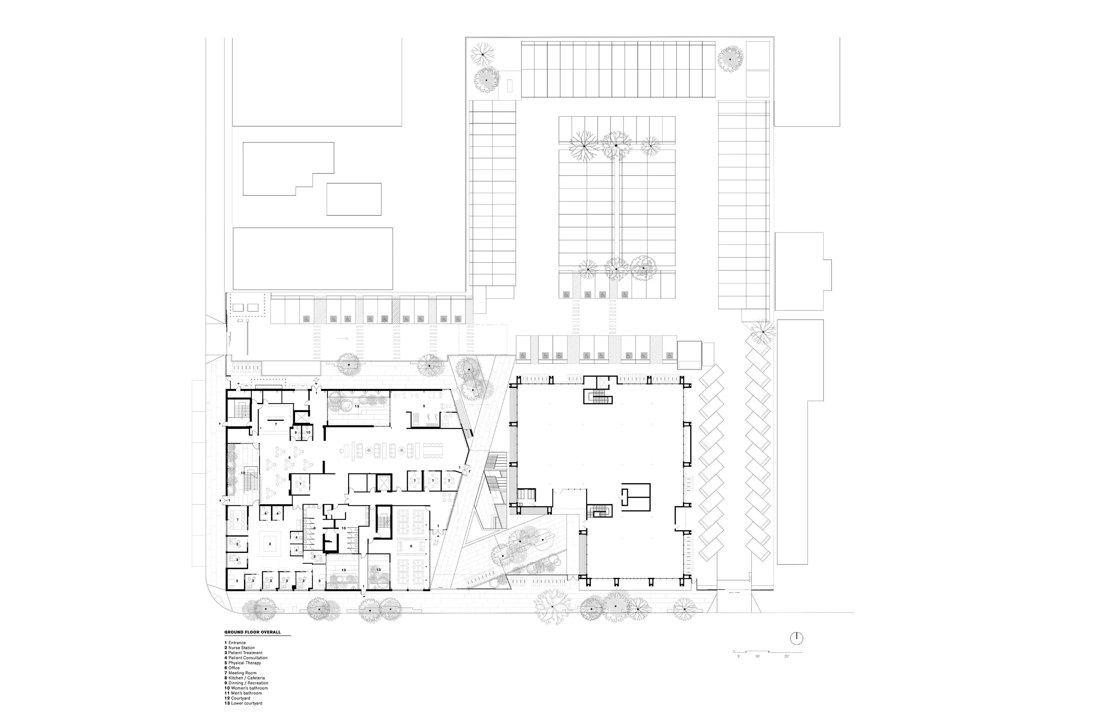
Victory Wellness Center is a civic-minded building that gives the community of North Hollywood both architectural character and quality open space. The sustainable intervention manifests and augments the features of the old bowstring truss structure, by carving away from and adding to in subtle and in your face ways, creating ambiguity and integration between old and new. The new building massing articulation breaks down the scale of the existing building while a minaret-like vertical sign provides the horizontal project and context with a commanding presence that, along with the open space gives a civic dimension to the entire project. Project Data Name: Victory Wellness Center Client: 11631 Victory, LLC Size: 42,232 ft² / 3,923 m² Cost: Private Dates: 2015-2023 Location: North Hollywood, CA Design Architect: PATTERNS / Marcelo Spina & Georgina Huljich Principal in charge: Marcelo Spina Project Managers: Sanghyun Suh & Alejandro Loor Project Designers: Daniela Atencio, Dylan Krueger and Carlos Navarro Project Assistants: Justin Tan, Henry Yang, Laura Baobao, William Patrick Adams, Tom Ferrer, Dan Lu, Isabel Socorro, Rachele Sipione, Yipeng Liu Architect of Record: Mutuo / Jose Herrasti Structural Engineer: Matthew Melnyk / Nous Engineering MEP Engineer: CDME Inc [Mechanical & Plumbing] & Abrari Associates [Electrical] Landscape: Tina Chee Studio Civil Engineer: Richard Prutz General Contractor: E Roane Construction Photography Credits All Photos by Here and Now Agency [Paul Vu] and courtesy of Patterns
People
1Collaborators
2lead
collaborator



















