Walcot Square mews
FORM studio (previously FORM design architecture)
London, United Kingdom
- Year
- 2022
- Category
- Residential > Multi Unit Housing - Low Rise (1 - 4 Floors)
- Type
- Residential
- Firm
- FORM studio (previously FORM design architecture)
- Location
- London, United Kingdom
- Award
- A+ 2023 · Finalist

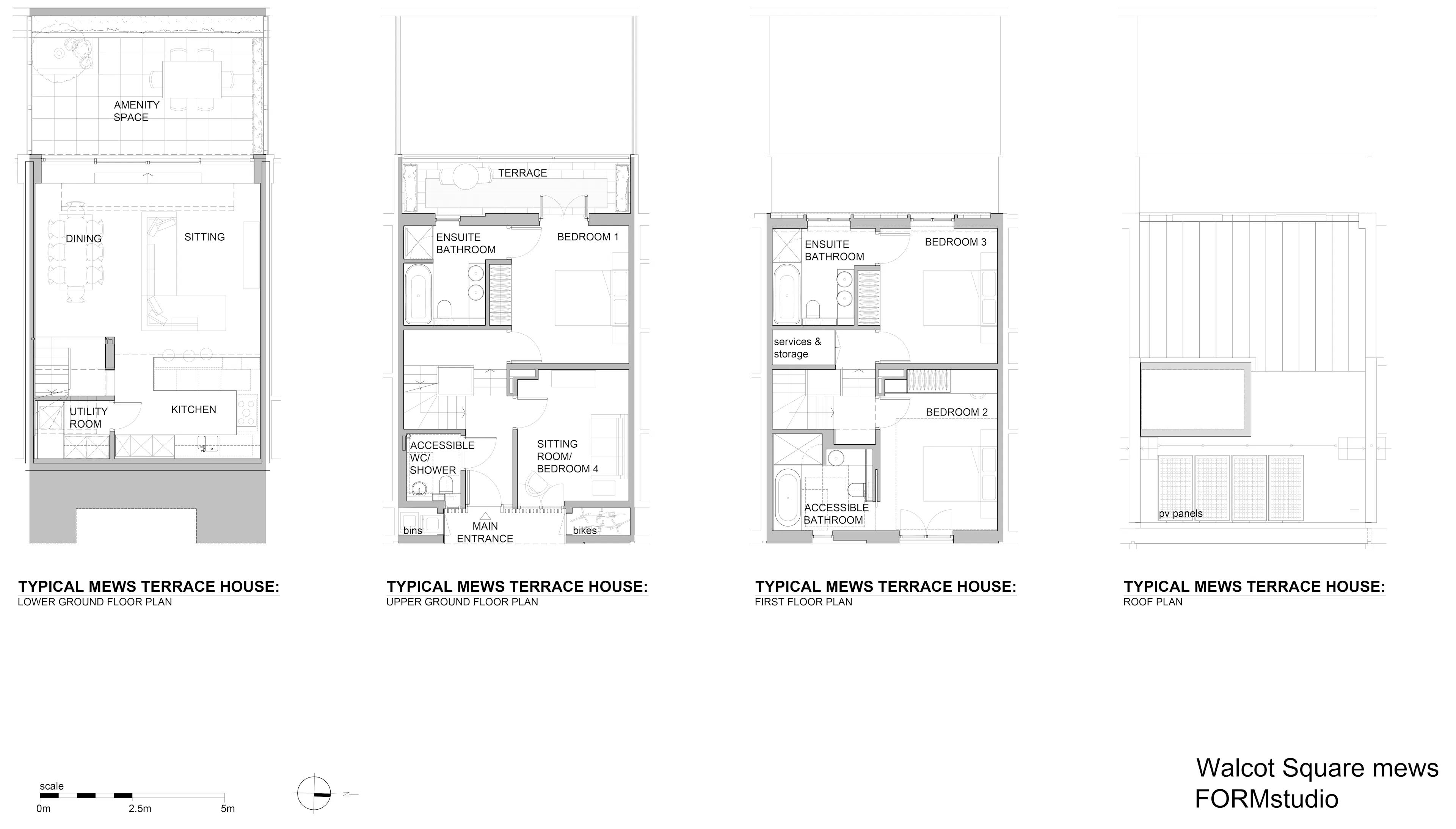
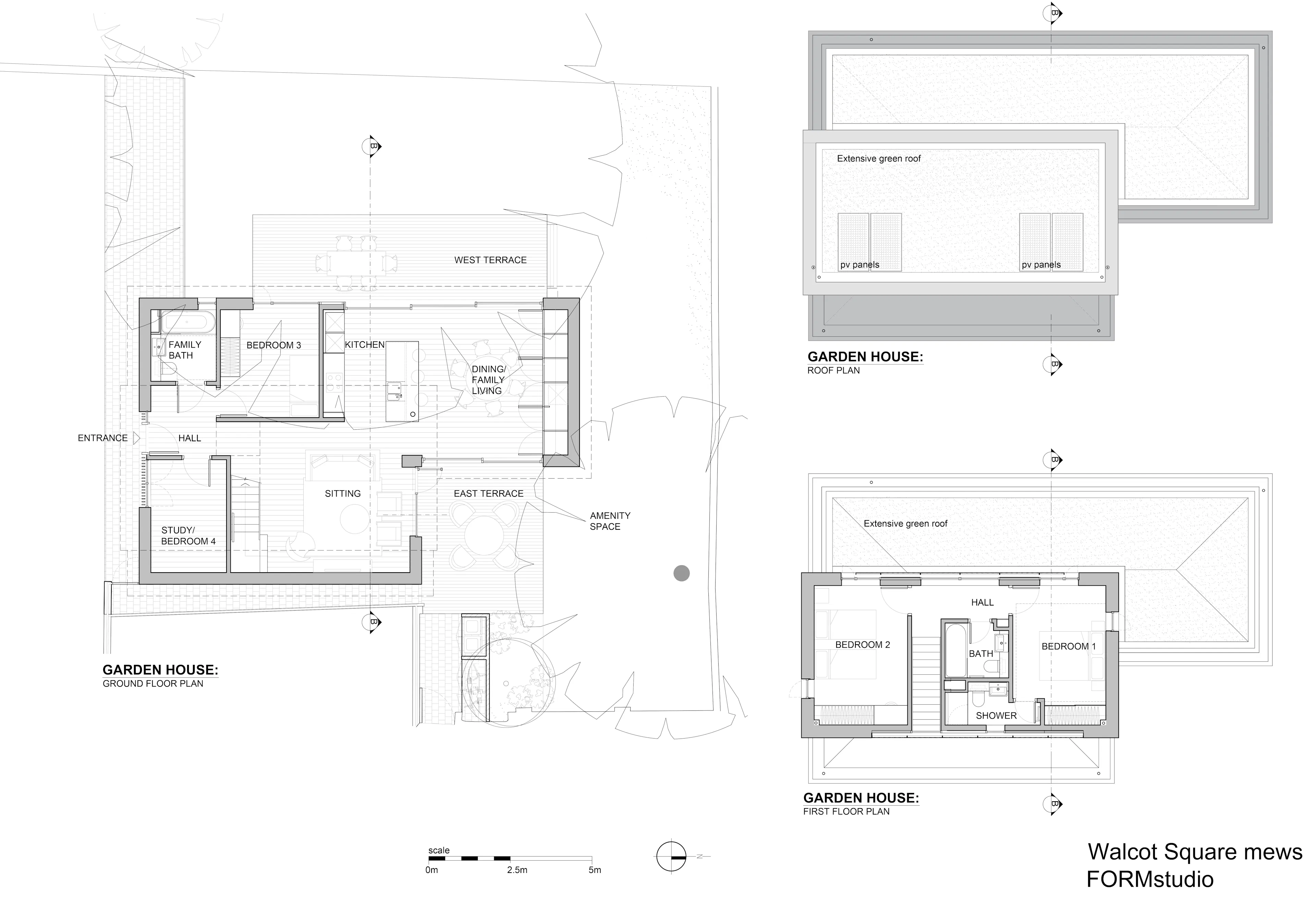
Commissioned by south London charity the Walcot Foundation, this build-to-rent development has significantly increased the rent income generated from the historic estate that funds their grants for the relief of poverty in the local area. Sandwiched between a grand terrace of Georgian houses to the west and Victorian terraces to the east, the brownfield post-war garaging site presented significant challenges for redevelopment including its historic Conservation Area context, the extensive root protection zones of existing trees, ground contamination and overlooking. The brief was to maximise the rental potential of the site and to address long term ownership requirements of the property through detailed design and appropriate specification. This included the use of durable, hard-wearing materials to reduce ongoing maintenance. The design of the brick-clad mews terrace takes its inspiration from the robust detailing and handsome proportions of the adjacent Listed 19th Century terraces, with a modest two-storey parapeted elevation addressing the Mews that sits in a comfortable hierarchy of scale with them and with the earlier taller 18th century terrace to the west. Behind this elevation a split-level section provides for an additional third storey of generously proportioned accommodation at lower ground floor level, that opens onto west-facing sunken courtyard gardens. Designed to provide flexibility for letting to families or groups of sharers, each house is compactly configured around a top-lit staircase that winds up through the split half levels of accommodation, drawing natural light down into the back of the lower ground floor. A detached house, located within its own walled garden amongst mature trees and planting, terminates the Mews and is conceived as a garden pavilion. Green roofs minimise the visual impact. The upper storey, clad in bronze-finish perforated panels with a pattern generated from photography of sunlight through foliage corresponds with the surrounding tree canopies.
Collaborators
1













