Warrnambool Library and Learning Centre
Kosloff Architecture
Warrnambool, Australia
- Year
- 2022
- Category
- Institutional > Libraries
- Type
- Educational
- Firm
- Kosloff Architecture
- Location
- Warrnambool, Australia
- Award
- A+ 2023 · Jury Winner

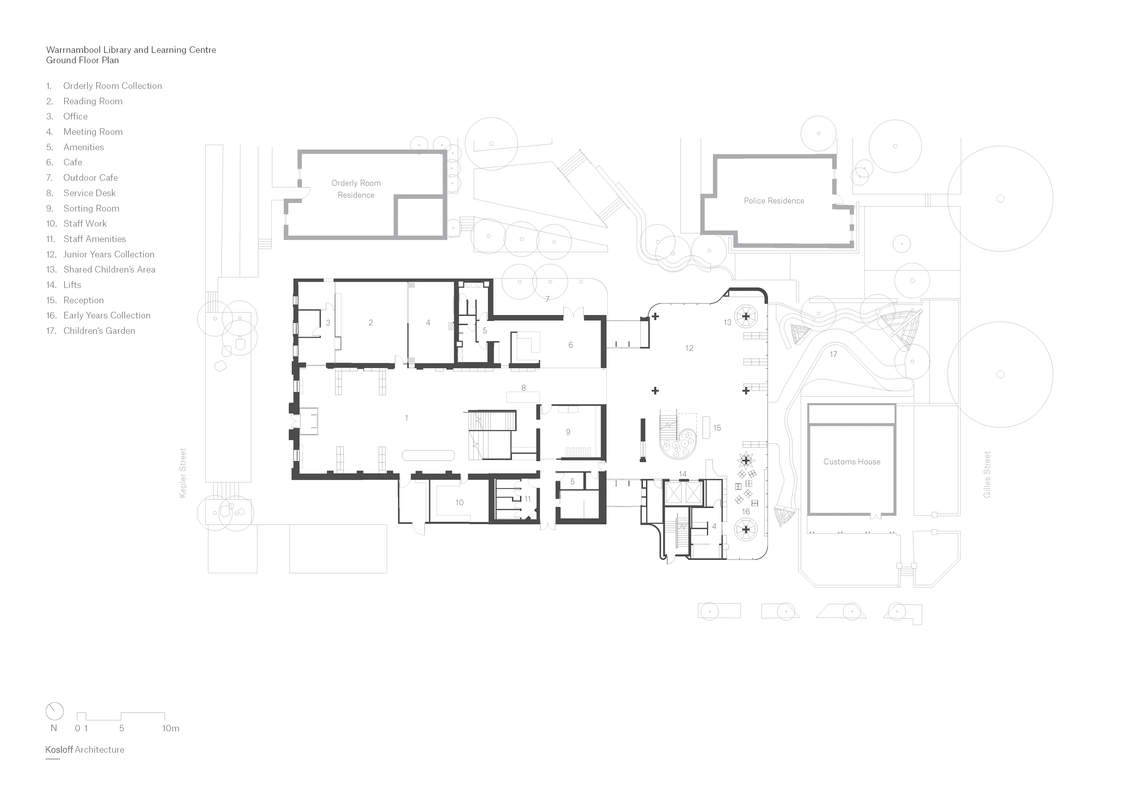
The Warrnambool Library and Learning Centre is a core component of the social infrastructure supporting the creative economy of Warrnambool, a regional town in the state of Victoria, Australia. The ambition for the project was to create a community anchor for both the South West TAFE and Warrnambool’s cultural precinct. The centre replaces two libraries with a single facility located in the heart of the vocational training campus, and now serves both TAFE students and staff, and the local community. In addition to traditional library facilities, visitors can enjoy an indoor-outdoor café, public computers, exhibition and display areas, places to study and read, meeting rooms, a dedicated children’s area, and a digital media zone. The project comprises of a new 3-storey contemporary building connected by a glazed linkway to the refurbished single storey Gun and Orderly Room, which was constructed in 1868. The building is also surrounded by four other buildings listed on the Victorian Heritage Register. The linkway operates as a laneway that maintains a pedestrian connection through the campus and clearly delineates the heritage listed building from the new structure. Central to the design is an internal bridge that creates an additional connection at the first floor level located where the original (previously removed) stage within the Orderly Room once stood. Operating in a similarly performative manner, its landings allow it to be occupied as well as providing views through both buildings. An extensive consultation process elicited thousands of responses from the community, and from this a conceptual framework as built: Delight (natural light, connection with the outdoors); History, Heritage and Narrative (design reflects local history) and The Third Place (creating space for the exchange of ideas, enjoyment, and relationships). A key focus of Delight as a driver was careful curation of natural light through the depth, undulation, and rhythm of the façade. A series of occupiable spaces, or alcoves, internally provide for reading or study areas bathed in soft, indirect light. Like a veil, the cream pre-cast concrete façade is drawn back to reveal views over Warrnambool and the ocean, as well as providing a backdrop to the adjacent heritage-listed buildings. The interiors have been developed in reference to both the Warrnambool CBD grid, established by Robert Hoddle (Melbourne’s surveyor general from 1837 to 1853), as well as the existing gridded coffered ceiling within the 1868 Orderly Room. This extends to an existing architectural relationship with both the city and the existing heritage building and serves to link both the contemporary and heritage buildings together. The grid and articulated ceiling manifests in the design at each new level, with differing ceiling arrangements that act as a contemporary deconstruction of the original ceiling. The project demonstrates the potential for existing buildings to be effectively adapted and re-used in a manner that can deliver all the functionality required for a complex public building.
Collaborators
1























