Weng's Factory Co-Working Space
Architect Nonsense
Bangkok, Thailand
- Year
- 2023
- Category
- Concepts > Architecture +Adaptive Reuse
- Type
- Commercial
- Firm
- Architect Nonsense
- Location
- Bangkok, Thailand
- Award
- A+ 2024 · Special Mention

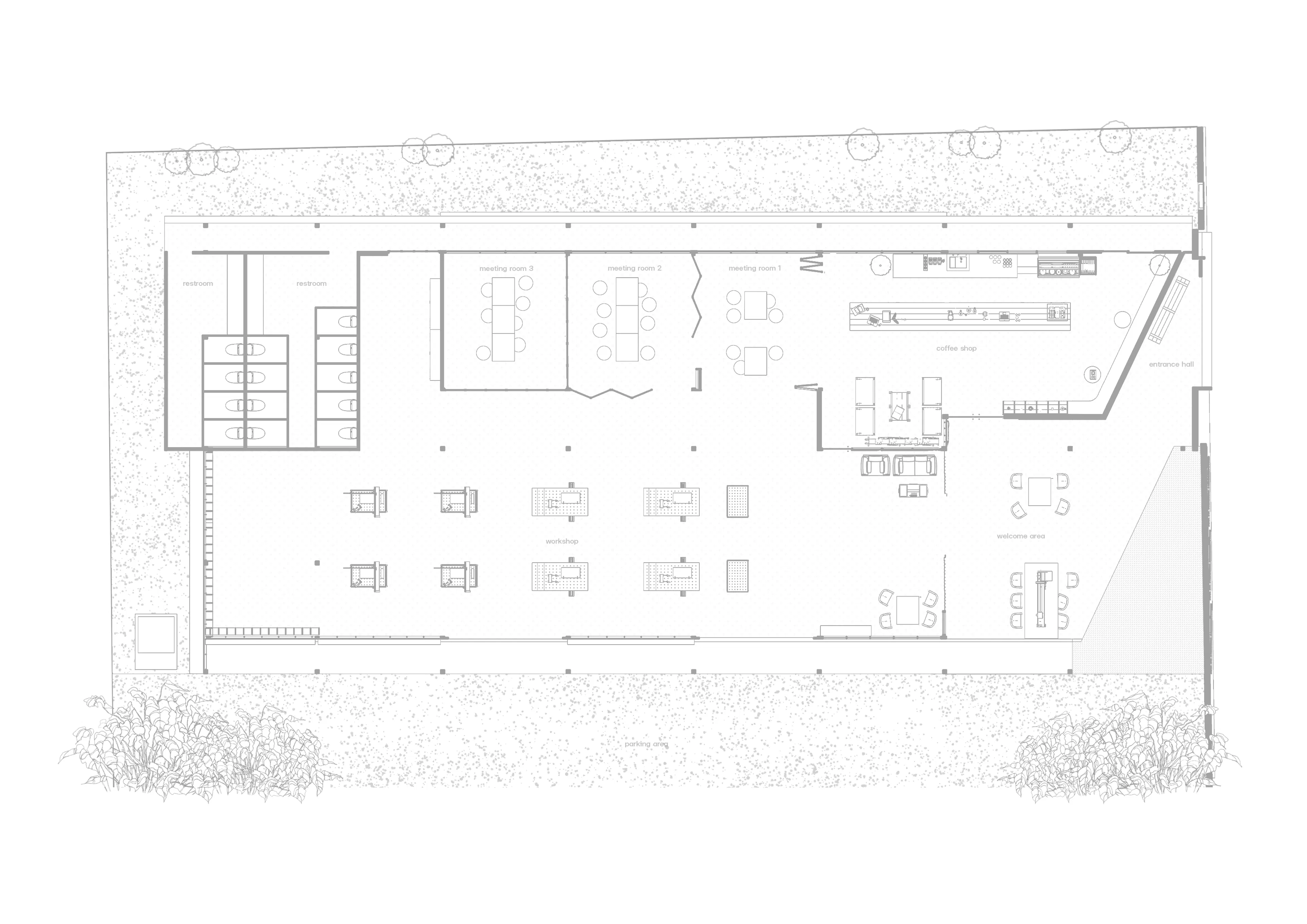
WENG's Factory was a wooden lathe factory that had been in operation for generations, from his father to the current owner. The structure, however, was deteriorating with time, and its purposes have evolved in accordance with the changing way of life. The factory has now been turned into a co-working space, complete with a coffee shop, meeting areas, and timber workshops while retaining the original architectural sense of being a father's wooden lathe soul. The owner expressed his intention of turning this factory into a local community space. Still, it needed renovation, including building modifications to solve water leakage, stagnant water, and decaying structures. Architect Nonsense has presented refurbishment design concepts and modification plans to revive this factory and tell its new story. The architects proposed employing the original architectural elements and manufacturing equipment found in the factory to connect the past to the present. The existing design elements, as discovered during site inspections, appeal as its internal double space, adjustable timber façades, wooden truss structure, hardwood walls, and wooden joint constructions. Metal casting molds, pulleys for lathes, insulator wires, and abdominal roofing plates are architectural embellishments that have been identified as design tools to recreate the ambiance and functionality of the factory. To maximize the user experience, architects redesigned the building's boundary, used natural lights, arranged visible axials, and managed ventilation. The two sides of the wall were moved inward to make the eaves align with the existing plane. As a result, it increased the corridor spaces for side circulations and protection from rain and sunlight. The skylight roofs were also introduced in the structure to draw natural light in the daytime. Moreover, the opening space at the entrance is allocated for future adaptation or further usage. In terms of user experience, the architectural design welcomes visitors with an arrangement of steel plates and manufactured objects, as well as lighting gradients that transition from darker to brighter exposure upon entry. The open hall exhibits a wooden lathe factory with tools that were formerly used in the factory; some of these components may or may not still function. This architectural sequence reflects the history of the factory through the building access journey The coffee shop inside the factory was designed with an arrangement of pulleys to construct the bar's foundation. The 12-meter-long hardwood that was collected in the factory was used to build the main bar. The rear wooden wall was replaced with mirrors to improve indirect lighting and allow more natural light to enter. The exhaust fans were hidden in the upper walls to provide ventilation and cooling. Additionally, a large opening at the garage and big trees on the site provide significant shadow and depth of lighting on the renovated wooden façade. In conclusion, the project solved multidimensional problems by reviving the factory through architectural design. The design is based on the discovered elements in the site to embrace the truth of materials and the originality of the factory. It is the place that blends the new functionality to fulfill the new requirements with the honest intention to live with the community.
People
3Collaborators
1





































